6,576
30
3
Malik: Ny bolig i Bærum
35
Bærum
1






Endelig er jeg veldig glad at rammetillatelse er godkjent fra Bærum kommune som brukte 8 mnd å behandle saken. Vi er par tidlig 34 år, vi har tegnet huset selv. Nå er vi i en prosess om å finne riktig firma /personer til å bygge huset for oss. Vi har kjøpt tomt i Bærum som er nærheten av mange gode venner. Nå skal huset som bygges bli vårt hjem for oss og våre 3 barn.
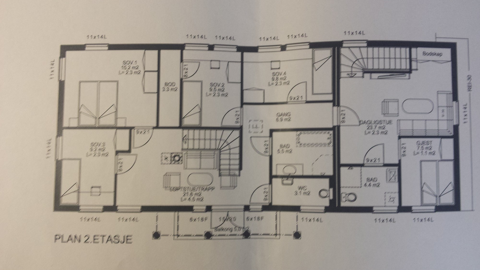
Jeg har satt ut plantegninger!!!!!!!!!!!!
Signatur


Ellers har jeg to kommentarer til planløsningen du har lagt ut.
1. Hallen er stor, men er likevel lite plass til garderobeskap. Hvor har dere tenkt å gjøre av alt sammen? Ville passet på å få nok plass til all ytterklær osv. Kanskje lage et innhugg i vaskerommet til skap?
2. Skal dere ikke ha inngang fra garasjen til boligen? Har man luksusen med integrert garasje ville jeg ha utnyttet at man kan gå tørrskodd fra garasje til huset! Kanskje dør til vaskerommet?
Lykke til med prosjektet!
Men jeg hadde gjort noe mer ut av fasaden i nord øst, et overbygg over veranda døren ellerno
Mail: Naessmaskin@outlook.com / post@ksn-as.no
www.ksn-as.no
Tlf:48018107 | PM
Tomt i Bærum er ikke billig, for meg kostet 3,4 mill og pluss skal rive ned snekkerverksted der det ligger tomta, ja vi skal leie hybel. Som du har nevnt at garderobeskap den skal stå ved siden av der står "rom" den andre ting du har nevnt skal jeg tenker over fordi jeg vil ikke ødelegge bade og kjøkken. Der står bod på første etasje skal være maskiner osv vaskerom blir andre etasje, det blir forandringer på tegninger etterhvert da setter jeg nye bilder.
Ja, så at det var tegnet inn et lite skap ved trappen, men syntes likevel det var litt lite til en familie på fem?
Ok, men et problem jeg da ser er at alle må gjennom soverommet til ene barnet. Jeg hadde likt dårlig at søsken måtte gjennom soverommet mitt til stadighet.
Også ville jeg sentrert det, det ser litt rart ut når det er strekt til ene siden.
Mail: Naessmaskin@outlook.com / post@ksn-as.no
www.ksn-as.no
Tlf:48018107 | PM
For å komme til soverom, wc bad må man gå rundt/gjennom loftstue, fordi trapp kommer opp helt på venstre side.....
Ville snudd trapp så tilgang hadde vært ca like langt fra rommene på begge sider......
Tekniker med verktøy.......Festool, Makita, Paslode
(gassverktøy med lav vekt), Millvaukee ....og litt til