1,386
0
0
Trenger hjelp fra noen friske øyner!
78
0
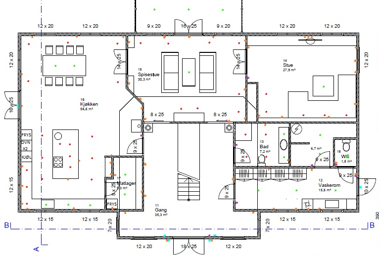
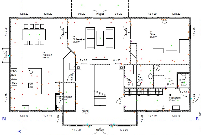
Vi planlegger belysning og stikkontakter i huset. Jeg lurer på om jeg begynner å se meg litt blind og ville gjerne hatt noen friske øyner til hjelp...? Spesielt i tilfelle dere ser at det blir alt for mye lys en plass. Spesielt unødvenig mye spotter. Eller alt for lite lys! Har prøvd å begrense meg en del når det kommer til dem så blir en del taklamper også blir det nok 1-2 gulvlamper/bordlamper i hvert fall i stuen, gangen og kanskje en på kjøkkenet i kroken med ovnen.
Setter veeeeldig pris på hjelp! Det er forresten 3 meter under taket i 1. etasje.
Legger ved bilder og håper at det blir stort nok slik at man kan skille fargene.
P.S.: Jeg tenker spesielt på om vi kan kutte noen spotter i taket i gangen og på badet i 2 etasje.
Jeg ser også jeg har glemt å tegne inn utvendige stikkontakter i første etasje...
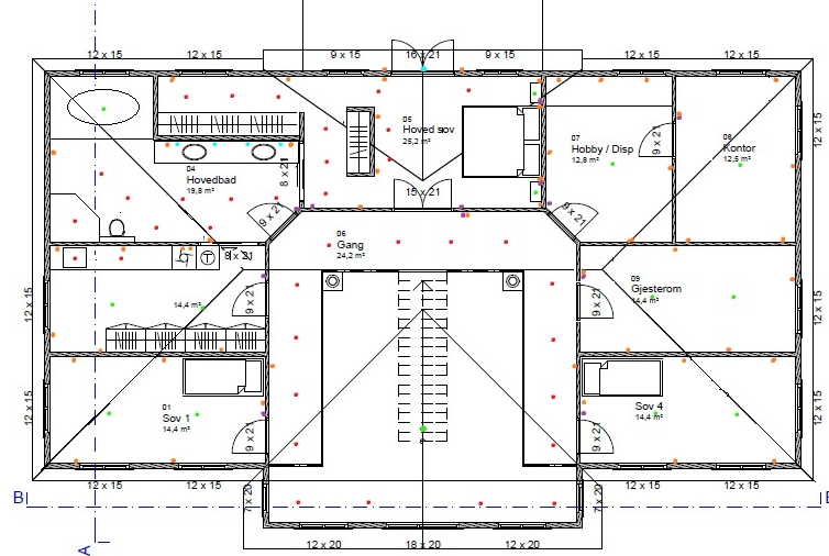
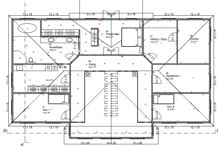
Setter veeeeldig pris på hjelp! Det er forresten 3 meter under taket i 1. etasje.
Legger ved bilder og håper at det blir stort nok slik at man kan skille fargene.
P.S.: Jeg tenker spesielt på om vi kan kutte noen spotter i taket i gangen og på badet i 2 etasje.
Jeg ser også jeg har glemt å tegne inn utvendige stikkontakter i første etasje...


