424
2
0
Bygge Overhalla hus
1
0
Hei, og takk for et flott forum!
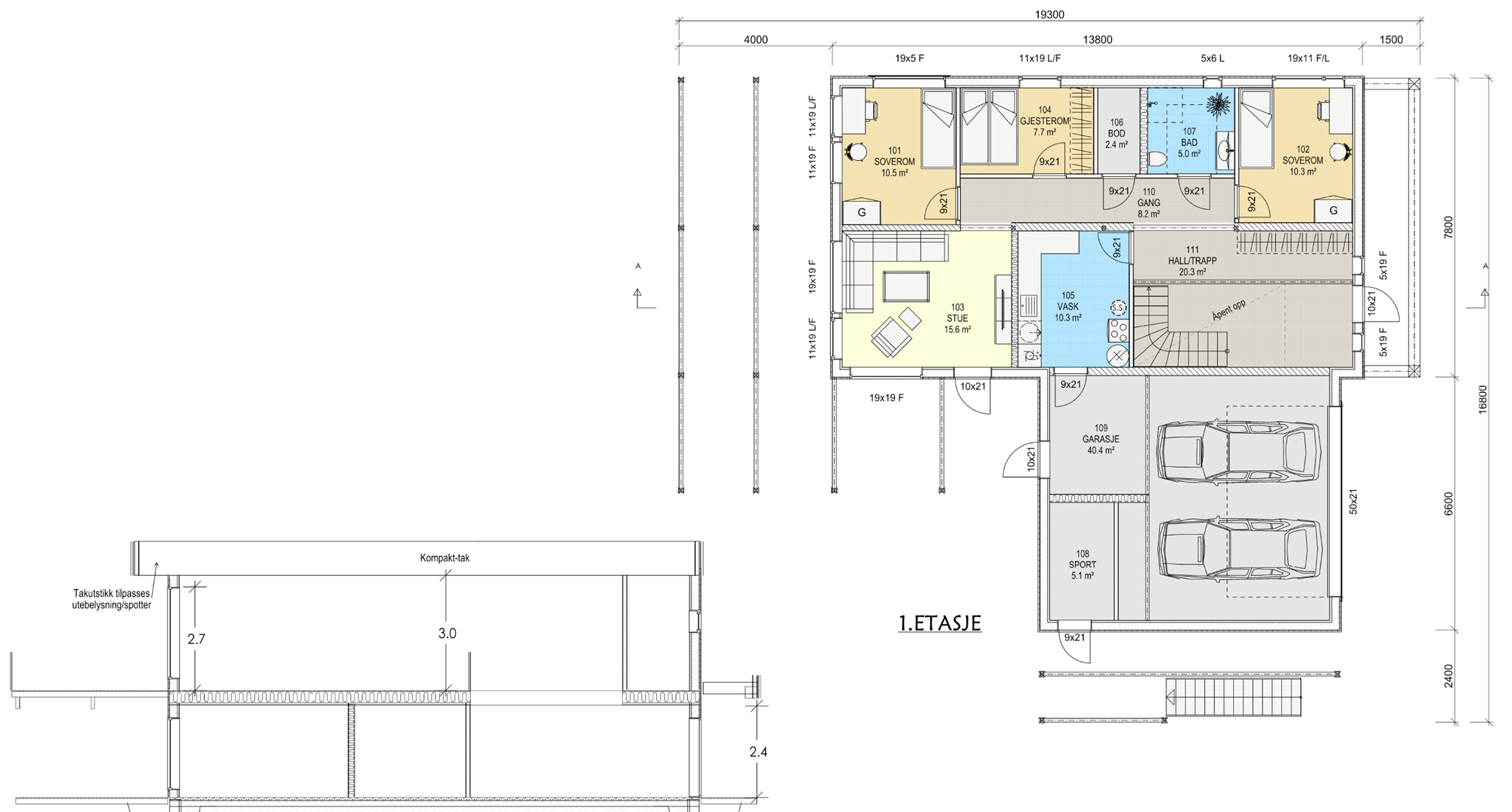
Jeg og samboeren har nå mottatt overslag på bygging av et, etter vår mening, rålekkert funkishus inspirert fra Overhalla hus sine Vida og Iben.


Huset utgjør etter planen 286 kvadrat BRA med dobbelgarasje og utleiedel. Vi har fått et grovt overslag som tilsvarer ca. 6.500.000,- eks. tomt, glassrekkverk, maling og sparkling. Kledning leveres ferdigmalt.
Dette er noe over vårt budsjett, og vi som førstegangsbyggere lurer derfor på hva vi kan spare større summer på? Det er bl.a. budsjettert med 350.000,- i elektriker, 250.000,- på rørlegger og 180.000 på vannbåren varme. Kan man spare noe på å legge f.eks varmekablene klar til tilkobling i de prefabrikerte platene med spor f.eks?
Vi setter pris på alle tilbakemeldinger :) Gjennomsnittlig byggekost er 22.850,- pr. kvm. eks tomt. Det beste hadde vært å havnet rundt 20.000,- +- pr. kvadrat uten at dette "merkes" så altfor mye. Imøteser tilbakemeldinger! Kommer vi i havn med leverandør vil vi opprette byggeblogg slik at de som ønsker å følge oss på reisen også kan følge med!
edit: inn med plantegning
Jeg og samboeren har nå mottatt overslag på bygging av et, etter vår mening, rålekkert funkishus inspirert fra Overhalla hus sine Vida og Iben.


Huset utgjør etter planen 286 kvadrat BRA med dobbelgarasje og utleiedel. Vi har fått et grovt overslag som tilsvarer ca. 6.500.000,- eks. tomt, glassrekkverk, maling og sparkling. Kledning leveres ferdigmalt.
Dette er noe over vårt budsjett, og vi som førstegangsbyggere lurer derfor på hva vi kan spare større summer på? Det er bl.a. budsjettert med 350.000,- i elektriker, 250.000,- på rørlegger og 180.000 på vannbåren varme. Kan man spare noe på å legge f.eks varmekablene klar til tilkobling i de prefabrikerte platene med spor f.eks?
Vi setter pris på alle tilbakemeldinger :) Gjennomsnittlig byggekost er 22.850,- pr. kvm. eks tomt. Det beste hadde vært å havnet rundt 20.000,- +- pr. kvadrat uten at dette "merkes" så altfor mye. Imøteser tilbakemeldinger! Kommer vi i havn med leverandør vil vi opprette byggeblogg slik at de som ønsker å følge oss på reisen også kan følge med!
edit: inn med plantegning
Når dere leser om m2 kost er det stort sett inkludert graving og ALT annet enn selve tomtekjøpet.
Jeg er redd prisen deres mer kommer til å krype opp enn ned med mindre dere gjør noe med bygget. Det er ofte mye man glemmer. Som eksempler er oppgraderinger av fliser, elektro, gulv, kjøkken, farger osv.
Maling er forøvrig IKKE billig. Koster fort 150-250 å sparkle+male. Det er jo her fort vekk snakk om 1000m2 gips.
Det absolutt mest effektive for å få pris ned er å gjøre huset mindre. M2 er hovedsakelig kostnadsdriveren. Færre bad hjelper også. Men først bør dere få et tilbud på huset ink absolutt alt. Så kan dere heller trekke ut. Lite vits å forsøke å justere før man har alle kostnadene på papir.
Utleie del koster også en del ekstra. Så pengene for elektro og rør vil gå bein å fly på.
-kvadratmeterprisen er høy pga. kjøkken og bad.
-verdiavskriving (oppussing)
-potensiell hull i leieperiodene når noen flytter ut
-risiko for høye strømregninger (hvis inkludert i leie)
-stadig flere kommuner tar en avgift per kvm
-skader dekkes ikke av innskuddet
-evn forsikringssaker (for eks vannskader) blir dekket, men ikke tap av leieinntekter
-økt lån = økte boliglånsrenter (renten kan også stige, ikke mange år siden den var på over 8%. Leieprisene kan synke i samme periode)
Det er også en hel masse andre (potensielle) ulemper med leieboere. Lukt, støy, røyk, psykiske problemer, kriminalitet etc. Ja, man kan selvsagt få Åse på 60 som bor der i 20 år.
Poenget er, regn litt på det. For om dere ikke går den veien, er jo mye penger spart allerede der.
Det som mange i dag kalles «Funkishus , er også dyrere og bygningsmessig ikke like sikre som tradisjonelle hus i nord-europeisk klima, men der virker det som dere har tatt et valg.
Ellers så er mye nevnt ovenfor. Egeninnsats er det mange som bruker. Billigere kjøkken og DIY for eks.