347
5
0
Forslag til plantegninger
107
0
Hei
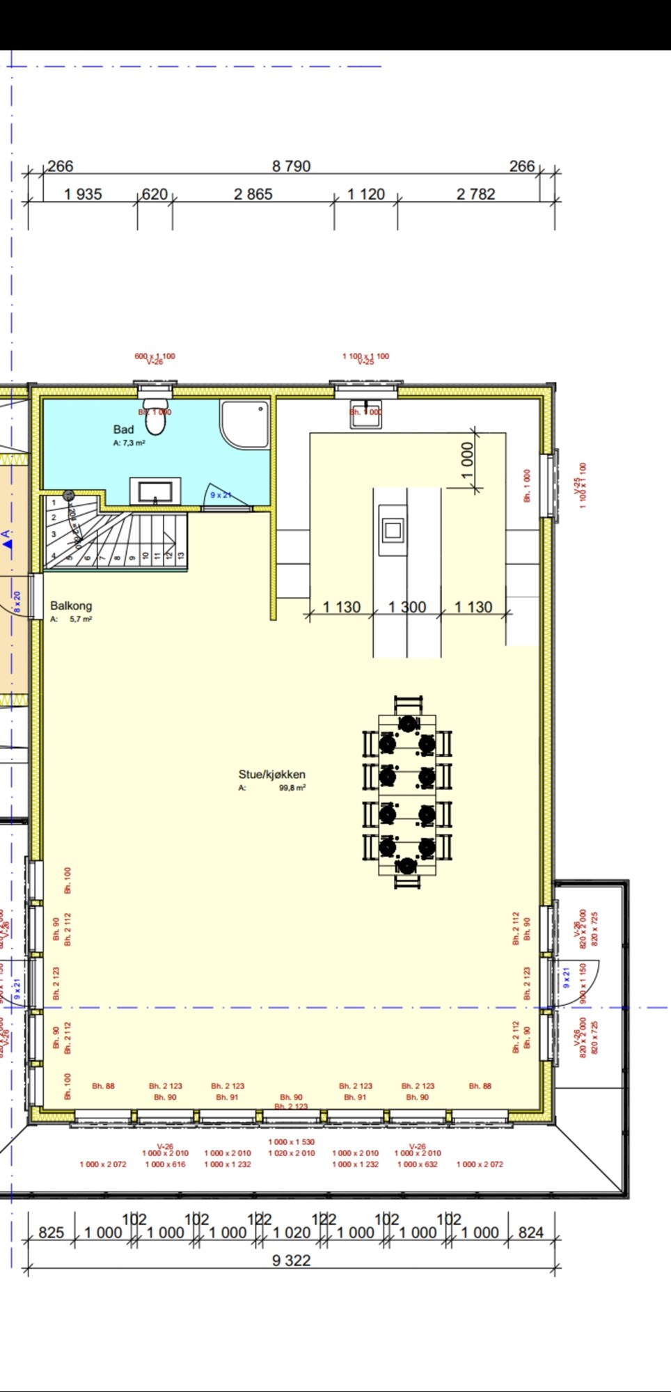
Skal bygge et stort tilbygg til huset vi har. Står litt fast på tegninger. Prøvd mye forskjellig. Har det slik som på tegningene nå. Men er absolutt ikke fornøyd med dette.
Er det noen gode forslag? Trenger 3 barne soverom og et hovedsoverom. Et vaske rom. Minst et bad oppe og helst to nede. Og kunne også tenkt et teknisk rom
Til vest og sør for tegningene her har vi sjøutsikt. Vil derfor ha stue og kjøkken i andre etasje med best utsikt.
Bygget er 12,58m x8, 76 innvendig mål.
Bør jeg ha mindre barnerom?
Takknemlig for alle innspill.


Skal bygge et stort tilbygg til huset vi har. Står litt fast på tegninger. Prøvd mye forskjellig. Har det slik som på tegningene nå. Men er absolutt ikke fornøyd med dette.
Er det noen gode forslag? Trenger 3 barne soverom og et hovedsoverom. Et vaske rom. Minst et bad oppe og helst to nede. Og kunne også tenkt et teknisk rom
Til vest og sør for tegningene her har vi sjøutsikt. Vil derfor ha stue og kjøkken i andre etasje med best utsikt.
Bygget er 12,58m x8, 76 innvendig mål.
Bør jeg ha mindre barnerom?
Takknemlig for alle innspill.


Hoved huset er/blir et eget hus.
Blir totalt sett en generasjonsbolig.
Vi tenker selv å flytte inn i den nye delen. Og den gamle vil kanskje bli leid ut foreløpig i noen år før foreldre flytter inn etterhvert..
Trengee ikke å ta det i bruk enda, men ha relativt enkelt mulighet, for eks ved å ha uttak til vann for vaskemaskin på badet, slik at man i framtiden kan sette inn vaskemaskin der.
Jeg vet at mange synes det er unødvendige krav - men det er mye som kan skje i løpet av ett liv - både for korte og lengre perioder - og da kan det være fint å klare å bo hjemme på en fornuftig måte.
Tar dere innover dere det kravet så betyr det at dere bør legge til ett soverom til hovedetasjen.
Det vil påvirke romløsningene mye, så lite vits å gi så mange andre råd før dere sier ja/nei til prinsippet.
Many of the great achievements of the world were accomplished by tired and discouraged men who kept on working...
Men uansett veldig godt råd. Alle som bygger til eller bygger nytt bør ta høyde for dette og itillegg til det bør man vel ø ha universell utforming uten terskler osv. Man veit aldri hva som kan skje..