218
0
0
Huset på gården
16
0
Hei!
Vi fikk tidenes førjulsgave da byggesøknaden vår ble godkjent! Vi skal rive et gammelt hus og bygge nytt på gården som min mann har vokst opp på, og som vi nylig overtok.
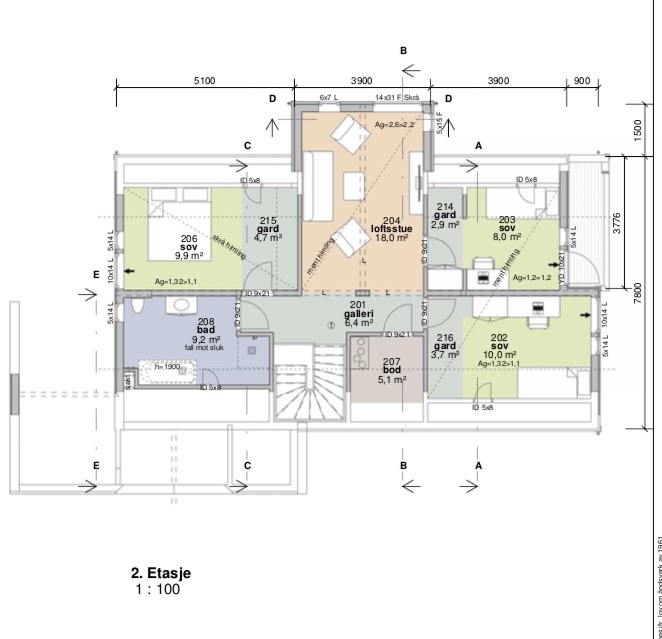
Vi har sett på husleverandører og hustyper lenge og gikk til slutt for typen Helgero fra Hellvik Hus. Vi har gjort en del omtegninger på huset, og er blitt ganske fornøyd!
Nå jobber vi med planløsninger på bad og kjøkken slik at det kan låses, og vi kan komme oss videre i prosessen.
I mellomtiden skal vi også rive store deler av det gamle huset selv - eternittplater og skifertak skal fjernes.
Vi har vært hos trappeleverandør og vi har valgt ut fliser, og vi har også sett på laminatgulv fra BerryAlloc.
Med to små barn, gård og husbygging blir 2019 et travelt, men spennende år!


Vi fikk tidenes førjulsgave da byggesøknaden vår ble godkjent! Vi skal rive et gammelt hus og bygge nytt på gården som min mann har vokst opp på, og som vi nylig overtok.
Vi har sett på husleverandører og hustyper lenge og gikk til slutt for typen Helgero fra Hellvik Hus. Vi har gjort en del omtegninger på huset, og er blitt ganske fornøyd!
Nå jobber vi med planløsninger på bad og kjøkken slik at det kan låses, og vi kan komme oss videre i prosessen.
I mellomtiden skal vi også rive store deler av det gamle huset selv - eternittplater og skifertak skal fjernes.
Vi har vært hos trappeleverandør og vi har valgt ut fliser, og vi har også sett på laminatgulv fra BerryAlloc.
Med to små barn, gård og husbygging blir 2019 et travelt, men spennende år!

