293
2
0
Huset på holmen
2
0
Hei,
Ny på forumet J
Situasjonen:
Skal gå i gang med å bygge ut på nyåret men har en vei å gå enda, arkitekt har ikke vært involvert. Tanken er å få en til å se over når jeg har tegnet ferdig og som tar søkinga. Prosjekteringa/oppfølging/anbud tar jeg selv med bistand om jeg trenger det.
Tomt er valgt ut( nederste til venstre nr 39), hus er skissert men er litt i tvil på noen løsninger i planløsningen samt detaljer utvendig.
Jeg er under 30, har kjæreste og hund. Så tips fra barnefamilier er spesielt nyttig!
Tomt:
Sørvest vendt, noe forblåst, hører trafikken fra hovedvei 1km borte, 750kvm men ytterst på en holme slik jeg kan skjerme meg mot innsikt. Skole og barnehage er ca 700m fra tomten.
Bilder:


Utsikt




Huset:
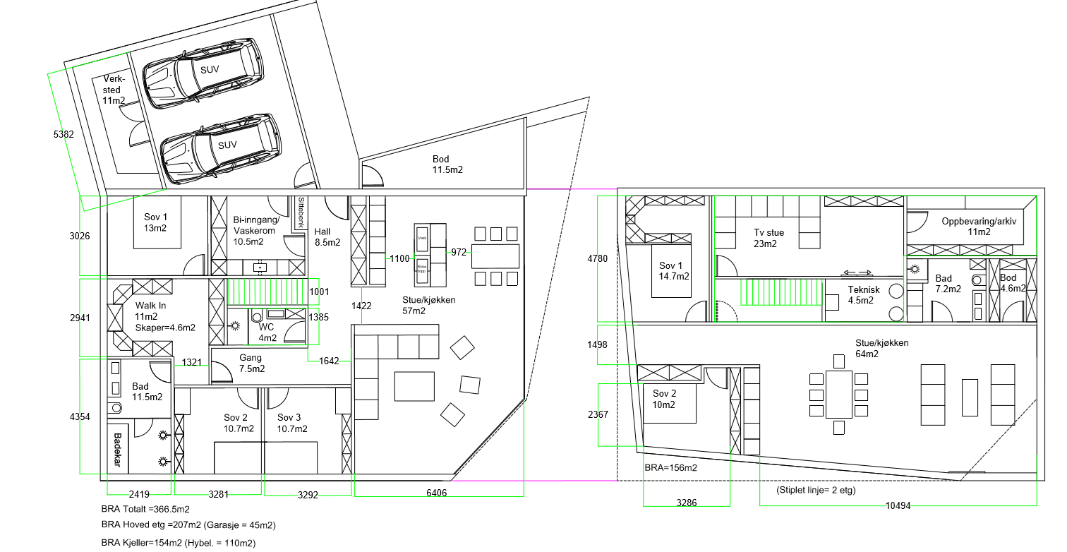
Huset har blitt formet til av: føresegner, værforhold, terreng, støy, utsikt, innsikt, funksjonalitet og egne preferanser. Ønsker mest mulig på et plan men bod, tv-stue og teknisk rom måtte ned til kjeller med hybelen.
Grunnen til jeg tenker hybel er føresegner (max 60kvm på leil + parkering, bod etc) samt at jeg vil ta arealet i bruk selv når unger (evt hund) er modne nok)
Begynner å bli fornøyd med linjene utvendig foruten om vindusstørrelse/plassering. Har bare tegnet inn vinduer jeg er fornøyd med.
Planløsningen begynner også å ta form men ønsker feedback fra andre. Er nå sikkert på revisjon 99 og har mange igjen.
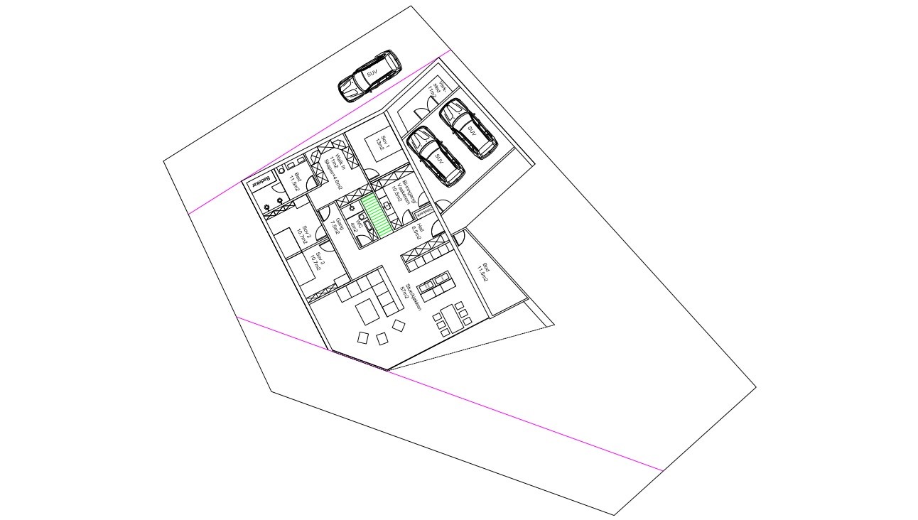
Bilder:
Planløsning

Ute område

Sør

Vest

Nord

Øst

Forsøk på folding

Levegg/grill krok

Teknisk:
Tak blir av Q-dekke
Bjelkelag i I-bjelker
Oppvarming med peis og/eller varmefolie/ kabler. Da jeg tenker responstiden til vann er for slakk, selv i spon. Samt at det ikke kan regnes hjem, selv med kassett.?
Sentralstøvsuger
U-smart el løsninger
Ventilasjon i bjelkelag/vegger
Vinduer/foldedør/skyvedør i Aluminium, kanskje Schueco leveranse. Eller Frameless glass curtains om de reduserer pris. (30% dyrere en foldedører/skyvedører fra Schuco)
Kledning i møre royal eller kebony (har ikke studert/landet dette)
Alle innerdører er 90x210
Overflate vil jeg bruke tre el. for å skape atmosfære som det heter så fint. Bra lei gips.
Se, vurder og kom med tilbakemelding! Spesielt konstruktiv kritikk. I den spede begynnelse var jeg så fornøyd at jeg kunne begynne å bygge på flekken, nå tenker jeg «WTF» av samme løsning (var en mix av Bat Cave og en brakkerigg). Så jeg er ydmyk J
Ny på forumet J
Situasjonen:
Skal gå i gang med å bygge ut på nyåret men har en vei å gå enda, arkitekt har ikke vært involvert. Tanken er å få en til å se over når jeg har tegnet ferdig og som tar søkinga. Prosjekteringa/oppfølging/anbud tar jeg selv med bistand om jeg trenger det.
Tomt er valgt ut( nederste til venstre nr 39), hus er skissert men er litt i tvil på noen løsninger i planløsningen samt detaljer utvendig.
Jeg er under 30, har kjæreste og hund. Så tips fra barnefamilier er spesielt nyttig!
Tomt:
Sørvest vendt, noe forblåst, hører trafikken fra hovedvei 1km borte, 750kvm men ytterst på en holme slik jeg kan skjerme meg mot innsikt. Skole og barnehage er ca 700m fra tomten.
Bilder:


Utsikt




Huset:
Huset har blitt formet til av: føresegner, værforhold, terreng, støy, utsikt, innsikt, funksjonalitet og egne preferanser. Ønsker mest mulig på et plan men bod, tv-stue og teknisk rom måtte ned til kjeller med hybelen.
Grunnen til jeg tenker hybel er føresegner (max 60kvm på leil + parkering, bod etc) samt at jeg vil ta arealet i bruk selv når unger (evt hund) er modne nok)
Begynner å bli fornøyd med linjene utvendig foruten om vindusstørrelse/plassering. Har bare tegnet inn vinduer jeg er fornøyd med.
Planløsningen begynner også å ta form men ønsker feedback fra andre. Er nå sikkert på revisjon 99 og har mange igjen.
Bilder:
Planløsning

Ute område

Sør

Vest

Nord

Øst

Forsøk på folding

Levegg/grill krok

Teknisk:
Tak blir av Q-dekke
Bjelkelag i I-bjelker
Oppvarming med peis og/eller varmefolie/ kabler. Da jeg tenker responstiden til vann er for slakk, selv i spon. Samt at det ikke kan regnes hjem, selv med kassett.?
Sentralstøvsuger
U-smart el løsninger
Ventilasjon i bjelkelag/vegger
Vinduer/foldedør/skyvedør i Aluminium, kanskje Schueco leveranse. Eller Frameless glass curtains om de reduserer pris. (30% dyrere en foldedører/skyvedører fra Schuco)
Kledning i møre royal eller kebony (har ikke studert/landet dette)
Alle innerdører er 90x210
Overflate vil jeg bruke tre el. for å skape atmosfære som det heter så fint. Bra lei gips.
Se, vurder og kom med tilbakemelding! Spesielt konstruktiv kritikk. I den spede begynnelse var jeg så fornøyd at jeg kunne begynne å bygge på flekken, nå tenker jeg «WTF» av samme løsning (var en mix av Bat Cave og en brakkerigg). Så jeg er ydmyk J
Siste redigering: Tuesday, October 25, 2016 8:02:51 AM av SVE
SVE
(trådstarter)
2
0
Med vindu:






Hjelpema
1,674
0
Fin tomt,
, huset har jeg ikke fått sett så mye på.