675  
                     0  
                     0
                     
                
                
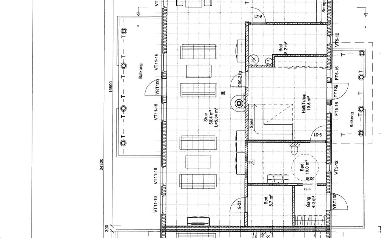
            Bad/vaskerom 1. etg.
                     10   
                         Nordland   
                     0
                
            
        Trenger litt tips til smart innredning på badet i 1. etg. 10km2. Dette er et bad som skal fungere som vaskerom, bad og gjestetoalett. Dusjnisjen trenger ikke nødvendigvis å være der den er tegnet inn. Det eneste som er fastlåst er dørene. Det er jo så mange kreative sjeler her inne, så håper på noen innspill  
       
            