813
5
0
Bærevegg?
73
Bergen
0
Hei,
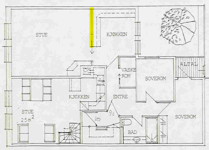
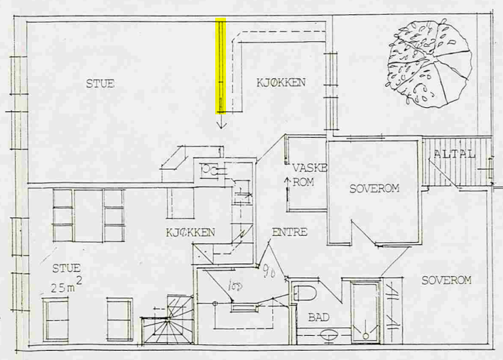
Kan noen av dere se om dette er en bærevegg utifra den enkle plantegningen? Ønsker å rive denne veggen for å lage en åpen kjøkken/stue-løsning.
Kan noen av dere se om dette er en bærevegg utifra den enkle plantegningen? Ønsker å rive denne veggen for å lage en åpen kjøkken/stue-løsning.


Hvis det var vanskelig med opplegg av bjelker mot pipe så kan de ha snudd noe her.
Hva er i etasjen(e) over?
Hvordan er yttertaket bygget? F.eks W-takstoler og hvilken vei?