Uansett hva du gjør, tenk over om resultatet høyner verdien/at du får igjen pengene dine når/om du engang skal selge.
Slik det er så har du en kjøkken/spisestueløsning med en litt nedprioritert sovealkove. Med ditt forslag har du et hybelkjøkken, spising flyttet til stue og et opprioritert, flott soverom med vinduer som du trenger rullegardiner for å blende av når du skal sove.
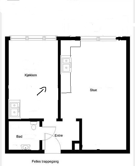
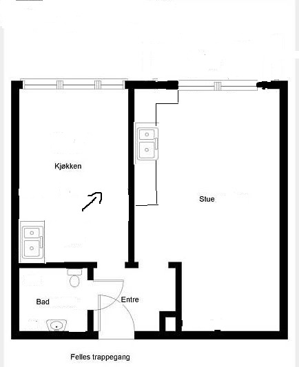
Her er en meget ultimat løsning. MEN der jeg har satt piler er det åpnet til dører i bæreveggen. Hva tenker dere om det? Lar det seg gjøre og hva vil det koste? Bor i 3. etasje i en murblokk med 5 etasjer. Vet man må få inn en byggingeniør til å beregne osv hvis man skal åpne en bærevegg, så kronene ruller sikkert fort.
Er du sikker på at dette er en bærevegg. Hvor tykk er den? Selv om det er en bærevegg skal det ikke være noe problem å sette inn en dør eller to i den.
det billigste blir vell lettvegg kjøkken\soverom, og få en betongskjærer til og skjære ut kun døråpning til sovrommet, da trenger du minimalt med beregning
det billigste blir vell lettvegg kjøkken\soverom, og få en betongskjærer til og skjære ut kun døråpning til sovrommet, da trenger du minimalt med beregning
Det var jo egentlig en kombinasjon av de to forslagene mine over som jeg ikke engang har tenkt over. Topp! Eneste er at det kanskje kan bli en smule trangt kjøkken med lite utlufting? Kan jo evt først sage ut dør til soverom, så spare til å sage ned dør/åpning på kjøkken.
Ellers vet jeg lite om bæreveggen..både om materiale og tykkelse.. men kan jo sikkert ta en tlf til vaktmesteren, mulig han vet.
Må si jeg har fått mye god info på kort tid av alle, takker for det.
godt du likte forslaget :) en kullfilter avtrekk er ikke optimalt, men er et greit komprimi syns jeg. i veldig mange blokker er det kun lov til og bruke kullfilter. siden ventilasjonsanlegget er gammelt. viss du lager et lite L formet kjøkken vill du kanskje få en barløsning til og spise på på en motsatt vegg.
blir jo ikke fjerning av bærevegg, blir jo bare og ta en åpning, veggen er vell 250-270 høy, i verstefall må du ta 25cm bredere åpning og legge inn en liten bjelke.
Jeg bodde i en sånn leilighet på Carl Berner for 10 år siden. :)
Jeg stemmer på løsning med lettvegg og lite soverom på kjøkken. Hvis det blir for mye mas eller for dyrt med dør fra stuen er det ikke SÅ rart å gå gjennom kjøkken til soverom.
Ok.. da har jeg flyttet inn i min lille leilighet. Hadde bestemt meg for å sette opp lettvegg på nåværende kjøkken og gjøre det om til kjøkken OG soverom. Men nå vurderer jeg en annen løsning. Det er god høyde i rommene, ca 2,65 m. Hva med å flytte vann og avløp til den ene veggen i stue? Bygge opp gulvet litt og legge trekke rørene dit.
Hva tenker dere om denne løsning? Noen som kan ha noe som aning om hva dette vil koste?
Med den løsningen trenger du kun å heve gulvet i det nye soverommet.
Går avløpet fra nåværende kjøkken ned i gulvet eller inn i veggen? Om det går inn i veggen, vet du at du må heve gulvet høyere enn der det går inn i veggen. Av tegningen ser det ut som er ca 3m fra gammel til ny vask. Dvs at nytt gulvnivå må komme 30mm (1:100 fall) + 22mm (tykkelse gulvspon) + ca 14mm (tykkelse parkett) = 66mm over overkanten av røret der det kommer ut av veggen.
Rørleggermessig er ikke dette noen stor jobb. Har du nytt kjøkken klart når rørlegger kommer, legger han alt av rør og kobler til nytt kjøkken på en halv dag.
Å lage hull i veggen for rørene er det første du må gjøre. Kan ikke se for meg at det skal være noe stort prosjekt, men det spørs jo hva den er laget av.
Oppbygging av bjelkelag og legging av nytt gulv fikser du fint selv. Kost på bjelkelag avhenger av høyden du trenger. Regn 30-50kr/m2 Undergulv kan du regne 100kr/m2 Parkett (eller annet gulv) kan du regne fra 170 til 1500kr/m2
Justering av dørhøyde kan jo bli spennende. Hva finnes i veggen der?
Så spørs det om du skal ha varmekabler når du først er i gang?
Sånn som jeg ser det nå så kommer rørene til vasken på kjøkken ut av veggen... ca 10 cm fra gulvet.. jeg vet at det er en anne i blokka som har flyttet kjøkkenet til stuen på den, så da er det jo gjennomførbart vil jeg tro.
Ja, justering av dørhøyden blir jo en jobb.. man kan kanskje evt heve gulvet i bare deler av soverommet. At man har en klaring rundt døra slik at den kan åpnes, og heller bygger en liten kant og så hever gulvet resten? Har nok ikke råd til varmekabler. Ser for meg at dette blir et dyrt nok prosjekt med helsparkling av nytt soverom, ordne gulv, rørlegger, nytt kjøkkenet.. hjelp!
Slik det er så har du en kjøkken/spisestueløsning med en litt nedprioritert sovealkove. Med ditt forslag har du et hybelkjøkken, spising flyttet til stue og et opprioritert, flott soverom med vinduer som du trenger rullegardiner for å blende av når du skal sove.
Er du sikker på at dette er en bærevegg. Hvor tykk er den? Selv om det er en bærevegg skal det ikke være noe problem å sette inn en dør eller to i den.
Det var jo egentlig en kombinasjon av de to forslagene mine over som jeg ikke engang har tenkt over. Topp! Eneste er at det kanskje kan bli en smule trangt kjøkken med lite utlufting? Kan jo evt først sage ut dør til soverom, så spare til å sage ned dør/åpning på kjøkken.
Ellers vet jeg lite om bæreveggen..både om materiale og tykkelse.. men kan jo sikkert ta en tlf til vaktmesteren, mulig han vet.
Må si jeg har fått mye god info på kort tid av alle, takker for det.
blir jo ikke fjerning av bærevegg, blir jo bare og ta en åpning, veggen er vell 250-270 høy, i verstefall må du ta 25cm bredere åpning og legge inn en liten bjelke.
Jeg stemmer på løsning med lettvegg og lite soverom på kjøkken. Hvis det blir for mye mas eller for dyrt med dør fra stuen er det ikke SÅ rart å gå gjennom kjøkken til soverom.
Med et målebånd finner du også tykkelsen på veggen. Ved å banke på den hører du hva den er laget av
Hva tenker dere om denne løsning? Noen som kan ha noe som aning om hva dette vil koste?
Går avløpet fra nåværende kjøkken ned i gulvet eller inn i veggen? Om det går inn i veggen, vet du at du må heve gulvet høyere enn der det går inn i veggen. Av tegningen ser det ut som er ca 3m fra gammel til ny vask. Dvs at nytt gulvnivå må komme 30mm (1:100 fall) + 22mm (tykkelse gulvspon) + ca 14mm (tykkelse parkett) = 66mm over overkanten av røret der det kommer ut av veggen.
Rørleggermessig er ikke dette noen stor jobb. Har du nytt kjøkken klart når rørlegger kommer, legger han alt av rør og kobler til nytt kjøkken på en halv dag.
Å lage hull i veggen for rørene er det første du må gjøre. Kan ikke se for meg at det skal være noe stort prosjekt, men det spørs jo hva den er laget av.
Oppbygging av bjelkelag og legging av nytt gulv fikser du fint selv. Kost på bjelkelag avhenger av høyden du trenger. Regn 30-50kr/m2
Undergulv kan du regne 100kr/m2
Parkett (eller annet gulv) kan du regne fra 170 til 1500kr/m2
Justering av dørhøyde kan jo bli spennende. Hva finnes i veggen der?
Så spørs det om du skal ha varmekabler når du først er i gang?
Sånn som jeg ser det nå så kommer rørene til vasken på kjøkken ut av veggen... ca 10 cm fra gulvet.. jeg vet at det er en anne i blokka som har flyttet kjøkkenet til stuen på den, så da er det jo gjennomførbart vil jeg tro.
Ja, justering av dørhøyden blir jo en jobb.. man kan kanskje evt heve gulvet i bare deler av soverommet. At man har en klaring rundt døra slik at den kan åpnes, og heller bygger en liten kant og så hever gulvet resten?
Har nok ikke råd til varmekabler. Ser for meg at dette blir et dyrt nok prosjekt med helsparkling av nytt soverom, ordne gulv, rørlegger, nytt kjøkkenet.. hjelp!