3,430    15    3  

Hybeldel som benytter baktrapp som inngang. Innenfor?

 30     0
Hei,

jeg vurderer bygge en adskilt hybeldel i leiligheten min (3. etg i en bygård med 5 etg.), og lurer på om det er innenfor at den innvendige baktrappen (nødutgang) benyttes som adkomst til hybeldelen.

Jeg tenker installere Parat redningsline i begge enhetene, slik at kravet om to rømningsveier er oppfylt.

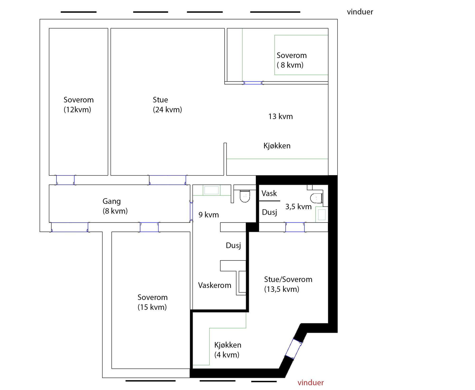
Har vedlagt ønsket plantegning. Det kan kanskje se ut som et vindu nederst til høyre, men det er altså døren ut til baktrappen.

Husk dette under oppussing: Lagre kvitteringer, bilder og avtaler i Boligmappa. Logg inn her

   #1
 4,452     Vestlandet     0
Spørsmålet er vel hva du vil være innenfor av. Loven eller egen god samvittighet?

Innenfor loven vil du nok ikke være uten en del andre tiltak. Innenfor egen samvittighet må du nesten bestemme selv.
Signatur
  (trådstarter)
   #2
 30     0
Spørsmålet er vel hva du vil være innenfor av. Loven eller egen god samvittighet?

Innenfor loven vil du nok ikke være uten en del andre tiltak. Innenfor egen samvittighet må du nesten bestemme selv.

Takk for svar, men dette gjorde meg ikke så mye klokere Smile

Det jeg lurer på er om det er lov at hybeldelen har den innvendige baktrappen som hovedinngang.
   #3
 1,060     Jevnaker     0
Hvordan vil naboer se på trafikk i baktrappen? Det er jo som du sier: en nødutgang...
Signatur
   #4
 4,452     Vestlandet     0
Det er nok ingen lov i plan og bygningsloven eller tek10 som sier at man ikke kan bruke den oppgangen til inngang. Men kanskje bestemmelsene i bygården forhindrer det.

Det lover derimot sier er at det skal være to rømningsveier i fra enhver boenhet. Det finnes mange muligheter å tilfredstille dette. Ved å stenge av en rømningsvei for hoveddelen, så må det prosjekteres et alternativ.

Du nevner en Parst redningsline. Jeg kjenner ikke produktet og hva det er godkjent for, så det er vanskelig å si om det er nok eller vil bli godkjent. Man må ha litt mer info for å vurdere det, men det er slikt prosjekteringen i tiltaket har ansvar for. Dette må du ha inn et ansvarlig foretak for å søke og prosjektete, så er det de som må dokumentere dette slik at kommunen kan godkjenne løsningen.
Signatur
  (trådstarter)
   #5
 30     0
Takk for svar. I sameiets vedtekter står det ingenting om at den ikke skal benyttes. Jeg har kontaktet styreleder for å høre hva hun sier om det.
   #6
 39,523     Lillestrøm kommune     0
Vil tro at 5.etg og ned er utenfor hva redningsline gir av rømningsvei så dette går ikke. Du kan ha hybel i egen boenhet, men begge må kunne ha tilgang til begge rønningsveier. Hybelboeren må ellers vaske 5 etg med trapp hver uke ?
  (trådstarter)
   #7
 30     0
Vil tro at 5.etg og ned er utenfor hva redningsline gir av rømningsvei så dette går ikke. Du kan ha hybel i egen boenhet, men begge må kunne ha tilgang til begge rønningsveier. Hybelboeren må ellers vaske 5 etg med trapp hver uke ?

Det er i tredje etg.

Og det er jo krav om to rømningsveier, den ene vil være hovedinngang, og den andre kan være brannstige e.l. Parat redningline er godkjent rømningsvei, så sånn sett skulle man jo ikke måtte ha noen felles rømningsvei.

   #8
 39,523     Lillestrøm kommune     0
Selv i 3. etg er jeg usikker på om det godkjennes. Ofte er etasjehøydene store.
Jeg er også litt usikker på bestemor på besøk i redningsline ...
   #9
 247     1
Det finnes en god del boliger der rømningsvei brukes som hovedinngang.
Spesielt i gamle trebygninger og i eldre borettslag brukes rømningsvei.

Spørsmålet er om naboene vil godta trafikken.
   #10
 5,432     Akershus     2
Hva med å sette en brann/lyddør mellom leilighetene. Det kan være en med plombert lås som bare skal brukes i en nødssituasjon.

Således vil begge leiligheter ha en rømningsvei.