95
0
0
Nybygg - innspill mottas med stor takk!
1
0
Hei,
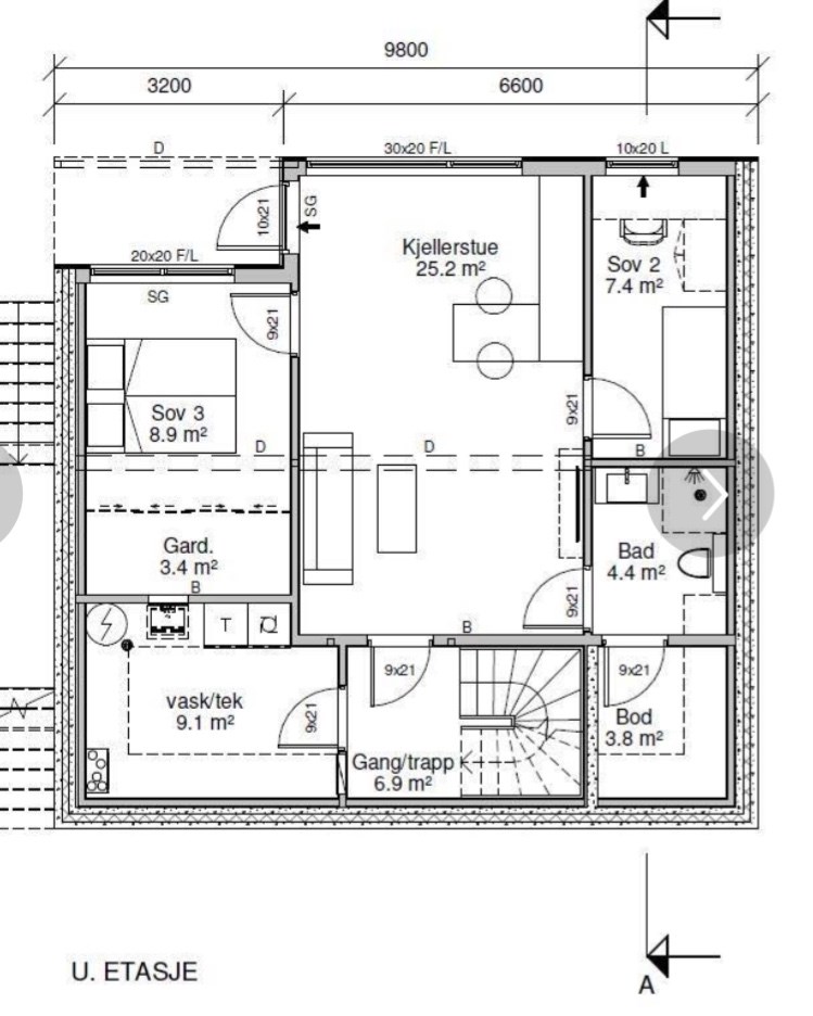
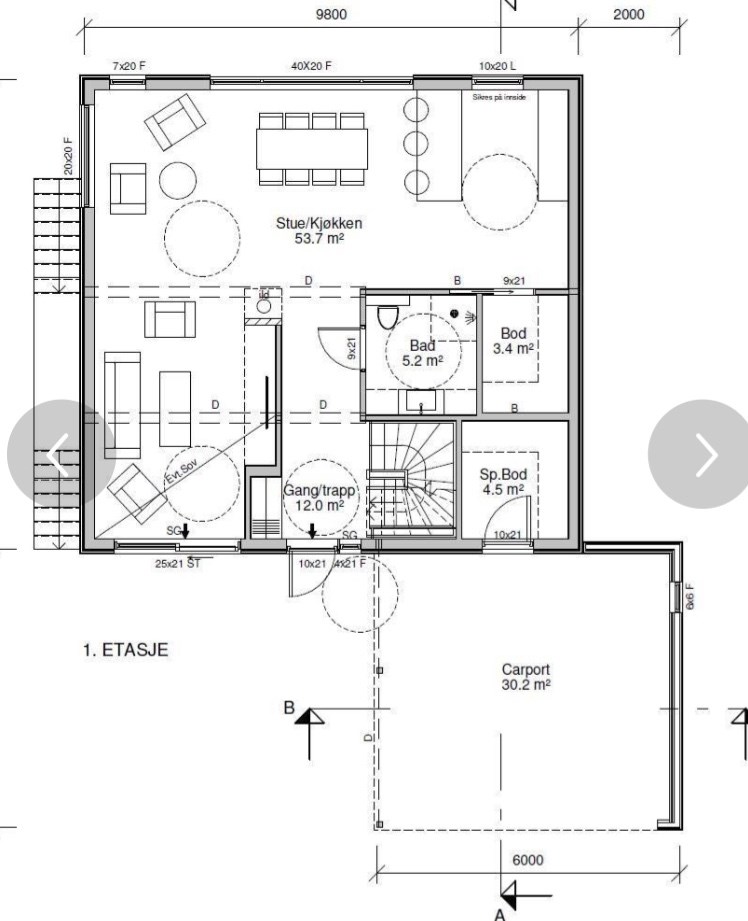
Ny på forumet her, og ny som (snart) huseier! Utbygger er kjappe, og krever at de endringene vi eventuelt ønsker meldes inn så fort som mulig. Ønsker derfor innspill på planløsning! Blir også takknemlig for råd og tips av andre slag hva gjelder hus.
Se vedlagte bilder av planløsning. Endringer vi ønsker så langt er å utvide takterrassen slik at utgang blir fra loftstue/gang. Da får vi også overbygg over inngangsparti. Vi vil også rive veggen mellom bod og sportsbod og lage biinngang/grovkjøkken. Kjeller blir utleiedel, med unntak av vaskerom.



Innspill? Råd? Tips?
Ny på forumet her, og ny som (snart) huseier! Utbygger er kjappe, og krever at de endringene vi eventuelt ønsker meldes inn så fort som mulig. Ønsker derfor innspill på planløsning! Blir også takknemlig for råd og tips av andre slag hva gjelder hus.
Se vedlagte bilder av planløsning. Endringer vi ønsker så langt er å utvide takterrassen slik at utgang blir fra loftstue/gang. Da får vi også overbygg over inngangsparti. Vi vil også rive veggen mellom bod og sportsbod og lage biinngang/grovkjøkken. Kjeller blir utleiedel, med unntak av vaskerom.



Innspill? Råd? Tips?