650
4
0
Renovering loft og tilbygg
3
0
Hei.
Er ganske ny innpå her, men treng litt eksperthjelp.
Eier et lite tømmerhus fra 1929.
Grunnflata er på knappe 62 kvadratmeter.
Har renovert kjøkkenet, stua og gangen.
Badet er fra midten på 80 tallet og ikke gjort noe med, for det skal vi flytte til et tilbygg vi vurderer å sette opp. Har fått ny kledning på huset, isolert og fått nytt tak, så alt det er gjort.
Men det så gjenstår nå er :
* Renovere loftet, og få nye romløsninger der oppe! Med 3-4 soverom. Er skråtak nesten til gulv der.
* Ny trapp opp til overetasjen.
* Nytt vaskerom på det eksisterende bad.
* Et tilbygg på max 50 kvadratmeter som skal inneholde en tv stue, nytt bad, et lite soverom/kontor og større gang.
* Vil også flytte sikringskapet til hovudetasjen, og blir å flytte det beint ned fra der det står nå.
Hva tenker dere det vil koste totalt?
Er jo ikke det største huset, og treng heller ikke snekker på alt.
Er ganske ny innpå her, men treng litt eksperthjelp.
Eier et lite tømmerhus fra 1929.
Grunnflata er på knappe 62 kvadratmeter.
Har renovert kjøkkenet, stua og gangen.
Badet er fra midten på 80 tallet og ikke gjort noe med, for det skal vi flytte til et tilbygg vi vurderer å sette opp. Har fått ny kledning på huset, isolert og fått nytt tak, så alt det er gjort.
Men det så gjenstår nå er :
* Renovere loftet, og få nye romløsninger der oppe! Med 3-4 soverom. Er skråtak nesten til gulv der.
* Ny trapp opp til overetasjen.
* Nytt vaskerom på det eksisterende bad.
* Et tilbygg på max 50 kvadratmeter som skal inneholde en tv stue, nytt bad, et lite soverom/kontor og større gang.
* Vil også flytte sikringskapet til hovudetasjen, og blir å flytte det beint ned fra der det står nå.
Hva tenker dere det vil koste totalt?
Er jo ikke det største huset, og treng heller ikke snekker på alt.
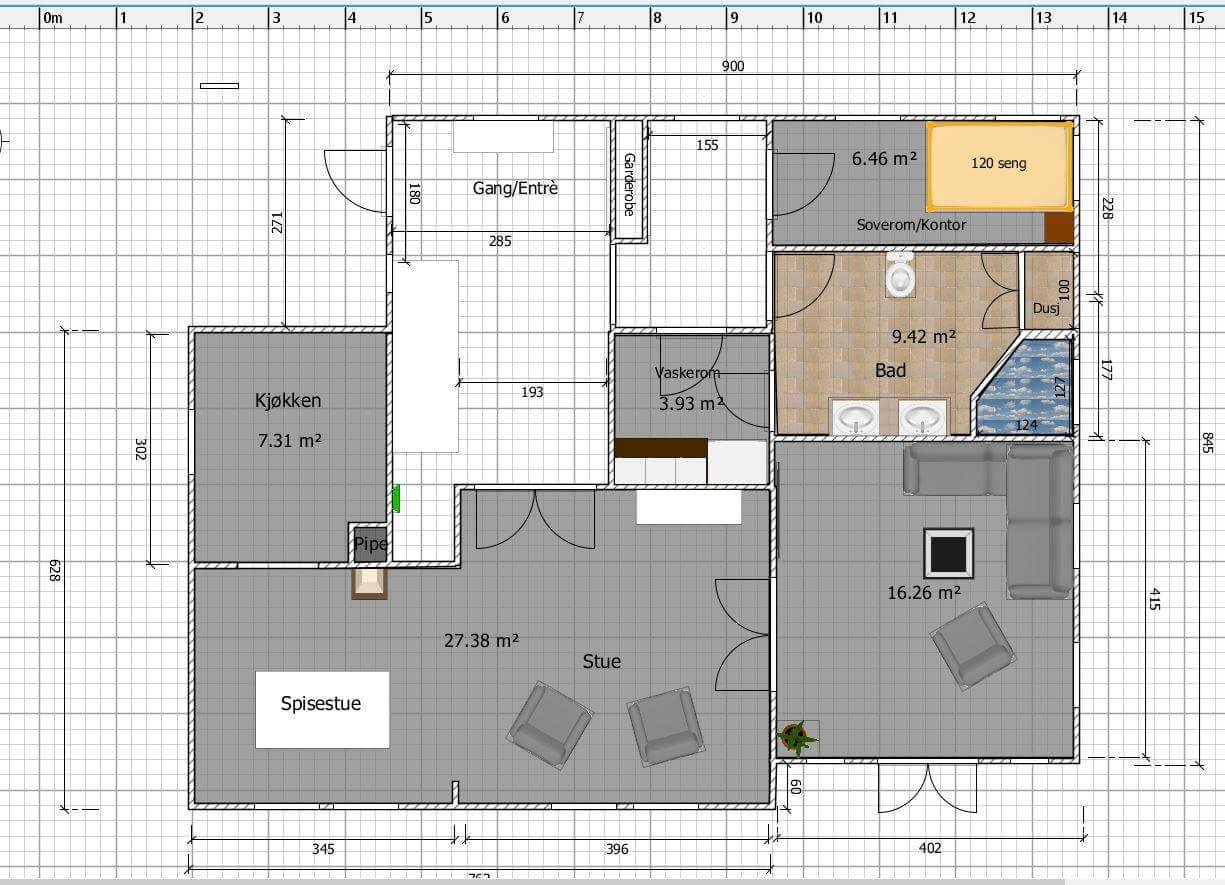
Det nye tilbygget er det helt til høyre som inneholder tv stue, bad og soverom/kontor, og skal gå helt rundt til det møter eksisterende gang, der som er tegna garderobe. Blir vel en ark på baksiden.
Alltid vanskelig å mene noe om pris på sånt da det er så mange faktorer som påvirker. Når det gjelder tilbygget tror jeg fint du kan regne med 20-25K pr. m2. Prisen vil også avhenge av hvordan tilbygget skal integreres med eksisterende bygningsmasse - en "klump" på siden eller et tilbygg som i større grad "helintegreres" og har samme uttrykk og fremtoning som huset for øvrig?
Trapp - kanskje 40 000 - 60 000? Avhenger blant annet av type trapp. Jeg er ikke særlig stø på slike priser, så ta det med noen klyper salt
Hva legger du i nytt vaskerom på det eksisterende badet?
Hvordan ser loftet ut nå? Oppholdsrom? Kaldtloft? Må dere søke bruksendring? Får dere plass til 3-4 godkjente oppholdsrom/soverom? Med 62 m2 grunnflate og skråtak kan det ikke være all verden plass. Du sier dere har nytt tak - er det et luftet/diffusjonsåpent tak?
Sikringsskap - aner egentlig ikke. Avhenger vel blant annet av hvor mye arbeid som går med på å flytte kabler, alternativt strekke nye. Gammelt anlegg? Kan være det lønner seg å gå for en pakkepris med nytt skap og nye jordfeilautomater.
Jeg vil nok anbefale dere å sette opp en mer detaljert oversikt over hva slags arbeid som skal gjøres og gjerne ta noen bilder i tillegg. Da blir det enklere å gi innspill. Så er det verdt å minne om tre ting:
På loftet, meina da overetasjen som skal renoveres er det 3 soverom idag, med skråtak.
Spennvidden er stor og hva som skal gjøres påvirker selvsagt prisen