2,517
0
0
Tips og kommentarer til enebolig i betongelementer (sandwich)
7
0
Heisann. Jeg ble inspirert av OnlyOne sitt nydelige betongelementhus og fikk lyst å se om jeg kan bruke betongsandwichelementer til det som planlegges som min første egne bolig. Siden det å bygge nytt er tildels kostbart, og utleiemarkedet er forholdsvis godt, så har jeg planlagt et hus med en utleieenhet i underetasjen. Mener at jeg har fått med meg de viktigste kravene til beboelse, da vinduer er store nok, rømningsvei er ok og brann-/og lydisolering er ivaretatt med hulldekker og betongskille mellom boenhetene.
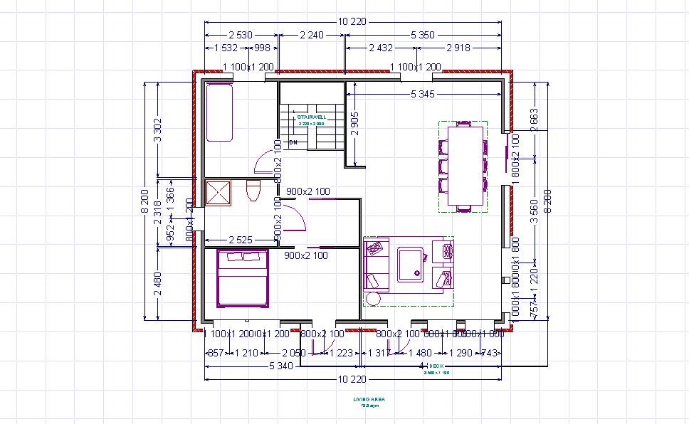
Begge inngangspartiene er lagt til underetasjen. I hoveddelen har jeg i underetasjen planlagt et gjesterom, et gjestebad, og vaskerom med utgang til tørkeplass (kombinert med teknisk rom), alt forbundet med en gang med integreert garderobeløsning langs skilleveggen mot utleieenheten. Fortsetter opp en trapp med repos, til et kontor/barnerom i det nordøstre hjørnet. Deretter følger et lite bad med sluseinngang videre til hovedsoverommet. Mot sørvest planlegges det kjøkken i L-form og stuedel. Utkraget balkong med utgang fra kjøkkendel, stuedel og hovedsoverom.
Utleieenheten er liten (omtrent 45 kvm), men skulle være romslig og luftig nok til å passe de fleste. Kjøkkenet er tenkt plassert langs skilleveggen mellom boenhetene (kan hende at det er litt knapt med ca. 3,5 lengdemeter). Integrerte garderober også i gang og på soverom.
Tomten er skrånende både i bredde og lengderetning, så målet er å få plassert huset høyt nok på tomten til at kravene til trinnfri adkomst kan søkes dispensert.
Tar gjerne i mot kommentarer og gjerne erfaringer med bruk av betongelementer som byggeelement. Kort monteringstid er en stor fordel med elementene, slik jeg ser det.
Begge inngangspartiene er lagt til underetasjen. I hoveddelen har jeg i underetasjen planlagt et gjesterom, et gjestebad, og vaskerom med utgang til tørkeplass (kombinert med teknisk rom), alt forbundet med en gang med integreert garderobeløsning langs skilleveggen mot utleieenheten. Fortsetter opp en trapp med repos, til et kontor/barnerom i det nordøstre hjørnet. Deretter følger et lite bad med sluseinngang videre til hovedsoverommet. Mot sørvest planlegges det kjøkken i L-form og stuedel. Utkraget balkong med utgang fra kjøkkendel, stuedel og hovedsoverom.
Utleieenheten er liten (omtrent 45 kvm), men skulle være romslig og luftig nok til å passe de fleste. Kjøkkenet er tenkt plassert langs skilleveggen mellom boenhetene (kan hende at det er litt knapt med ca. 3,5 lengdemeter). Integrerte garderober også i gang og på soverom.
Tomten er skrånende både i bredde og lengderetning, så målet er å få plassert huset høyt nok på tomten til at kravene til trinnfri adkomst kan søkes dispensert.
Tar gjerne i mot kommentarer og gjerne erfaringer med bruk av betongelementer som byggeelement. Kort monteringstid er en stor fordel med elementene, slik jeg ser det.









