1,328
0
0
Tips til stag i mønedrager.
14
0
Hei,
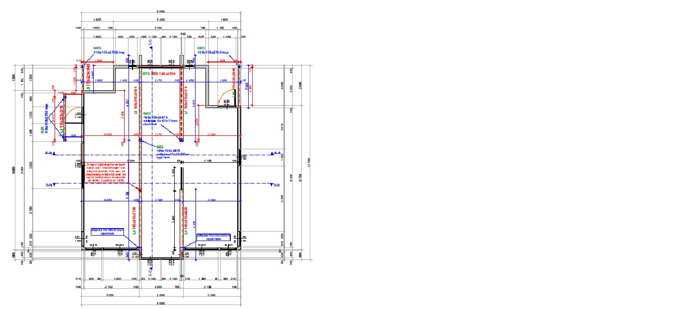
Trenger litt hjelp her ang et stag vi skal bruke mellom limtredrager i bjelkelaget i 1.etg opp mot "mønedrager" i gulv 2.etg
Ser denne måten grei ut ? Trenger å finne ut hvor stor bolt eg trenger her for å kunne holde et strekkfasthet på 54kN (5400kg).
Planen er å gjenge begge endene og skru fast i stålplatene som er rundt, men kanskje like så greit å bare sveise denne ??
Takk for alle tips, det trengs her! Skal snart gå i gang med byggingen
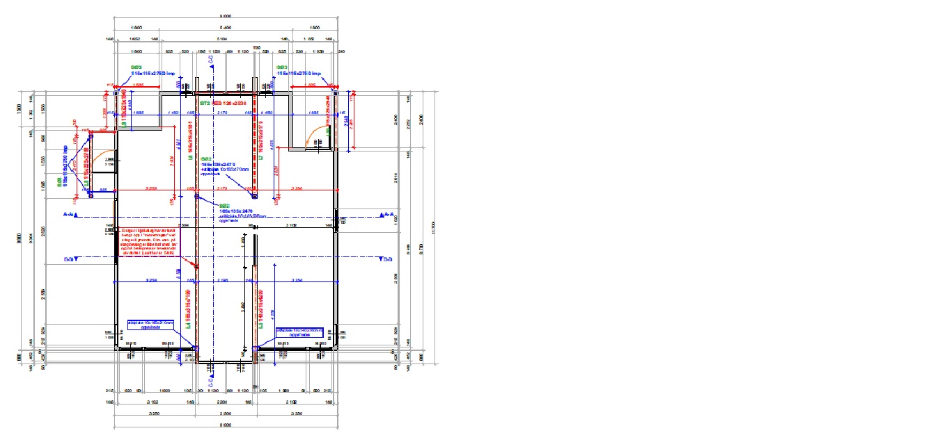
Trenger litt hjelp her ang et stag vi skal bruke mellom limtredrager i bjelkelaget i 1.etg opp mot "mønedrager" i gulv 2.etg
Ser denne måten grei ut ? Trenger å finne ut hvor stor bolt eg trenger her for å kunne holde et strekkfasthet på 54kN (5400kg).
Planen er å gjenge begge endene og skru fast i stålplatene som er rundt, men kanskje like så greit å bare sveise denne ??
Takk for alle tips, det trengs her! Skal snart gå i gang med byggingen

