6,632
9
0
Innspill på tilbud fra Norske Hus
19
På landet =)
0
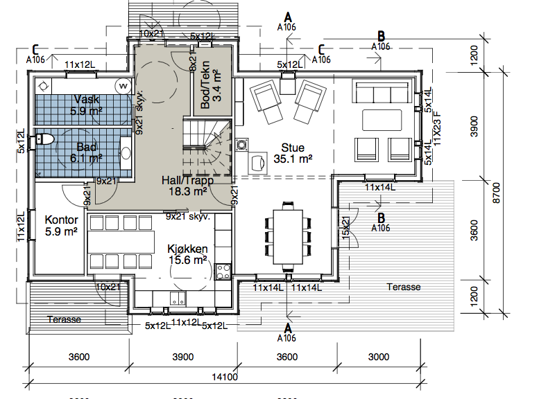
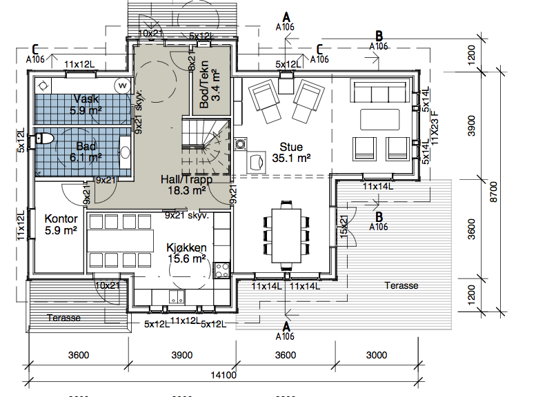
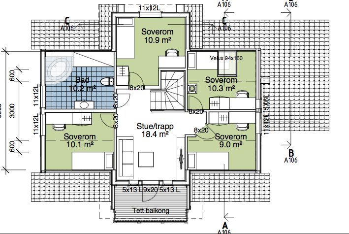
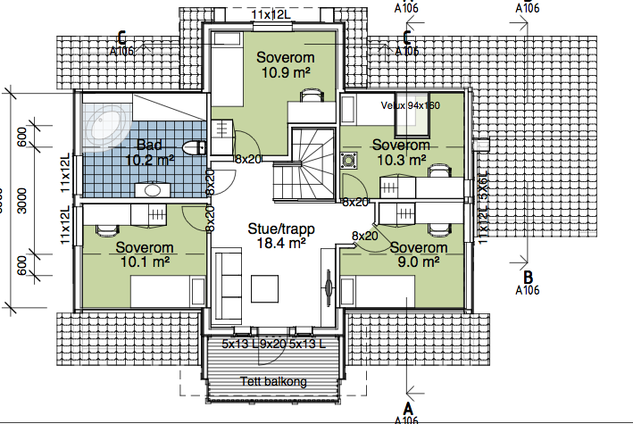
Jeg ba om et komplett (og spesifikt) tilbud. Jeg har likevel fått tilbud på byggesett. I tillegg synes jeg det mangler så mye. Huset er et capella med litt endringer. Kan noen se på dette for meg? Se hva som mangler og fortelle meg veien videre?
Jeg har tatt skjermbilde av dok. for å fjerne mine egne personalia..
Jeg har tatt skjermbilde av dok. for å fjerne mine egne personalia..












Hei!
Her kommer endelig tilbud, samt tegninger og timeverk. Tilbudet er på komplett byggesett, Snekker prisen er ikke ferdig ut regnet
men vi bruker timeverk til å regne det ut. Dette fordi dere kan bruke de stipulerte timene til å innhente pris fra lokale snekkere også.
Dere ganger timene med timesprisen til snekker.
Ta kontakt med meg om det er spørsmål.
Det hele ser ok ut i mine øyne.
Hvor går veien videre nå?
Ta utgangsprisen fra leverandøren og gang den med 2. Da har du prisen på komplett hus uten tomt.
PS! Husk grunnarbeid og betongarbeider også.
Hilsen erfaren boligbygger...
Stefan
Ingen utdanning innen bygg, anlegg, elektro eller VVS.