409
2
0
Utendørs belysning
14
0
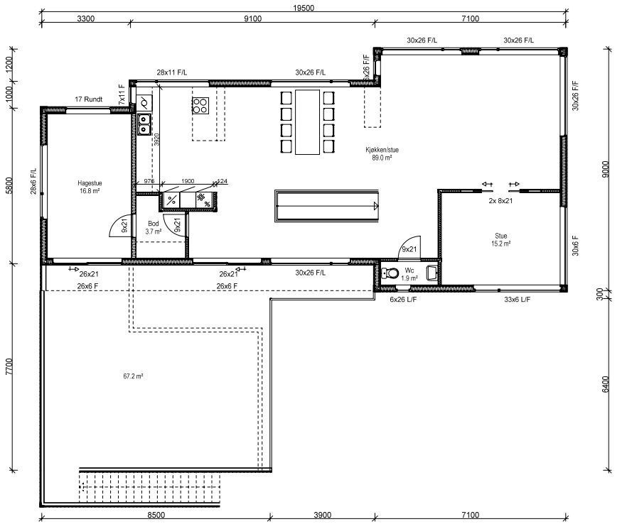
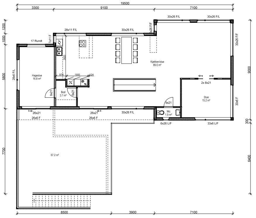
Hei er usikker på om jeg skal gå for fast avstand mellom spottene i kassen rundt huset. eller om jeg skal belyse bare mellom vinduene? det er ca 6,5 meter fra kassen og ned til bakken.
Spotter jeg har kjøpt er SG Jupiter outdor med GU10 pære.
Håper på tips
Spotter jeg har kjøpt er SG Jupiter outdor med GU10 pære.
Håper på tips


Ville montert dette jevnt uten å tenke på vinduene, med en drøy meter mellom hver spot.
Hos meg tenkte jeg det bare skulle bli pyntelys, og ikke lyse opp alt for mye hvis du skjønner
(Svalgang, 4W LED GU10)
Noe ala dette:
http://www.byggebolig.no/imageoriginals/0844c415f658ce6956f85cd95879b4a69093f84f.jpg?maxwidth=1200&maxheight=1500
Pent dette men kansje litt for tett mellom spottene?