752
4
0
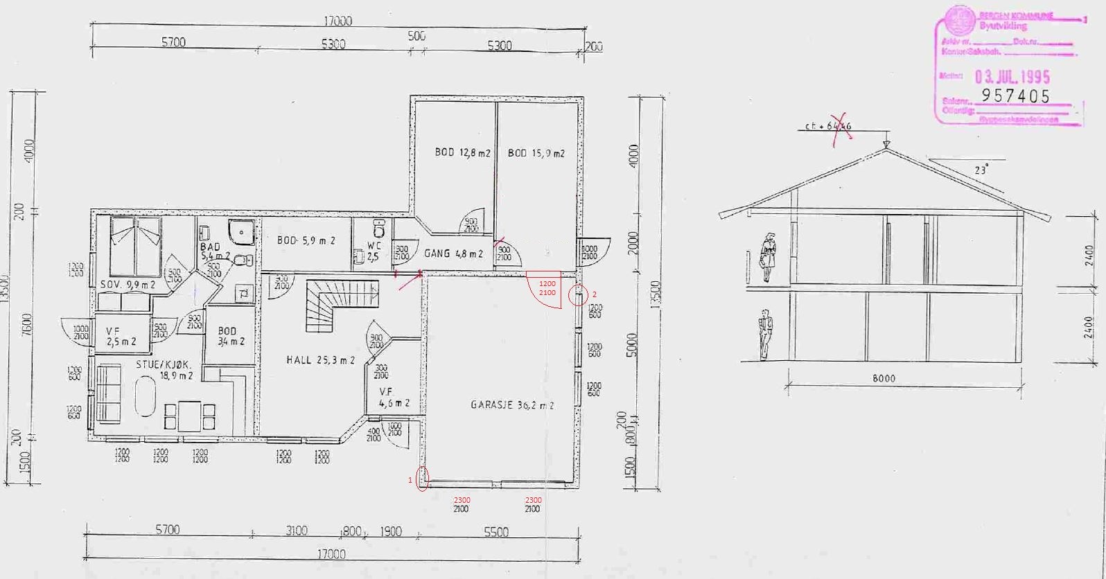
Fjerne søyle mellom garasjeportar
2
Fyllingsdalen, Bergen
0
Har i dag ei søyle mellom to garasjeportar i innebygd garasje. Sjå vedlagte teikningar.
Ønskjer å fjerne denne søyla og montere ein stor port. Eksisterande portar er 2300mm brei.
Spenn utan midtsøyle vil bli 4900mm.
Informasjon som no kjem er har eg fått (frå hukommelsen) til han som bygde huset i 1995. Betongbjelke over garasjeportar er 300mm høg og 200mm tjukk med seks ø12 kamstål i. Etasjeskillet er 200mm tjukk med ø12 kamstål i 150mm masker (eg har brukt stendersøkar og det ser ut som det er 150mm masker). Det er og lagt armeringsmatte over etasjeskillet ifm vannbåren varme. Litt usikker på kva slags matte som vart lagt, men det kan vere enten K257 eller K335. Han seier at mattene har blitt lagt over heile etasjeskillet, men huksar ikkje korleis mattene har blitt lagt (mtp overlapp?). Laget med vannbåren varme er ca 80mm tjukk.
Ang armering i sideveggene så er eg usikker på korleis dette har blitt gjort. Det er plassstøypte veggar og etasjeskille. Eg fekk kjerneborra eit hol i øvre del av veggen på venstre sida av huset og der var det vertfall armering i den delen som blei fjerna. Eg kan sjå antyding til ei sprekk (mindre enn 1mm brei) som ikkje er gjennomgåande i øvre hjørnet (merka 1 på teikninga).
Det er og ei sprekk som er litt over 1mm og gjennomgåande (merka 2 på teikninga).
Kan dette ha noko å bety dersom eg fjernar søyla?
Kan eg fjerne midtsøyla utan tiltak eller må eg sette opp ein H-bjelke bakom betongdragaren (over garasjeportane) før eg kappar vekk søyla?
Ønskjer å fjerne denne søyla og montere ein stor port. Eksisterande portar er 2300mm brei.
Spenn utan midtsøyle vil bli 4900mm.
Informasjon som no kjem er har eg fått (frå hukommelsen) til han som bygde huset i 1995. Betongbjelke over garasjeportar er 300mm høg og 200mm tjukk med seks ø12 kamstål i. Etasjeskillet er 200mm tjukk med ø12 kamstål i 150mm masker (eg har brukt stendersøkar og det ser ut som det er 150mm masker). Det er og lagt armeringsmatte over etasjeskillet ifm vannbåren varme. Litt usikker på kva slags matte som vart lagt, men det kan vere enten K257 eller K335. Han seier at mattene har blitt lagt over heile etasjeskillet, men huksar ikkje korleis mattene har blitt lagt (mtp overlapp?). Laget med vannbåren varme er ca 80mm tjukk.
Ang armering i sideveggene så er eg usikker på korleis dette har blitt gjort. Det er plassstøypte veggar og etasjeskille. Eg fekk kjerneborra eit hol i øvre del av veggen på venstre sida av huset og der var det vertfall armering i den delen som blei fjerna. Eg kan sjå antyding til ei sprekk (mindre enn 1mm brei) som ikkje er gjennomgåande i øvre hjørnet (merka 1 på teikninga).
Det er og ei sprekk som er litt over 1mm og gjennomgåande (merka 2 på teikninga).
Kan dette ha noko å bety dersom eg fjernar søyla?
Kan eg fjerne midtsøyla utan tiltak eller må eg sette opp ein H-bjelke bakom betongdragaren (over garasjeportane) før eg kappar vekk søyla?







Har du etasjeskille i plasstøypt betong?
Årsaken til at jeg beskrev erstatte var at du må jo plukke opp kreftene som går nedover i veggen, gjør du det i tilstrekkelig grad med å legge stålbjelken på innsiden ?
Du tar ned taklast samt vekt av karnappet over denne porten ... Jeg har det tilsvarende hos meg, bjelken er nok litt lengre, men ikke mye.
Søyla er ikke der for moroskyld. Det fantes dobbel port i 1995 også. Jeg har fem meter port i min garasje, uten et hus på toppen, og mener I-bjelken er 30cm høy. Utfordringen med stål er jo også at de forholdsvis fort gir utbøyning, noe som går dårlig sammen med betong. Brann er en annen utfordring, i en garasje i bolig kan det hende det vil bli krav om brannsikring av stålbjelke.