7,894    14    1  

Frittstående bærevegg i leca?

 1,768     Østlandet     0
Går det greit å ha frittstående bærende vegg i leca? Tenkte å bruke 25cm finblokk, men vil det bli "stødig" nok? Veggene vil være opplegg for hulldekke-elementer.
Hva kan man eventuellt gjøre for å gjørde den stødigere?
Husk dette under oppussing: Lagre kvitteringer, bilder og avtaler i Boligmappa. Logg inn her

   #1
 2,397     Bjørkelangen     0
hvor lang skal du ha den????
Signatur
   #2
 22,342     Akershus     0
Ja, men det er avhengig av resten av konstruksjonen. Litt mere info takk
  (trådstarter)
   #3
 1,768     Østlandet     0
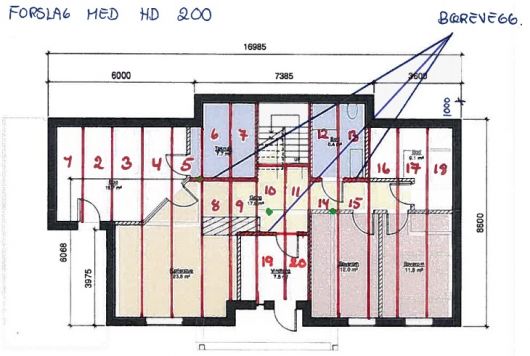
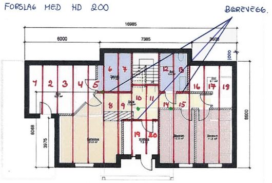
Skal ha 3 vegger på mellom 2.5 og 4 meter. Det er bærevegger for hulldekket, samt at det skal ligge en he200 bjelke mellom to av veggene for å ta punktlast fra taket. Det skal være dør i 2 av leca-veggene.

(Den midterste veggen på vedlegget blir litt lengre, slik at stålbjelken blir liggende omtrent i skjøten mellom element 8/9).

Ytterveggene er forøvrig jackon thermomur, og gulvet er støpt.
Frittstående bærevegg i leca? - Untitled.jpg - gaardern
   #5
 2,397     Bjørkelangen     1
har du satt opp armeringsjern fra gulvet som skal opp i bæreveggene????
Signatur
  (trådstarter)
   #6
 1,768     Østlandet     0

har du satt opp armeringsjern fra gulvet som skal opp i bæreveggene????


Nei, men kan vel borre og feste jern før jeg stabler veggen? Armeringen som skal inn i hulldekket skal borres på i veggen etter at dekket er heis på plass, så det er vel ikke for seint å borre ned noen jern i gulvet heller? Sitter jo som pokker med ankermasse.
   #7
 2,397     Bjørkelangen     0
det går helt bra å gjøre det.ikke noe problem i det.
pass på så du ikke treffer rør eller kabler.
Signatur

   #8
 2,397     Bjørkelangen     0
jeg ville støpt di veggene i betong.av enkle grunn av at du har dør åpninger i den.
blir ikke mye leca over dørene.
Signatur
   #10
 2,397     Bjørkelangen     0
du kan legge armeringsjern i hver fuge da.det hjelper endel.tror det 6mm jern jeg.ikke helt sikker.så en u-blukk på toppen med 3 stk 12mm jern
Signatur