739
5
3
Hjelp: Hvordan skal vi grave?
183
Bergen
0
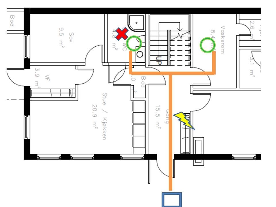
Vi totalrenoverer et BlockWatne-hus fra 1983. I dag kommer vann og avløp inn i under huset og opp i det som skal bli en utleiedel. Vi ønsker naturlig nok ikke å ha stoppekrana der inne.
Det er ikke vann eller sluk andre steder i kjelleren i dag, men vi skal bygge nytt vaskerom i vår del av kjelleren. Dermed legger vi nytt vann og avløp fra kummen på tråkka utenfor, og inn til både utleiedel og vaskerom. Dette er planlagt i samråd med en dyktig rørlegger.
Grunnen under huset er trolig sprengstein. Gulvet er støpt med rottestøp: Betongdekke, plast, tre lag med isopor og så toppstøp.
Samtidig ønsker vi å legge ned trekkerør til fiber i samme grøft, samt plass til at hovedinntaket for strøm kan flyttes noen meter fra dagens posisjon. Flytting av dette skal selvsagt gjøres av nettselskapet BKK.
Men, så problemet. Det er helt håpløst å få entreprenører til å grave i Bergen. Har spurt fem selskap, alle har lovet å ringe tilbake ingen har gjort det etter gjentatte purringer. (Og det skal gjøres betraktelig mer gravejobb ute senere som bør være av interesse). Én kom, og ga en hinsides pris på jobben.
En kamerat har gravemaskin til fritidssysler, men aldri gravd slikt før. Vi tror vi skjønner hvordan dette må gjøres, men jeg spør allikevel dette eminente forumet om en vurdering.
Jeg legger ved originale rørtegninger samt planoversikt over hvor rør (oransje strek) er tekt, samt nye sluk/vann (grønne rundinger). Rødt kryss er stedet dagens inntak ligger. Blå firkant er kummen.
Mine spørsmål:
- Hva gjør vi med de eksisterende rørene (og slukplassene) i betong som ikke skal brukes mer.
- Hvor langt ned må man grave for å legge nye rør?
- Er det uproblematisk å legge rør til vann, avløp, hovedstrøm og fiber ved siden av hverandre i samme grøft?
- Hvor kobler man seg på eksisterende kum?
Alle gode svar mottas med stor takk.


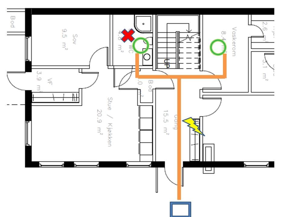
Det er ikke vann eller sluk andre steder i kjelleren i dag, men vi skal bygge nytt vaskerom i vår del av kjelleren. Dermed legger vi nytt vann og avløp fra kummen på tråkka utenfor, og inn til både utleiedel og vaskerom. Dette er planlagt i samråd med en dyktig rørlegger.
Grunnen under huset er trolig sprengstein. Gulvet er støpt med rottestøp: Betongdekke, plast, tre lag med isopor og så toppstøp.
Samtidig ønsker vi å legge ned trekkerør til fiber i samme grøft, samt plass til at hovedinntaket for strøm kan flyttes noen meter fra dagens posisjon. Flytting av dette skal selvsagt gjøres av nettselskapet BKK.
Men, så problemet. Det er helt håpløst å få entreprenører til å grave i Bergen. Har spurt fem selskap, alle har lovet å ringe tilbake ingen har gjort det etter gjentatte purringer. (Og det skal gjøres betraktelig mer gravejobb ute senere som bør være av interesse). Én kom, og ga en hinsides pris på jobben.
En kamerat har gravemaskin til fritidssysler, men aldri gravd slikt før. Vi tror vi skjønner hvordan dette må gjøres, men jeg spør allikevel dette eminente forumet om en vurdering.
Jeg legger ved originale rørtegninger samt planoversikt over hvor rør (oransje strek) er tekt, samt nye sluk/vann (grønne rundinger). Rødt kryss er stedet dagens inntak ligger. Blå firkant er kummen.
Mine spørsmål:
- Hva gjør vi med de eksisterende rørene (og slukplassene) i betong som ikke skal brukes mer.
- Hvor langt ned må man grave for å legge nye rør?
- Er det uproblematisk å legge rør til vann, avløp, hovedstrøm og fiber ved siden av hverandre i samme grøft?
- Hvor kobler man seg på eksisterende kum?
Alle gode svar mottas med stor takk.


Signatur
Ville flyttet litt på dørene: vf-hybel, slå ut i vindfang. Kan parkeres åpen om sommeren. Soverom, vurder om døra bør flyttes nærmere vf. Da få du plass til knagger/hyller bak døra. Bad: hengsles motsatt side. Dør hybel/bod, hengsles motsatt side. (Denne døra bør vurderes utelatt på innsendte tegninger)
Virker ellers som om du ikke tegner en rekke oppstikk jfr avløpstegningene.
Legg fiberrør både for hybel og hovedleilighet, men ev også rør fra bredbåndsruter i hovedleilighet til ruter i hybel. Fiberavslutning/bredbåndsruter bør plasseres på "bortgjemt sted" i kjellerbod, teknisk rom el. blir gjerne mye kabelsøl og strømforsyninger som ikke gjør seg bak tv eller under pc-pult.
Dørene på tegningene stemmer ikke helt. Skal ha alle dørene slik du sier. Er bare arkitekten som ikke har fått med seg tingene vi har sagt, både på andre og tredje korrekturrunde....
Avløptstegningene er de originale fra det huset ble bygget, kun for å vise hvordan det er per i dag.
Lurt å også legge eget rør for bredbåndsrtueren. Takk for tipset
Forakter få, men folk som pynter huset sitt med blinkende juletrelys bør få buksevann.
Mange har fiber og Altiboks. Dvs fiber inn til tv. Noe herk når vegger skal rives og tv flyttes.
Hos dere kan det være aktuelt å dele på bredbåndet. Det er strengt tatt ikke innafor. Derfor, legg rør for begge løsninger.
Legg ellers rør for kablet nett der det er praktisk. Kablet nett er mest driftsikkert og gir ev mulighet for flere aksesspunkt i huset om det blir plunder.
Siden dere har dør mellom dere og utleiedel er det neppe krav om eget strømabonnement. Eget sikringsskap med privat undermåler kan være praktisk. Bod med dobbelt dør var snedig. Ville likevel vurdert dør ved trapp som tung lyddør.
Vi har det, men det er ikke så herk.
Fiber inn på teknisk rom, til en boks der. Derfra er det ethernet til whatever (tv-boks, trådløsrouter etc).
Grave? Flytte masser? Komprimere? Støype? www.budsjettmaskiner.no Eidsvoll, Arendal. Noe du vil leie ut? Ta kontakt, vi har plass til flere.