267    3    0  

Styrkeberegning på vegg til garasje

 1     0
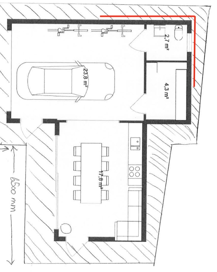
Hei. Skal bygge garasje og må ha litt av veggene i armert betong på grunn av at det må støtte opp jord fra naboens tomt. Det er vurdert at Leca ikke holder for å støtte dette opp. Hvordan kan jeg få beregnet hvor mye armering det trengs ved støp av vegg ? Se vedlagt tegning på garasje og hvor det må støpes vegg. Det som er merket med rødt er området som er vurdert at veggene bør støpes. 
Styrkeberegning på vegg til garasje - Garasje ByggeBolig.jpg - Tomwest
Husk dette under oppussing: Lagre kvitteringer, bilder og avtaler i Boligmappa. Logg inn her

   #1
 16,051     0
Bruk KUB eller liknende system da får du isolasjon også. Passe på armering stikkes ned ovenifra vertikalt også til slutt.

Løs Leca i tilbakefylling hjelper mye. Iso 10-20 varianten. Evt fiberduk mot eksisterende masser ann på hvordan de er.

Flyttes døren til WC litt får du en litt større veggbit som fungerer som en vange på muren. Med vask og WC på den veggen så passer det jo bra og flytte den lengst mot skilleveggen i midten.
   #2
 129     Midt-Norge     0
Hvor høyt må det støpes ? Hvor tykk tenker du veggen skal vere ? Vesentlige faktorer som må til, før man kan si hvor masse armering...


Dersom det er av nytte; på prosjektet jeg holder til nå:
Innervegger t=20cm h=270, med 2 lag armering ø12cc250 rutenett.
Tilbakefyllt vegg t=30cm h=ca 3m, 2 lag armering ø12cc250 rutenett...

Dette er høyblokker, samt tilbakefyllt vegg til garasjeanlegg under bakken.
Signatur
   #3
 39,479     Lillestrøm kommune     0
Det gir så massivt med kondens når en eksponerer en slik solid betong kloss innerst i garasjen som ligger så mye etter omgivelsene i temperatur så en isolert løsning er lurt.