552
1
0
Tilbygg - undergraving av fundament
4
0
Hei
Har et prosjekt med å bygge garasje inntil huset langs hele kortveggen

Slik ser det ut nå

Gulvet i garasjen var tenkt å gå i null mot eksisterende asfalt, og sålen vil være 20cm høy under veggene. Hadde derfor tenkt å grave ut til -25cm.
Etter å ha prøvegravd ble jeg svært overrasket over å finne at sålen på huset bare er et par cm under nivået på asfalten, og ikke mer enn 5,5cm tykk!

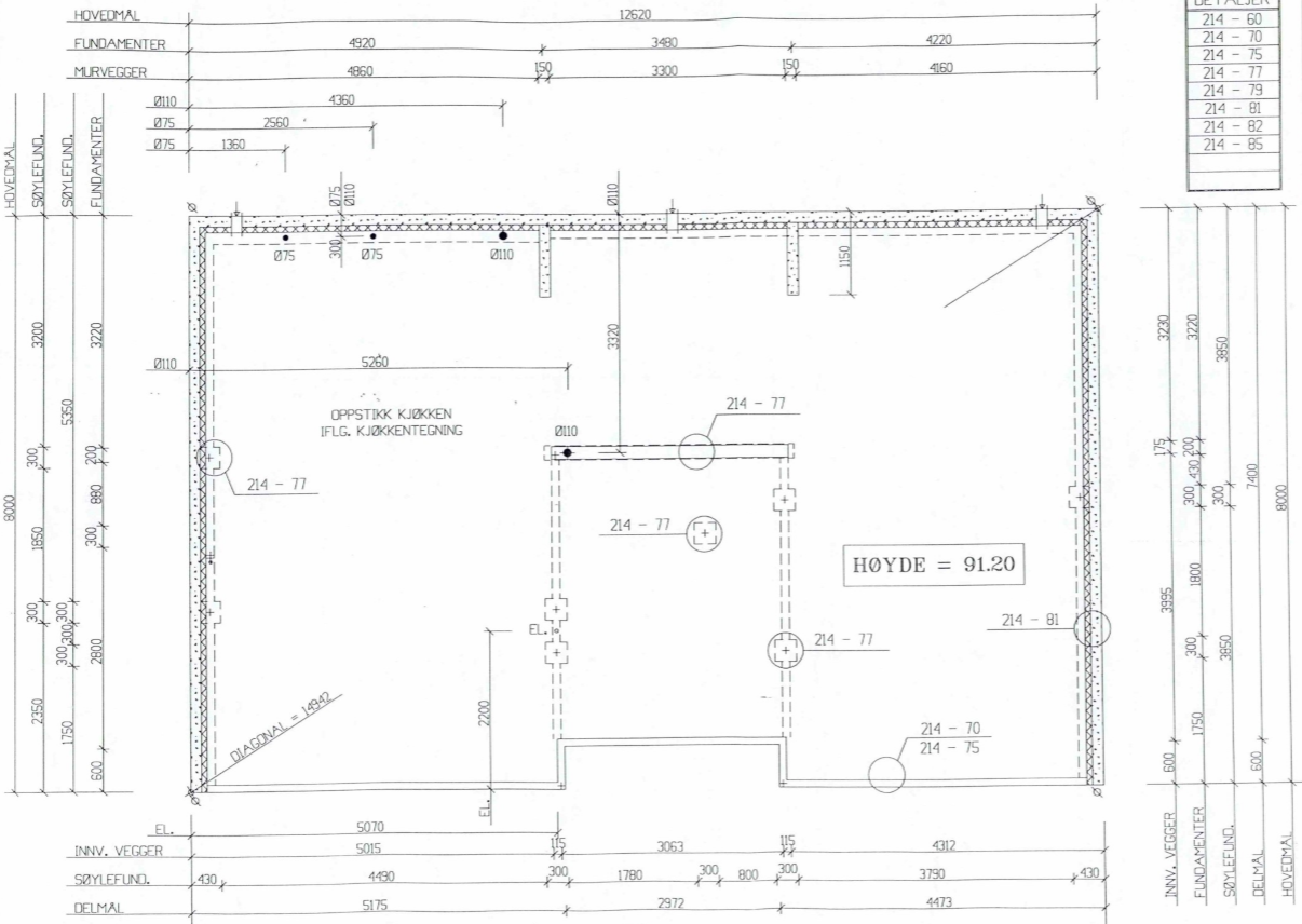
Her er tegningen fra når huset ble bygd


Jeg hadde forventet å kunne grave langs med en ringmur, og at -25 cm ikke ville undergrave noe. Men sålen på huset, og forsåvidt dreneringen også, har bare 2-3 cm overdekning.
Huset er fra 2003 og oppført av Block Watne. Var dette en forskriftmessig måte å bygge fundament og grunnmur på? Sett bort ifra at tegning og realitet ikke stemmer selvsagt..
Hvis noen fagpersoner har løsninger på denne problemstillingen så setter jeg pris på å høre det. Dette er utenfor min fagkompetanse. Slik jeg ser det er veggene satt på ei tynn flis av betong. Når jeg skal ytterligere 22-23 cm lenger ned i hele bredden av huset så vil belastningen av vegg og hus holdes oppe av 5,5cm med betong. Det høres ikke ut som en god ide..
Har et prosjekt med å bygge garasje inntil huset langs hele kortveggen

Slik ser det ut nå

Gulvet i garasjen var tenkt å gå i null mot eksisterende asfalt, og sålen vil være 20cm høy under veggene. Hadde derfor tenkt å grave ut til -25cm.
Etter å ha prøvegravd ble jeg svært overrasket over å finne at sålen på huset bare er et par cm under nivået på asfalten, og ikke mer enn 5,5cm tykk!


Her er tegningen fra når huset ble bygd


Jeg hadde forventet å kunne grave langs med en ringmur, og at -25 cm ikke ville undergrave noe. Men sålen på huset, og forsåvidt dreneringen også, har bare 2-3 cm overdekning.
Huset er fra 2003 og oppført av Block Watne. Var dette en forskriftmessig måte å bygge fundament og grunnmur på? Sett bort ifra at tegning og realitet ikke stemmer selvsagt..
Hvis noen fagpersoner har løsninger på denne problemstillingen så setter jeg pris på å høre det. Dette er utenfor min fagkompetanse. Slik jeg ser det er veggene satt på ei tynn flis av betong. Når jeg skal ytterligere 22-23 cm lenger ned i hele bredden av huset så vil belastningen av vegg og hus holdes oppe av 5,5cm med betong. Det høres ikke ut som en god ide..
Understøping finnes i mange tråder her fra Frodes klassiske kjellertråd til mange andre