9,336
11
1
Legging av tregulv i stue og kjøkken - overgang mellom rom og leggemønster
8
0
Hei
Vi har jobbet oss ferdig med vegger og tak og skal legge gulv i stue og kjøkken. Gulvet er ferdigbehandlet Moelven børstet furu, heltre. Flott gulv!
Det er "dørløs" åpning mellom kjøkken og stue.
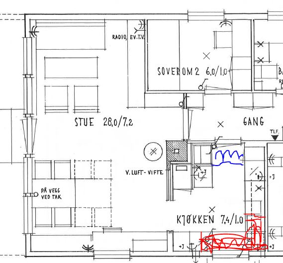
Jeg har lagt ved oversikt over romløsningen (har mer oppdaterte tegninger, men ikke her..).
Det blå området er nå kjøkkenbenk, det røde skal det legges gulv på. Hele stuen skal ha nytt gulv, med en glassplate i tillegg under ovn.
Så - to utfordringer:
1. Madammen vil helst ha én gulvflate for begge rom. Jeg hadde i utgangspunktet tenkt til å bruke en list i døråpningen for å tillate vandring.
2. Vi vil avslutte gulvleggingen mot veggen med verandadør til venstre i tegningen. Til høsten skal vi bytte denne døren og det vil muligens medføre at vi må ta opp et par gulvbord. Skaper vi mye unødvendig bry for oss selv ved å gjøre det på denne måten?
Hvordan ville dere lagt et slikt gulv? Hva ville dere gjort i overgangen mellom kjøkken og stue?
Vi har jobbet oss ferdig med vegger og tak og skal legge gulv i stue og kjøkken. Gulvet er ferdigbehandlet Moelven børstet furu, heltre. Flott gulv!
Det er "dørløs" åpning mellom kjøkken og stue.
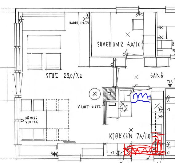
Jeg har lagt ved oversikt over romløsningen (har mer oppdaterte tegninger, men ikke her..).
Det blå området er nå kjøkkenbenk, det røde skal det legges gulv på. Hele stuen skal ha nytt gulv, med en glassplate i tillegg under ovn.
Så - to utfordringer:
1. Madammen vil helst ha én gulvflate for begge rom. Jeg hadde i utgangspunktet tenkt til å bruke en list i døråpningen for å tillate vandring.
2. Vi vil avslutte gulvleggingen mot veggen med verandadør til venstre i tegningen. Til høsten skal vi bytte denne døren og det vil muligens medføre at vi må ta opp et par gulvbord. Skaper vi mye unødvendig bry for oss selv ved å gjøre det på denne måten?
Hvordan ville dere lagt et slikt gulv? Hva ville dere gjort i overgangen mellom kjøkken og stue?

hvilken retning skal plankene ligge ?
Mvh
Kristian
Skriver også i INTERIØRbloggen
Enig med boligplanlegging men forstår det slik at det blir motsatt veg det blir lagt.
Planen var å legge bordene i lengderetning, altså horisontalt på tegningen. Planene er ikke "spikret", for å si det sånn, så alle gode argumenter er svært velkomne.
Når det gjelder verandadøren så vil ikke det være noe problem med mindre ny dør forutsetter behov for mer gulv mot dørstokk. Sirkelsag og pirkearbeid skal gjøre at vi kommer i mål med justeringer der uansett.
Den primære grunnen for ønsket om å legge det horisontalt på tegningen er at mesteparten av trafikken kommer til å være mellom kjøkken-gang og kjøkken-sofaseksjon. Det kan være at vi har "overtenkt" at bordene bør ligge i fartsretningen.
hei
personlig ville jeg helt klart lagt stue og kjøkken i ett dersom det er mulig. Det viker som dette skal være en litt åpen løsning ut mot sitteplass og da synes jeg at det er penest om ting er mest mulig i ett.
Det virker på tegningen at stue og kjøkken er såpass åpent at du uansett vil ha veldig likt inneklima her, så blir vandringen noe problem da ? Tre er jo levende så litt vandring gjør jo ikke noe.
Ang. verandadør så tror jeg ikke det blir noe problem. Dersom den nye døren er dypere enn den gamle så må du evt bare kappe gulvbordene litt men det kan du gjøre der de ligge rom du har utstyr. Er døren grunnere så kan du evt bare tilpasse en tverrplanke mot døren som passer med gulvet som en slags foring langs gulvet og inn i veggen. En slik tverrplanke burde du kanskje uansett tenke litt på for å ha en pen overgang men kommer som sagt veldig an på hvordan døren sitte i veggen idag.
jeg blir glad når jeg ser andre som velger heltre, varig og vakkert
Mvh
Kristian
Eksempelvis - om jeg legger horisontalt på tegningen så får jeg en svært enkel start på toppen, men når jeg kommer til kjøkkenet må jeg enten beregne hvor mange lengder jeg trenger for å ta igjen det bordet som kommer i døråpningen (om dette var forståelig). Heldigvis har jeg 5 mm å gå på for å få det helt rett, men det betyr også at jeg må kappe og prøvelegge den biten som går fra kjøkkenåpningen til det røde feltet.
Heltregulv ble etterhvert det rette valget for oss. Min kjære hater kalde gulv og når vi da ikke ville legge varme under gulvet måtte det bare bli sånn. Gleder meg til å se det ferdige resultatet!
hei
ja om jeg forstår tegningen rett så mener du døra mellom kjøkken og gang ? Vet ikke om jeg forstår helt.
du kan jo evt begynne midt i rommet der ting må matche, og legge ut mot siden om det er mulig praktisk i forhold til not/fjør og vegger ? sann tror jeg det blir gjort hos meg men jeg kommer til å legge gulvet under dobbelt lags gips langs veggene så har rom for slik
Mvh
kristian