1,880
1
0
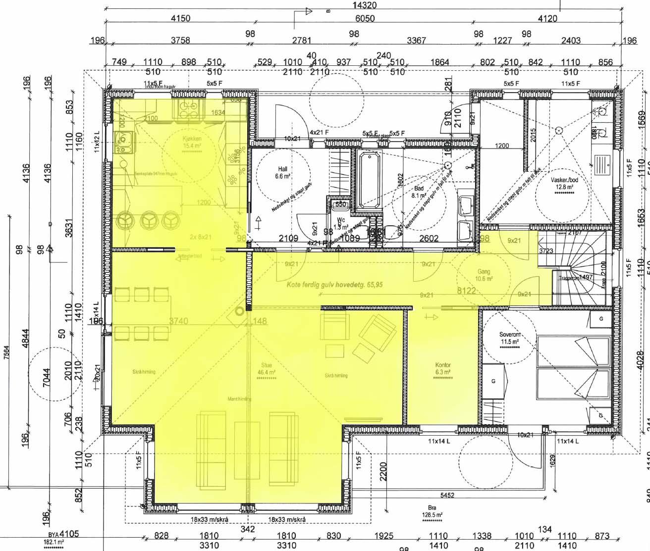
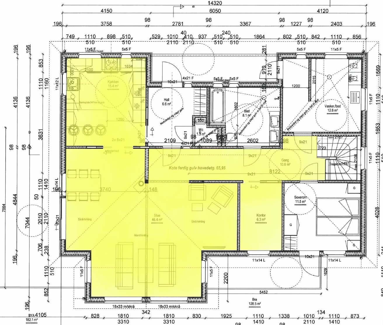
Stort sammenhengende gulvareal... uten skjøter?
98
Norge
0
Husbyggingen går fremover, og jeg har begynt å forberede detaljer;
Håpet mitt var å få mer eller mindre sammenhengende gulv i hele hovedetasjen, men innser at det helt sikkert ikke er realistisk. Vi skal ha laminat gulv, og jeg tenkte kanskje dette ikke levde særlig til at det ble ett problem.
Spørsmål nummer 1;
Er det dødsdømt å legge alt dette sammenhengende med laminat?
Spørsmål nummer 2;
Hvilke alterntiver har man isåfall mht. skjøter?
Jeg ville unngå å ha dørstokker, og sølvfargedes lister har jeg aldri likt.
Noen kreative ideer?
Håpet mitt var å få mer eller mindre sammenhengende gulv i hele hovedetasjen, men innser at det helt sikkert ikke er realistisk. Vi skal ha laminat gulv, og jeg tenkte kanskje dette ikke levde særlig til at det ble ett problem.
Spørsmål nummer 1;
Er det dødsdømt å legge alt dette sammenhengende med laminat?
Spørsmål nummer 2;
Hvilke alterntiver har man isåfall mht. skjøter?
Jeg ville unngå å ha dørstokker, og sølvfargedes lister har jeg aldri likt.
Noen kreative ideer?
cobsen
(trådstarter)
98
Norge
0
Her hadde jeg rett og slett gjort for dårlig resource . Markedet er jo stappfullt av produkter. Hehehe
