833
3
0
tips til "innredning" av terrasse ?
535
Horten
0
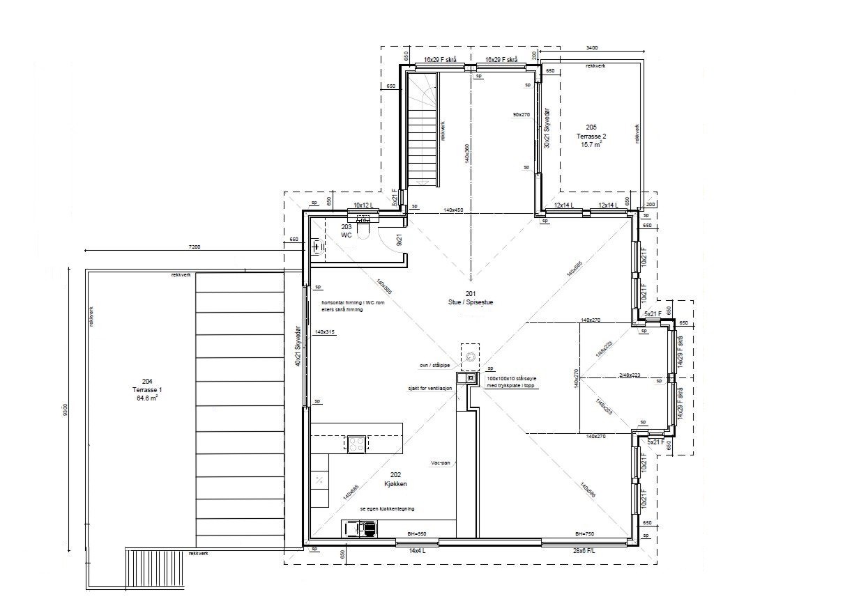
Jeg er igang med å ferdigstille tak terrasse og trenger litt innspill på hvordan innrede denne på best måte.
litt info om terrasse:
størrelse er 7,2x9,3m.
Gulvet vi har lagt er av typen systemgulv fra Modena Restec:
http://modena.no/2015/05/20/modena-systemgulv-2/
jacuzzi er fra Sunbeltspa:
https://sunbeltspa.no/6-8-personer/710-spabad-ute-admire-boblebad-massasjebad.html
"glasstak" er fra Sunbeltspa:
https://sunbeltspa.no/tak-vinterhage/3215-olav-terrassetak-916-x-3-meter.html
Rekkverk er tett med kledning på begge sider hvor vi legger 48x148 på topp med blikk over slik at vi kan ha skjulte LED-striper for stemningbelysning.
ellers er det innfelte spotter og høyttalere i gesimskasse.
Jeg sliter imidlertid med å finne en god måte å innrede denne på.
Jacuzzi er plassert som på tegning og her må den stå på grunn av bæring.
på ytterside av Jacuzzi tenker jeg å bygge levegg som følger tak med vinduer, samme ved grill der vi tenker å bygge utekjøkken.
Dersom noen har noen gode innspill eller vil dele bilder av sin terrasse taes det imot med stor takk!





litt info om terrasse:
størrelse er 7,2x9,3m.
Gulvet vi har lagt er av typen systemgulv fra Modena Restec:
http://modena.no/2015/05/20/modena-systemgulv-2/
jacuzzi er fra Sunbeltspa:
https://sunbeltspa.no/6-8-personer/710-spabad-ute-admire-boblebad-massasjebad.html
"glasstak" er fra Sunbeltspa:
https://sunbeltspa.no/tak-vinterhage/3215-olav-terrassetak-916-x-3-meter.html
Rekkverk er tett med kledning på begge sider hvor vi legger 48x148 på topp med blikk over slik at vi kan ha skjulte LED-striper for stemningbelysning.
ellers er det innfelte spotter og høyttalere i gesimskasse.
Jeg sliter imidlertid med å finne en god måte å innrede denne på.
Jacuzzi er plassert som på tegning og her må den stå på grunn av bæring.
på ytterside av Jacuzzi tenker jeg å bygge levegg som følger tak med vinduer, samme ved grill der vi tenker å bygge utekjøkken.
Dersom noen har noen gode innspill eller vil dele bilder av sin terrasse taes det imot med stor takk!





har kikket på blogger og annet , men erfaringsmessig er det alltid interessant å se hva andre ville gjort
Lurer på nå i ettertid om du ble fornøyd med terrasse taket ditt? Er i tenkeboksen på å bestille det samme...
Mvh Jørn