2,145
2
0
Vanskelig møblering
8
Rogaland
0
Hei,
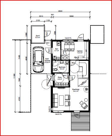
Som nevnt i en tidligere tråd lurer vi veldig på å sette inn en vedovn. Prosjektet har en standard plassering av vedovn, men vi vil gjerne ha både spisebord og et vitrineskap eller skjenk til oppbevaring av glass/service.
Vi sliter veldig med å møblere denne stuen på papiret for å få plass til dette. Er det noen som ser noen gode møbleringsløsninger hvis vi har ovnen? Mellom vegg med terrassedør og vedovn er det ca 2,8 m, og mellom vedovn og trapp er det ca 1,3 m. På tegningen er det tegnet inn en fremtidig løfterampe på siden av trappen som jo ikke blir aktuell hos oss.
Vi tenker å ha hjørnesofa, og sofakroken med tv blir der den er.
Som nevnt i en tidligere tråd lurer vi veldig på å sette inn en vedovn. Prosjektet har en standard plassering av vedovn, men vi vil gjerne ha både spisebord og et vitrineskap eller skjenk til oppbevaring av glass/service.
Vi sliter veldig med å møblere denne stuen på papiret for å få plass til dette. Er det noen som ser noen gode møbleringsløsninger hvis vi har ovnen? Mellom vegg med terrassedør og vedovn er det ca 2,8 m, og mellom vedovn og trapp er det ca 1,3 m. På tegningen er det tegnet inn en fremtidig løfterampe på siden av trappen som jo ikke blir aktuell hos oss.
Vi tenker å ha hjørnesofa, og sofakroken med tv blir der den er.
nik
633
0
Hva med å plassere vedovn ved siden av dør mellom entrè og stue?
Lurveleven
672
Bergen
0
Hmm, kanskje flytte terassedøren helt til høyre og så plassere ovnen mellom sofakroken og denne døren?
