6,100
14
0
Innspill på romløsning (bad)
71
0
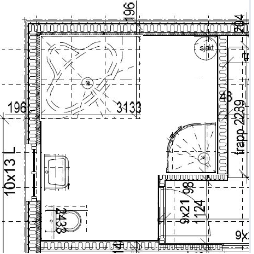
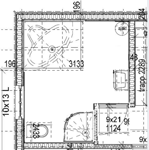
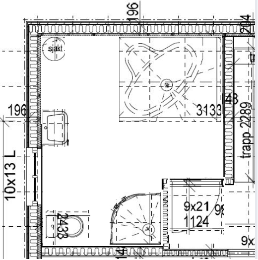
Lurte på om noen av dere har innspill til selve romløsningen på badet vårt? Syns det var vanskelig å få til en optimal løsning, men foreløpig mest fornøyd med innredningen som tegningen viser.
Litt bakgrunns informasjon:
- Veggen til høyre (den lengste) kan ikke flyttes pga trapp
- Den heltrukket linja viser hvor takhøyden blir 190 (knevegg på 120, begynner der som badekaret er tegnet inn)
Litt bakgrunns informasjon:
- Veggen til høyre (den lengste) kan ikke flyttes pga trapp
- Den heltrukket linja viser hvor takhøyden blir 190 (knevegg på 120, begynner der som badekaret er tegnet inn)

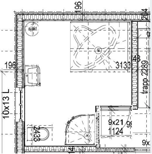
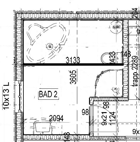
Har gjort et lite forsøk, se bilde. Jeg vet ikke om dette er realistisk med tanke på plass under vinduet og om det er nok plass til dassen der jeg har plassert. Dessuten er det jo ikke sikkert du ønsker å gå rett på dassen når du kommer inn på badet.
Får håpe noen andre også følger opp med innspill.
Med forslaget til Cheffen har du jo også den fordelen at du har vaskeservanten i umiddelbar nærhet til toalettet.
Derfra går det bare nedover
Det er helt sant, at man risikerer å skalle hodet om ein er høy. Heldigvis er både jeg og mannen lave, og vi har skjekket ut at 190 skal funke for oss. Kan nok ikke flytte den lavere, men det trenger ikke å være full takhøyde altså
Har hørt med mannen og han sier at det ikke er plass til vasken ved vinduet. Men likte godt at toalettet og vasken var i nærheten av hverandre. Det får vi ikke til med den nåværende løsningen :-\
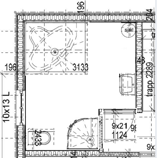
Vi har muligheten til å trekke veggen med døra i nærmere trappa. Det må bli et lite hjørne uansett pga døra til soveromet. Men får ikke til en bedre løsning, som jeg ser... Kan og flytte døra til der som dusjen står nå. Sjakta kan skifte hjørne med hjørnebadekaret også altså
I så tilfelle kan den stå mot veggen der dusjen er i dag.
Da får du dusjen der døra er i dag og slipper å gå rett på doen når du går inn på badet.
Full høyde på dusj og do.
Da må man nødvendigvis gå rett på servanten når man kommer inn, men dette er jo mer innbydende enn å traske rett inn til dassen
Er kanskje bedre å bytte rundt på sjakt og badekar, samt setter servanten til høyre for vinduet. Da får man også litt mer plass ved inngangen.
Bra forslag, men det er jo ikke jeg som avgjør:-)
PS. På den måten kan man også intergrere sjakten i baderomsinnredningen.
Joda, det vi som bestemmer dette