144
1
0
Vanskelig trappeløsning
147
0
Hei.
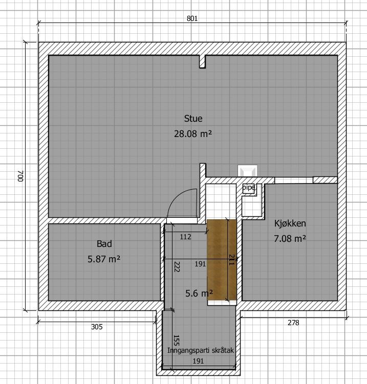
Vi har et hus fra 1929, tømmerhus.
Det meste er pusset opp, utvendig og innvendig.
Men vi har enda ikkje klart å finne noke løsning på trapp til overetasjen, den som er der nå er alt for bratt.
Største problemet her er plass, og høgde til overetasjen.
Legger ved en tegning over hus med mål, med eit håp om at noken kanskje har en genial ide eller løsning her.

Vi har et hus fra 1929, tømmerhus.
Det meste er pusset opp, utvendig og innvendig.
Men vi har enda ikkje klart å finne noke løsning på trapp til overetasjen, den som er der nå er alt for bratt.
Største problemet her er plass, og høgde til overetasjen.
Legger ved en tegning over hus med mål, med eit håp om at noken kanskje har en genial ide eller løsning her.

cm
Fort fra toppen av hodet - det er tre muligheter:
Den beskrevet over.
Om dette er mulig: Gjøre det samme, men i andre enden
Kjøre et trinn eller to ut i passasjen fra inngangspartiet...
Men jeg antar dere har tenkt på disse tre mulighetene alt...
.Thag