1,265
11
0
Beregne størrelse Limtredrager ev. Stål bjelke
87
Bergen
0
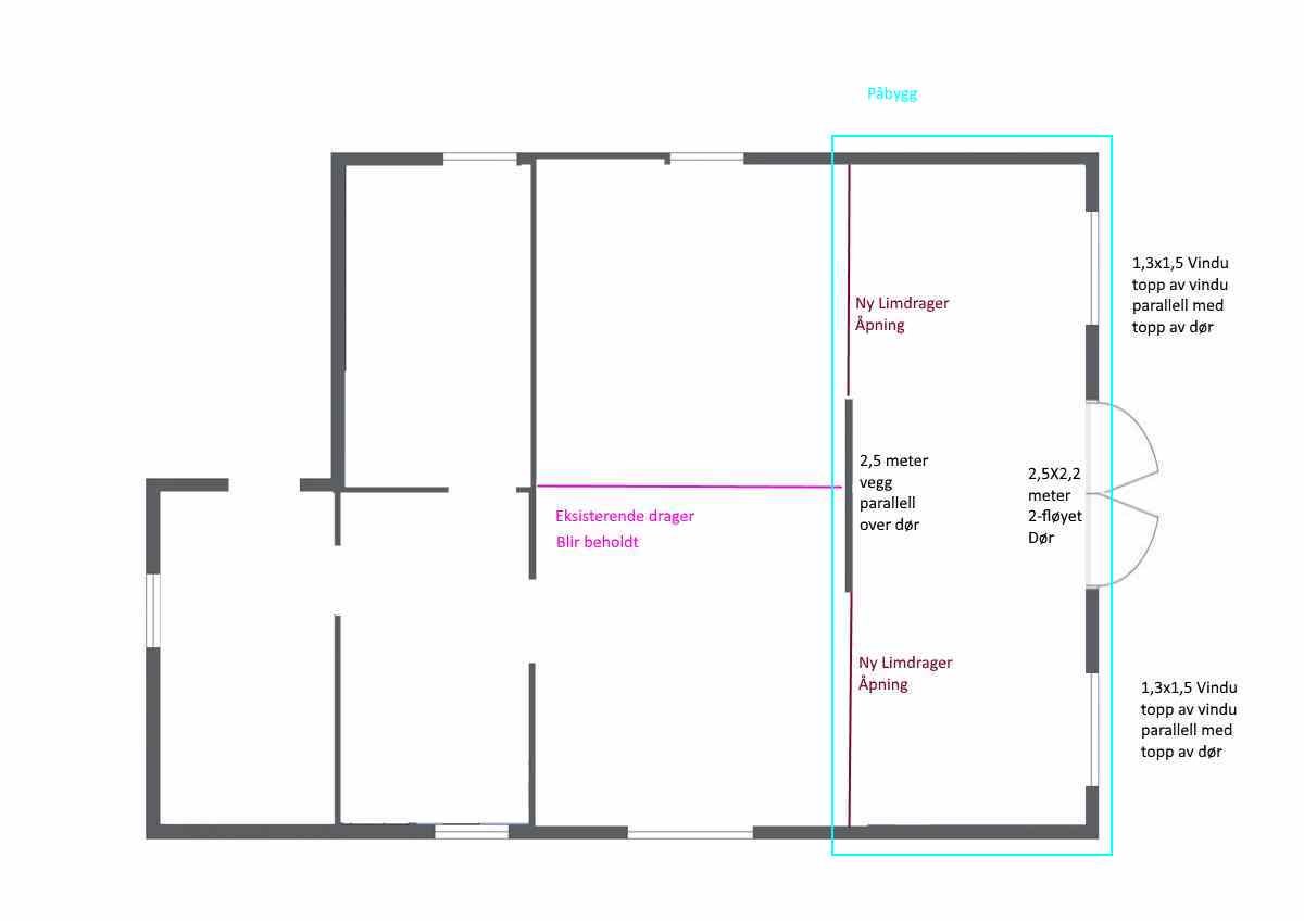
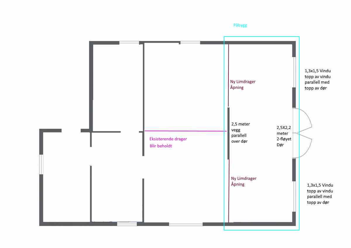
Ønsker få større stue og i den forbindelse sette inn to limtredragere eventuell stålbjelke for å få litt mere høyde under tak. Som dere ser på bildet så er det to partier jeg ønsker dette på , med et mellomstykke på 2.5. Har beregnet at spennet på dragerne vil være på minimalt 2700 men optimalt 3 meter. Bredden på huset er innvendig fra vegg til vegg er 8.75 meter bredt.
Fra "gammelt av" var dette yttervegg, men senere tid 1983 kommet lite tilbygg utenfor som dere kan se av tegningen. Det er ingen etasje over det nye tilbygget og således heller ikke på den ytre delen av huset der det var tidligere yttervegg, så tenker blir normal beregning i forhold til snøvekt (Østlandet / Akershus)
Har hatt 2 på befaring, og begge to oppga to vidt forskjellige mål på både limtredrager og stålbjelke så håper noen kan hjelpe meg her og at jeg får litt mere "sammenhengende svar". Når jeg har prøvd å få hvite litt så sier de bare "stol på meg" og ja... har ikke hatt god erfaring med håndverkere derfor denne posten.
Fra "gammelt av" var dette yttervegg, men senere tid 1983 kommet lite tilbygg utenfor som dere kan se av tegningen. Det er ingen etasje over det nye tilbygget og således heller ikke på den ytre delen av huset der det var tidligere yttervegg, så tenker blir normal beregning i forhold til snøvekt (Østlandet / Akershus)
Har hatt 2 på befaring, og begge to oppga to vidt forskjellige mål på både limtredrager og stålbjelke så håper noen kan hjelpe meg her og at jeg får litt mere "sammenhengende svar". Når jeg har prøvd å få hvite litt så sier de bare "stol på meg" og ja... har ikke hatt god erfaring med håndverkere derfor denne posten.

den virker som at dette er en drager for at de tidligere har utvidet stuen.
For å si det slik så prater begge to som har vært her om limtre men ene snakker om limtredimensjoner (som jeg finner i tableller) og andre snakker om limtre og dimensjonen 48x148 men dette finner jeg bare i Konstruksjons virke. Kan denne da brukes ?! Spennet er 2.8, og csenteravstand kan jeg få da på 3 meter så vil jo dette være tilstrekkelig, eller finnes det limtre i denne dimensjonen? Tanker?
Kanskje du kan tegne en skisse selv? Slik at det blir lettere å forstå hva bjelkene skal bære.