4,506
4
0
dimensjonering av HUP
27
Asker
0
Hei
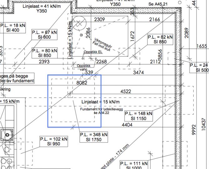
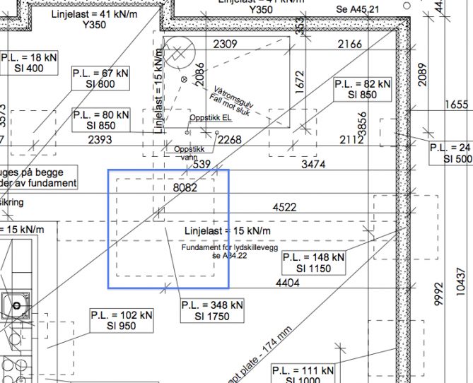
Skal til å bygge kjeller i Jackon Thermomur 350. Da jeg har et punkt med en punktlast på 348kN anbefaler både JAckon og arkitekt å forsterke Jackon muren. HAr da fått anbefalt å benytte meg av en HUP 100X100 mm av noen på forumet. (regner med at jeg ble anbefalt 100X100 for å få plass til den inne i Jackon blokken).
Er det noen som kan hjelpe meg med å dimensjonere denne? punktlast vil være 348kN
Vedlagt tegning
Skal til å bygge kjeller i Jackon Thermomur 350. Da jeg har et punkt med en punktlast på 348kN anbefaler både JAckon og arkitekt å forsterke Jackon muren. HAr da fått anbefalt å benytte meg av en HUP 100X100 mm av noen på forumet. (regner med at jeg ble anbefalt 100X100 for å få plass til den inne i Jackon blokken).
Er det noen som kan hjelpe meg med å dimensjonere denne? punktlast vil være 348kN
Vedlagt tegning

Men har jeg forstått det riktig at jeg kan sette den inni Jackon muren? må jeg evt. gjøre noe med endene?.