2,208
21
0
Er dette selvbærende tak?
295
0
Hei.
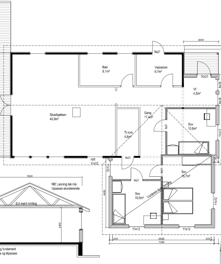
Kjøpte boligen min i 2007. I taksten står det at taket er selvbærende. Eier som bodde her før sa også at alle veggen oppe var lettvegger.
Når vi kjøpte boligen var hele stua og kjøkkenet åpnet opp, så ingen vegger her.
I tillegg var det åpnet litt opp i gangen.
Holder nå på å bygge på et tilbygg og har planer om å åpne opp mere vegger, men tenkte å sjekke her om det stemmer at dette er selvbærende tak.
Takstolene ser ut til å være håndlaget. Se bilder.
Det er støpt dekke mellom kjeller og 1 etg. I kjelleren er det en murvegg som går på langs gjennom hele huset.
Takstolene er 7,2 meter lange.
Er det mulig å bekrefte at dette er selvbærende? Ble litt dårlige bilder ettersom det er ganske mørkt oppå der.
M
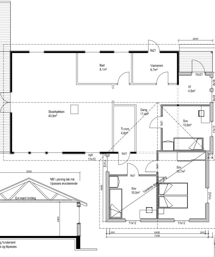
Kjøpte boligen min i 2007. I taksten står det at taket er selvbærende. Eier som bodde her før sa også at alle veggen oppe var lettvegger.
Når vi kjøpte boligen var hele stua og kjøkkenet åpnet opp, så ingen vegger her.
I tillegg var det åpnet litt opp i gangen.
Holder nå på å bygge på et tilbygg og har planer om å åpne opp mere vegger, men tenkte å sjekke her om det stemmer at dette er selvbærende tak.
Takstolene ser ut til å være håndlaget. Se bilder.
Det er støpt dekke mellom kjeller og 1 etg. I kjelleren er det en murvegg som går på langs gjennom hele huset.
Takstolene er 7,2 meter lange.
Er det mulig å bekrefte at dette er selvbærende? Ble litt dårlige bilder ettersom det er ganske mørkt oppå der.
M

.Thag
Som dere ser har det aldri vært noe bærende vegger i stuen.
Det ene soverommet var også fjernet når vi flytta inn.
Er også en tegning av hvordan takstolene skal være.
M
.Thag
Men er veggen som går fra vindfanget, gjennom gangen, forbi badet til kjøkkenet samt veggen på andre siden men da uten soverommet som er tatt med inn i stua nok?
Veggen som er fjernet før jeg flytta inn men som var der originalt er det ene soverommet inntil stuen.
Eller burde jeg gjøre noe over stua?
Stua og kjøkkenet er nå et stort rom
.Thag
Veggen på den ene siden består som før.
Det 3. gamle soverommet oppe er fjernet fra orginalen.
Har stått slik siden før vi kjøpte huset i 2007.
Men stua har aldri hatt bærevegg mot verandadøren og vært slik siden byggeåret.
Men ja, må vurdere å sakse takstolene...