17,318
14
2
Hvor mye vekt tåler garasjeloftet mitt?
37
Steinkjer
0
Noen med god peil på takstoler som kan fortelle meg utifra tegningen hvor mye vekt gulvet på loftet vil tåle?
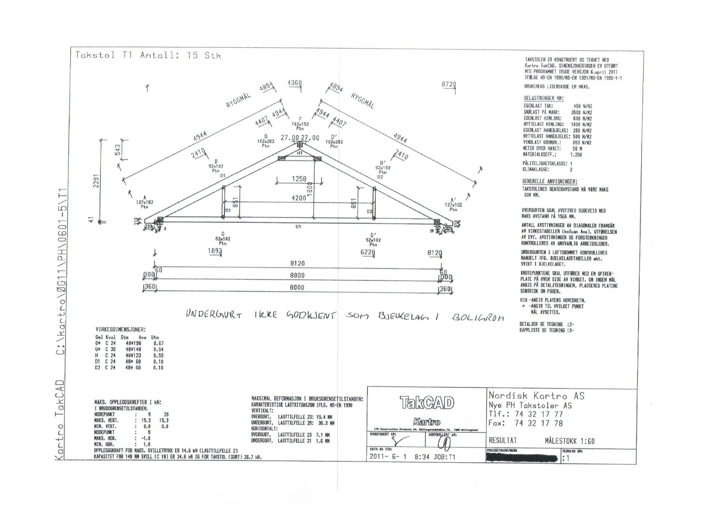
22mm gulvplater av spon og takstolene ligger i avstand cc60cm. Blekktak om det har noe å si.
Hanebjelkene er fjernet på alle takstolene bortsett fra de på endene. Dette ble gjort av de som satte opp garasjen. Hadde ikke noe å si sa de.
Har loft på 2/3 av garasjen. Den siste delen har full takhøyde med limtredrager for å holde taket oppe. Denne drageren hviler på en stående bjelke på ene siden, og den andre siden oppå hanebjelken på siste takstolen (Er 3 takstoler som ligger sammen der. Altså 15cm tykkelse)
Hvor mye belastning tåler denne konstruksjonen?
Har festet en bjelke med løpekatt i limtredrageren for å løfte ting&tang opp til loftet.
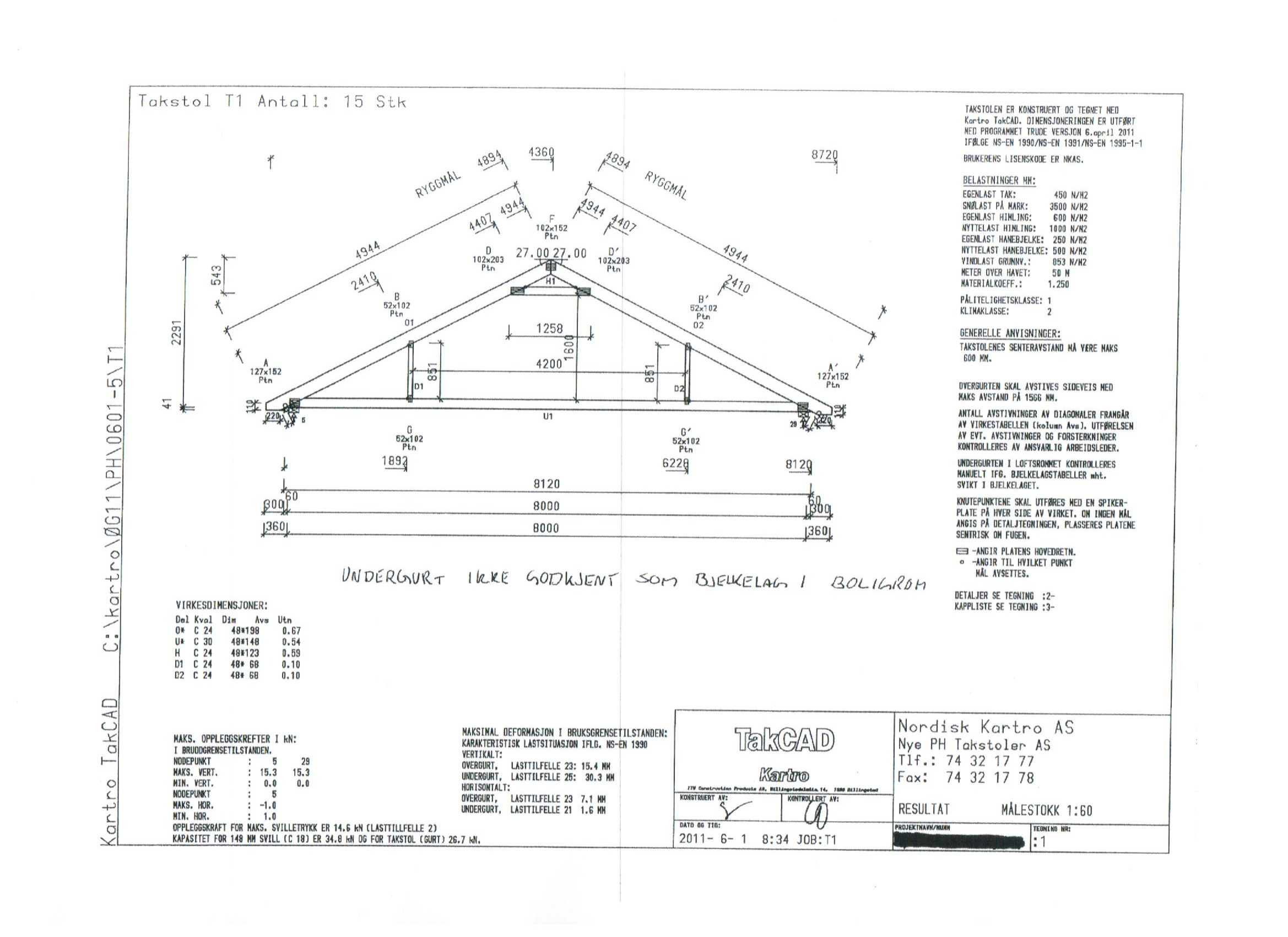
22mm gulvplater av spon og takstolene ligger i avstand cc60cm. Blekktak om det har noe å si.
Hanebjelkene er fjernet på alle takstolene bortsett fra de på endene. Dette ble gjort av de som satte opp garasjen. Hadde ikke noe å si sa de.
Har loft på 2/3 av garasjen. Den siste delen har full takhøyde med limtredrager for å holde taket oppe. Denne drageren hviler på en stående bjelke på ene siden, og den andre siden oppå hanebjelken på siste takstolen (Er 3 takstoler som ligger sammen der. Altså 15cm tykkelse)
Hvor mye belastning tåler denne konstruksjonen?
Har festet en bjelke med løpekatt i limtredrageren for å løfte ting&tang opp til loftet.


Ut i fra hva jeg kan lese på takstol-tegningen så er undergurten dimensjonert for en egenlast på 0,6kN\m2 og nyttelast på 1kN\m2.
Forøvrig så står alle lastene som takstolene er dimensjonert for på tegningen, så jeg ville forholdt meg til det.
Til sammenligning så bruker jeg 0,8kN\m2 i egenlast og 2kN\m2 nyttelast når jeg dimensjonerer et bjelkelag i et oppholdsrom.
Jeg dimensjonerer ikke takstoler selv, så om lastreaksjonene blir endret når du har tatt bort hanebjelken kan jeg ikke uttale meg om, jeg ville nå tro at de var der for en grunn... Jeg antar at firmaet som satte opp garasjen avklarte dette med ingeniøren som dimensjonerte de.
Forstår tankegangen ;)
Jeg har sett at et par av de som tegner takstoler her på huset bruker samme metode selv hvis det er hensiktsmessig. I tilfeller som dette er det så kort spenn på hanebjelken at den som regel vil være sterk nok. Men det forutsetter at spikerplatene som holder sammen sulamitten er dimensjonert for den vertikale lasten ::)
Men jeg ville ikke lagt for mye last ut mot "åpning" hvor hanebjelken er lagt inn i topp, da det kommer en del last her allerede.
Vår eksterne byggeblogg
Hvis en som kjører kranbil har en fiberstropp som det står MAX load 2ton på, med en sikkerhetsfaktor på 5:1. Kan han da løfte 10 tonn?
I mitt tilfelle så prosjekterte ingeniøren med en hanabjelke i den delen der jeg har "full" takhøyde. Under hanabjelkene er det en h-bjelke i stål på 14x14. Og den måtte støttes opp med søyle helt ned til gulvet . I veggen så er det 3stk 2x6 som står på bunnsvilla. H-bjelken ligger ann på 10cm på den søyla av 2x6.
Jeg innbiller meg at avstand fra toppsvilla til mønet hos deg blir i lengste laget. Men mulig at det med platetak og snølast ikke er behov for mer støtte der? Og så syns jeg at det kan virke spinkelt at de spikerplatene skal bære så mye vekt vertikalt.
På bildet ser du de bakre hanabjelkene som jeg i ettertid har satt den h-bjelken på 14x14 oppunder. Og til høyre i bildet så skimtes så vidt en bjelke til kneveggen. Så de takstolene som er i den delen jeg sto da jeg tok bildet er like som dine. Og under de undergurtene jeg står på så er det en h-bjelke på 21x21. Dermed skal jeg kunne bruke 2.etg fullt ut. Alt sammaen, unntatt hanabjelker og støtter er 2x8. Men så ser du at undergurten min er delt. Så jeg må hvert fall ha den bjelken på 21x21.
Mulig at min løsning er overkill.. :)
Tungvint å bygge hus når det står et der fra før..
Imildertid er det ikke hanebjelkene som tar lasten vertikalt, det er overgurtene.
Hanebjelkene tar bare opp trykk og er som dine kun festet med små spikerplater.
Limtredrageren er festet til overgurtene med galvanisert stålbånd som er tilpasset dragerens høyde og bredde. Det er disse stålbåndene som i sin helhet holder drageren.
De doble takstolene i hver ende er for øvrig spikret sammen.
Den store greia hos deg er at hele limtredrageren sår og faller med styrken til 3 hanebjelker som er merket med nyttelast 500 N/m2. Med 60 cm bredde og 1 m lengde og 3 takstoler, blir det nyttelast 2500 N belastningspunktet. For meg virker det veldig spinkelt.
Fest drageren i overgurten med dertil egnede beslag er mitt råd. Det er ikke noe ekspertråd, men det kan godt tenkes det er veldig fornuftig likevel.
Har allerede satt opp en 2x3" på hver side av hanebjelken.
Men nå vurderer jeg å bygge om litt. Altså erstatte hanebjelken(e) med en stålkonstruksjon på 15cm som limtredrageren kan ligge i.
Tenkte så å henge opp løpekatt-bjelken på siden av drageren. (Får bedre klaring mellom løpekatt og gulvet på loftet da)
Men jeg stusser litt på at snekkerene sa at det ikke spilte noen rolle at hanabjelkene ble fjernet. Takstolprosusentene har jo beregnet lasten de kan bli utsatt for og da er de vel tatt med av en grunn. Vil jo tru det snør i Steinkjer også :)
Når du ser på avstanden din fra toppsvilla på veggen og til mønet så er det nesten 5m med taksperre. Vil ikke det kunne svikte over tid trur du?
Tungvint å bygge hus når det står et der fra før..