246
8
0
Kle innvendig vegg på sokkeletasje som står over bakkeplan.
200
0
Hei,
Vi har en murvegg som består av leca blokk pluss et lag med puss.

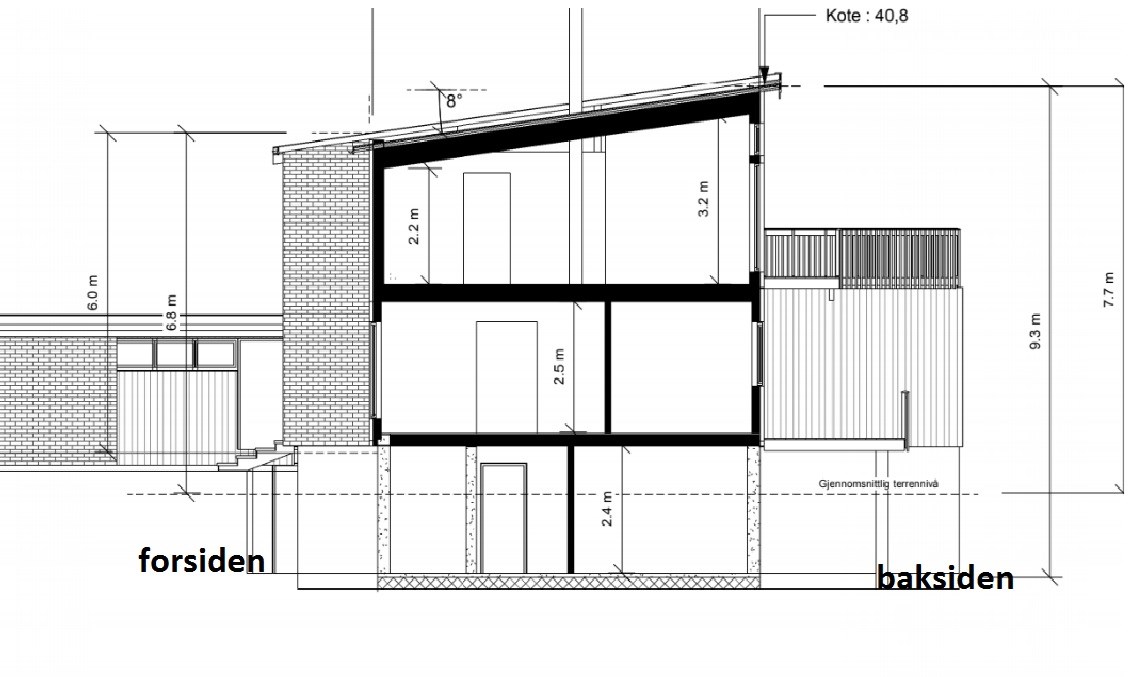
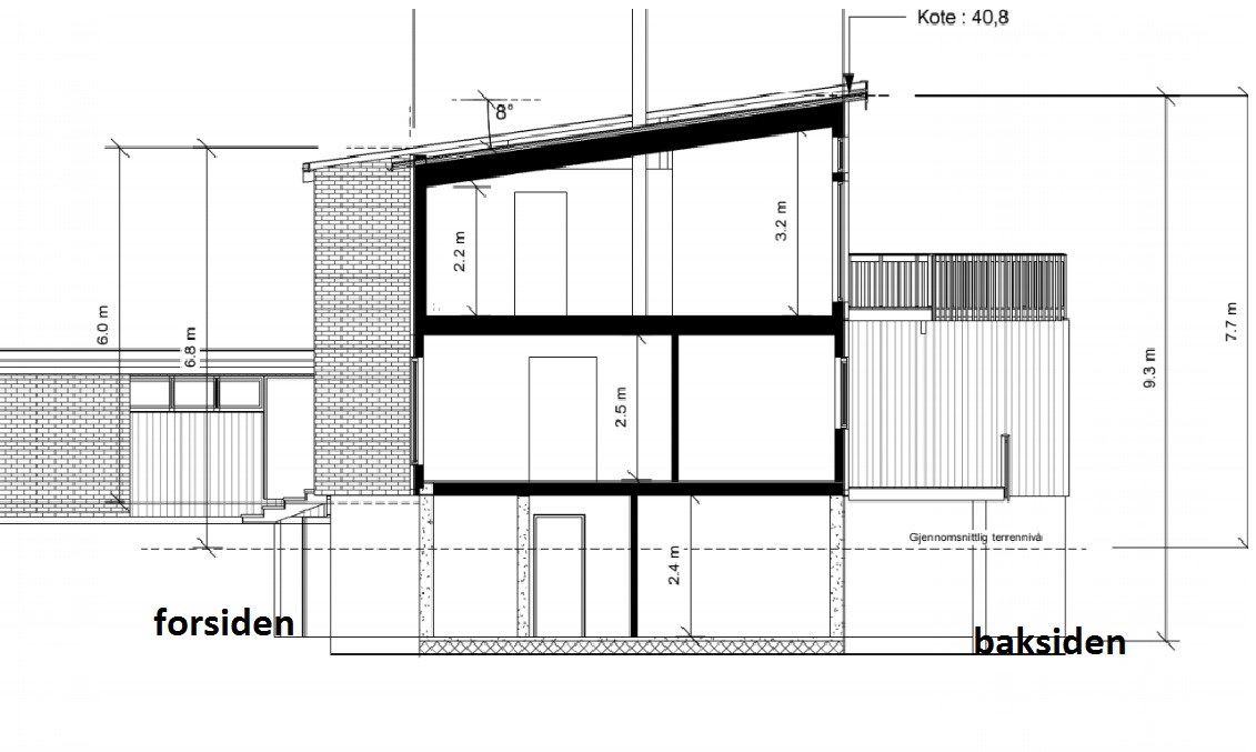
Der det står "ikke utgravd"er krypkjeller som er 2,4m høy og skal være godt ventilert. Huset ligger på en skrå tomt hvor sokkel på forsiden er under bakken mens sokkel på baksiden er over bakken.

Murveggen som skal kles inn står dermed ikke under bakke og det er 2,4m i soverommet hele veien. Gulvet på soverommet er faktisk epoxy.
Vi tenker å kle murveggen med mdf plate. Hva er det enklest å gjøre for å unngå kondens/fuktighet osv? Takk for svar.
Vi har en murvegg som består av leca blokk pluss et lag med puss.

Der det står "ikke utgravd"er krypkjeller som er 2,4m høy og skal være godt ventilert. Huset ligger på en skrå tomt hvor sokkel på forsiden er under bakken mens sokkel på baksiden er over bakken.

Murveggen som skal kles inn står dermed ikke under bakke og det er 2,4m i soverommet hele veien. Gulvet på soverommet er faktisk epoxy.
Vi tenker å kle murveggen med mdf plate. Hva er det enklest å gjøre for å unngå kondens/fuktighet osv? Takk for svar.
Dersom veggene dere vil kle ikke har noe løsmasser liggende inntil seg ville jeg bare lektet ut med 48*48, isolert og platet.
.Thag
Det ser sånn ut i krypkjeller. Med "ikke utgravd" mener de sikkert at det er masse stein som de ikke har gjort noe med. Der er det varmere enn ute i vinter og kaldere enn ute i sommeren.
Hva mener du med "Dersom veggene dere vil kle ikke har noe løsmasser liggende innti....". Muren består av lecablokk og utenpå har de lagt på et lag med puss.
Er litt bekymret ift å legge Glava mellom. Vil ikke Glava trekke seg fuktighet fra murveggen? Jeg lekter ut 48x48 og mdf rett på. Vil ikke det bli mest luftig da?
Hva mener du? sluse ved bad?
Irrelevant med mer informativt foto.
Her har du muligheten til å jobbe med bor og kiler
Han mener at hvis du har tilgang til veggen fra krypkjellersiden og kan isolere hele høyden derfra så er det en fordel å legge f.eks 10cm XPs på utsiden av den veggen du vil kle inn. Da er det helt uproblematisk å legge 50mm Glava på innsiden å kle med MDF.
MVH
Sakke