445
3
0
Minimum dybde på gulv til hems.
14
0
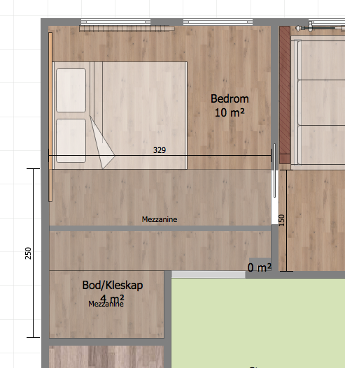
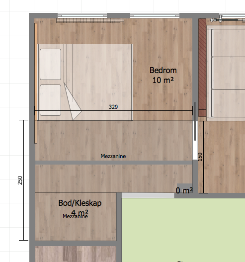
Jeg vil bygge hems der gulvet til hemsen ikke bygger for mye. Jeg har sett at ofte så bygger de 15 cm totalt. Er det mulig å få de ned i 10 cm eller mindre f.eks ved hjelp av stålbjelker?
Er det noen som har tips til om hvordan dette kan gjøres? evt. hvem kan man spørre om hjelp til slikt?
Er det noen som har tips til om hvordan dette kan gjøres? evt. hvem kan man spørre om hjelp til slikt?
HSt
39,534
Lillestrøm kommune
0
Hvor stor skal den være ? Har brukt IPE80 (tror de heter det, en grov C-profil) i tak på en garasje. Den er 8cm høy i profilen. Med litt platelag så nærmer du deg 10cm
IQsperre
(trådstarter)
14
0
Her er målene i tegningen under.
HSt
39,534
Lillestrøm kommune
0
Jeg tror det er ca 240cm lenge på stålpinnene mine, det er ikke antydning av svikt i disse så dine mål bør være mulig å få til. Du kan kanskje ha en wire eller søyle opp til taket for å hjelpe til med bæringen på opleggsbjelken ytterst ?