290
1
0
Plasting mellom mur og bjelkelag?
147
0
Heisann
Jeg har lest noen tråder rundt plasting i forhold til bjelkelag, men finner ingenting om plasting i forhold til mur.
I instruksjonene jeg har fått fra min husleverandør er det illustrert plast under bjelkelaget når begge etasjer er i tre, slik:

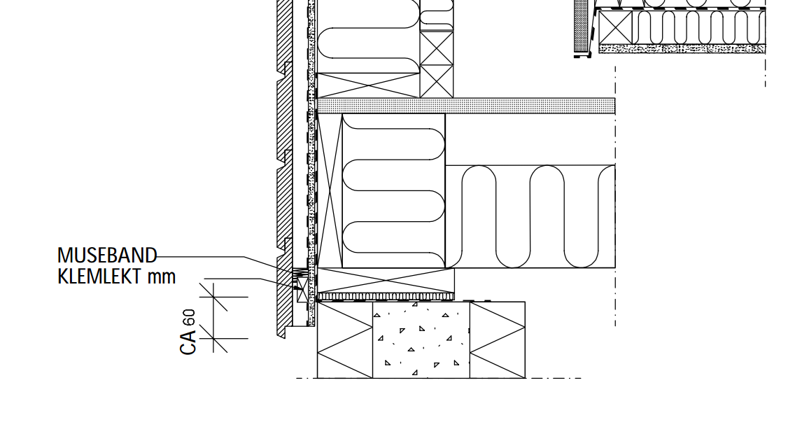
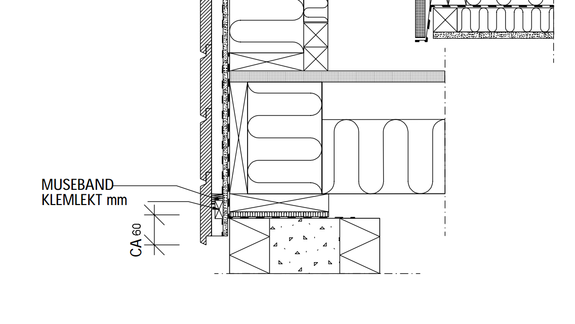
Mens det ved mur ikke er tegnet inn noen plast:

Problemet mitt er at jeg har et skråtomthus med hovedsakelig thermomur, men trevegg i deler av fronten:

Spørsmålet da er som følger: Hvordan kan jeg håndtere dette?
Bør jeg føre plasten delvis nedover thermomuren? Eller helt ned til gulvet? Eller droppe plast i bjelkelaget helt, selv om det da ikke blir like tett? På det lille taket til venstre i bildet er det for sikkerhets skyld også taksperrer som ligger ut over muren, i stedet for bjelkelag.
Tips, råd og lure tanker tas imot med stor takk!
Jeg har lest noen tråder rundt plasting i forhold til bjelkelag, men finner ingenting om plasting i forhold til mur.
I instruksjonene jeg har fått fra min husleverandør er det illustrert plast under bjelkelaget når begge etasjer er i tre, slik:

Mens det ved mur ikke er tegnet inn noen plast:

Problemet mitt er at jeg har et skråtomthus med hovedsakelig thermomur, men trevegg i deler av fronten:

Spørsmålet da er som følger: Hvordan kan jeg håndtere dette?
Bør jeg føre plasten delvis nedover thermomuren? Eller helt ned til gulvet? Eller droppe plast i bjelkelaget helt, selv om det da ikke blir like tett? På det lille taket til venstre i bildet er det for sikkerhets skyld også taksperrer som ligger ut over muren, i stedet for bjelkelag.
Tips, råd og lure tanker tas imot med stor takk!
HSt
39,535
Lillestrøm kommune
0
Du skal ikke ha diffusjonsperre på innsiden av thermomur. Hvis du forer ut (min 5cm) og da kreves mineralull isolasjon mellom stendere så kan du ha. Du kan vel klemme/lime/tape diffusjonssperren i overgangen ned på veggen.