3,637
2
0
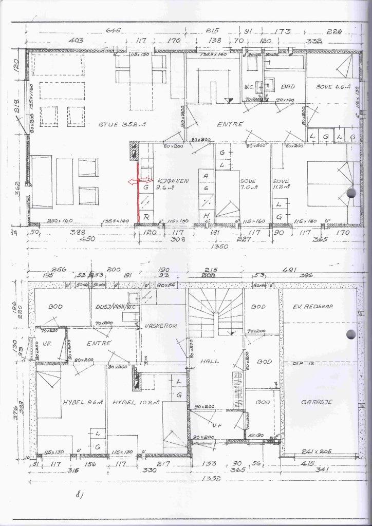
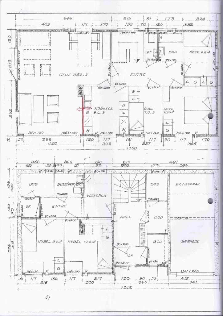
Skjevhet i gulv. Finne bærevegger ved hjelp av hustegninger
173
0
Har ett hus ifra 1972
Vi kjøpte huset for snart 2 år siden. Selger tegnet eierskifteforsikring.
Nå opplever vi at gulvet i 1.etg siger, og da spesielt mot pipen.
Som dere ser ved bildet som jeg har lagt ved, så merker man skjevheten ca 1 meter til hver side fra veggen.
På stuen merker man dette med en gang man går inn i området, man føler man går ned og gulvet knirker.
Man legger også merke til, helt inne ved pipen at laminaten bikker i lengderetning
I taksten står det at det ikke ble avdekket skjevheter utover det som er normalt i boliger av denne årgang.
Så til spørsmålene:
1: Hvordan ser man på tegningene om hva som er bærevegg?
2: Hva er normal sig i gulvet i ett 40 år gammelt hus?
3: Er dette en sak man bør prøve og kanskje har håp om å få igjennom på en eierskifteforsikring? Dette kan jo være en alvorlig sak, da vi opplever at gulvet har seget mere på den lille tiden vi har bodd her. Og svært vanskelig å oppdage alvorligheten ved visning.
4: Burde vi være bekymret?
Vi kjøpte huset for snart 2 år siden. Selger tegnet eierskifteforsikring.
Nå opplever vi at gulvet i 1.etg siger, og da spesielt mot pipen.
Som dere ser ved bildet som jeg har lagt ved, så merker man skjevheten ca 1 meter til hver side fra veggen.
På stuen merker man dette med en gang man går inn i området, man føler man går ned og gulvet knirker.
Man legger også merke til, helt inne ved pipen at laminaten bikker i lengderetning
I taksten står det at det ikke ble avdekket skjevheter utover det som er normalt i boliger av denne årgang.
Så til spørsmålene:
1: Hvordan ser man på tegningene om hva som er bærevegg?
2: Hva er normal sig i gulvet i ett 40 år gammelt hus?
3: Er dette en sak man bør prøve og kanskje har håp om å få igjennom på en eierskifteforsikring? Dette kan jo være en alvorlig sak, da vi opplever at gulvet har seget mere på den lille tiden vi har bodd her. Og svært vanskelig å oppdage alvorligheten ved visning.
4: Burde vi være bekymret?

Hvorfor det skjer er ikke godt å si, kanskje en ny tung ovn?
Jeg vil anta taket hviler på yttervegg, og at det kun er gulvbjeklene som understøttes. Dette kan du se av takstolene.
Men jeg skulle jo mene at dette er noe takstmann burde ha oppdaget.
Hvordan bør jeg gå frem i slike tilfeller?
Så jeg lurer jo egentlig på å bare hive ut ovnen.
Burde vel også bare rive taket i underetasjen rundt pipa å se om man klarer å se noe som kan forårsake dette