7,120    7    0  

Takhøyde for ark på loft

 1,813     Sør-Trøndelag     0
Hei,

Hadde en samtale med arkitekten vår forleden dag rundt det med ark på loftet og takhøyden innvendig. Vi ønsket i utgangspunktet at takhøyden på loftet/arken skulle følge arken og dermed bli mer enn 2.40m. Vi har sett flere boliger som har skrått tak innvendig i arken.

Dette skapte visstnok utfordringer rundt det med bæring og var ikke helt problemfritt.

Kan noen fortelle meg hvordan loftet/arken blir satt sammen i praksis?

Taket består av A-takstoler, er ca. 11.2 meter langt og har ark på begge sider på midten som er 4 meter bred.

Takknemmelig for alle svar Smile
Signatur

   #1
 3,841     Haugesund     0
Hos meg har arkene samme høyde som hovedtaket, største aberet var mer plunder ved mønebeslaget. Som da skal danne et kryss. Mens ellers støter arken i taket under mønebeslaget, som da går ubrutt fra ende til ende.
Hvis det var forståelig.

Ang. bæringen, kan dette lages ved en kassett.
Skal se om jeg ikke kan få scannet inn takstolplanen.
Signatur
  (trådstarter)
   #2
 1,813     Sør-Trøndelag     0
Hei,

Takk for svar. Beklageligvis var det ikke helt forståelig, da jeg ikke er veldig teknisk av meg. Ser frem til å se takstolplanen din, det vil antageligvis oppklare masse.

Hos oss skal ark være underliggende hovedmøne med 20 cm.
Signatur
   #3
 3,841     Haugesund     0

Kan noen fortelle meg hvordan loftet/arken blir satt sammen i praksis?
I takstolplanen min vil du se at de bygget arkene mot kassetten merket T5 (FU1 på planen), som igjen henger sammen med A-stolene T3, og T4.
Arkene ble bygget av løse bjelker som tilpasses, fra T6 ytterst (ved yttervegg), og inn til kassetten T5/FU1.
Inne i kassetten ligger en HEA140 som sikkerhet.
Jeg har derfor 2400mm høyde i 600mm bredde innvendig loft alle veier.

Hvis ark senkes 20cm. letter det mye på taktekkingsarbeidet.
Så senker du bare hanebandet på hovedtaket tilsvarende innvendig for å få lik høyde. :)


Edit: innvendige mål på takstolplan er forandret i ettertid.
Signatur
  (trådstarter)
   #4
 1,813     Sør-Trøndelag     0
Takk for svar. Ble mye teknisk til meg, men plukket iallefall opp et nytt begrep: kassett :)

Googlet også HEA140 og fant ut at dette var en stålbjelke. Arkitekten fortalte at han foretrakk tre fremfor stål, da stål "hang" mer mens tre forble rett. Vet ikke om dette stemmer, men fikk lyst til å nevne dette.

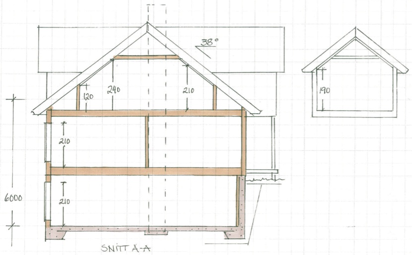
Har forresten lagt ved et snitt som til dels beskriver husprosjektet vårt. Er avgjørende å få til gesims på 6 meter, og skal ha utleie i sokkel så der blir det ranti 300 + lydbøyler. Vinkel på tak kan maks være 38 grader.

Det lille snittet til høyre viser arken(e). Vi ser for oss at vi fjerner den øverste horisontale bjelken slik at takhøyden blir høyere enn 2.4 meter.

Er dette mulig? Må det benyttes en slik kassett som du har, og bygger dette mer i høyden?
Takhøyde for ark på loft - snitt a.jpg - stefanvh
Signatur
   #5
 253     Risør     0
Hei.

Ikke for å være kjip eller noe sånt, jeg bare lurer på hvorfor du ikke heller sender skisse og spørmål til en aktuell takstol-leverandør, istedetfor å bruke dette forumet...? 

Jeg får slike spørsmål stadig vekk, både over mail og telefon. Hadde jeg fått et slikt spørmål fra deg med skisser på mail i forbindelse med forespørsel om levering og pris på takstoler ville jeg ha hjulpet deg med en komplett løsning, og sendt deg ei fil der du ville kunne sett hele taket i 3d.

Nå er ikke du innenfor mitt område, så for meg er det uaktuelt, men jeg vil tro at du får tilsvarende hjelp også hos dine aktuelle leverandører. Jeg vil anbefale deg å finne noen med god service og så sammen med dem lage den løsningen du ønsker, ikke bare sende det rundt for å få lavest mulig pris.

http://takstol.com/index.html?&m=ntf&i=http://takstol.com/medlemmene.htm
Her finner du sikkert en som vil hjelpe deg.

(Ps, det skal nok gå fint å heve hanebjelken, du skal sikkert ha minst 300 overgurt uansett, bruker du splittet limtre eller k-bjelke kan du nok få det til å holde.)
Signatur
  (trådstarter)
   #6
 1,813     Sør-Trøndelag     0

Ikke for å være kjip eller noe sånt, jeg bare lurer på hvorfor du ikke heller sender skisse og spørmål til en aktuell takstol-leverandør, istedetfor å bruke dette forumet...?


Ønsket bare å få innspill fra nøytral tredjepart. Dersom arkitekt er motvillig/skeptisk til det vi foreslår, så ønsker jeg å vite hva som kan være årsaken til dette. Jeg er skeptisk av natur og ønsker å vite mer rundt temaet slik at jeg bedre kan føre en samtale.

Takk for alle svar Smile
Signatur
   #7
 5,188     Østlandet     0
Alt er mulig hvis du er villig til å betale for det.
Hvis du skal ha mønedrager blir det en annen konstruksjon som fordyrer prosjektet.

Hvis du forteller arkietekt og takstolfirmaet at du har masse penger så er jeg sikker på at på at de fikser dette for deg.
Signatur