7,099
1
2
Terrasse over oppvarmet rom og valg av utførelse
51
1
Hei!
Kan noen hjelpe oss og komme med innspill på løsningen vi tenker å velge på terrassen?
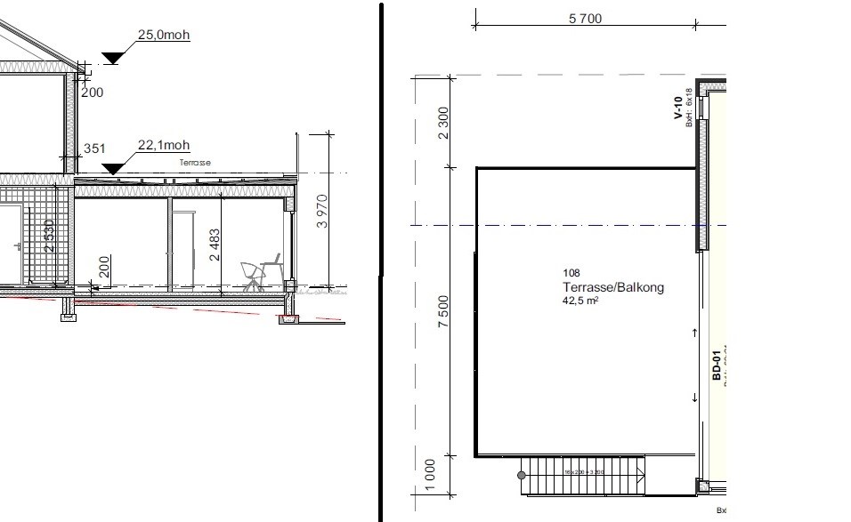
Det er en terrasse over oppvarmet rom, hhv 2 soverom og et oppholdsrom. Vi vurderer å bygge taket med lufting og fall utover mot takrenne. Dett bygger mindre enn kompakt tak. Det står mye forskjellig rundt på nettet, både for og mot både flate tak og plassering av nedløp. Noen råder innvendig sluk, noen fraråder. Ikke lett å komme til noen konklusjon her. Kanskje finnes det hjelp her inne?
Sintef sier:
Luftet terrasse med fall utover kan brukes der: Faren for snøsmelting er liten. Oppnås der det er lite nedbør i form av snø, terrassen er overbygd eller der u-verdi er lavere enn 0,18W (m2K) som tilsvarer isolasjonstykkelse av mineralull på min. 250mm.
Vi bygger utenfor Drammen, ved sjøen, etter TEK10. Det er 20 cm takoverbygg på saltak over terrassen. Er vi i et området med varierende mengde snø? Og er over kravet mtp u-verdi med 300mm?
Fordelen ved å velge luftet med utvendig nedløp er at dette bygger mindre enn kompakt tak. Å ikke bryte taktekkingen på det flate taket er vel bare bra? Det er enkelt å passe på at takrennen ikke er tett.
Det som ikke føles helt bra er at takoverbygget er så lite der terrassen møter huset, kun 20cm, og i tillegg er det gulv til tak vindu og skyvedør. Hva om det bygger seg opp snø mot vindu/skyvedør mens vi er borte?
Legger ved bilde av terrassen(med innvendig sluk, se bort fra det) og illustrasjoner fra Sintef på tenkt løsning. Håper noen kloke hoder kan hjelpe oss med tilbakemelding her.




Kan noen hjelpe oss og komme med innspill på løsningen vi tenker å velge på terrassen?
Det er en terrasse over oppvarmet rom, hhv 2 soverom og et oppholdsrom. Vi vurderer å bygge taket med lufting og fall utover mot takrenne. Dett bygger mindre enn kompakt tak. Det står mye forskjellig rundt på nettet, både for og mot både flate tak og plassering av nedløp. Noen råder innvendig sluk, noen fraråder. Ikke lett å komme til noen konklusjon her. Kanskje finnes det hjelp her inne?
Sintef sier:
Luftet terrasse med fall utover kan brukes der: Faren for snøsmelting er liten. Oppnås der det er lite nedbør i form av snø, terrassen er overbygd eller der u-verdi er lavere enn 0,18W (m2K) som tilsvarer isolasjonstykkelse av mineralull på min. 250mm.
Vi bygger utenfor Drammen, ved sjøen, etter TEK10. Det er 20 cm takoverbygg på saltak over terrassen. Er vi i et området med varierende mengde snø? Og er over kravet mtp u-verdi med 300mm?
Fordelen ved å velge luftet med utvendig nedløp er at dette bygger mindre enn kompakt tak. Å ikke bryte taktekkingen på det flate taket er vel bare bra? Det er enkelt å passe på at takrennen ikke er tett.
Det som ikke føles helt bra er at takoverbygget er så lite der terrassen møter huset, kun 20cm, og i tillegg er det gulv til tak vindu og skyvedør. Hva om det bygger seg opp snø mot vindu/skyvedør mens vi er borte?
Legger ved bilde av terrassen(med innvendig sluk, se bort fra det) og illustrasjoner fra Sintef på tenkt løsning. Håper noen kloke hoder kan hjelpe oss med tilbakemelding her.




http://byggebolig.no/bygge-nytt-hus/har-kjopt-drommehuset/msg779813#msg779813