4,203
4
0
TEK 10. alternativt 40% oppvarming. Ny Enebolig 2014.
2
0
Heisan forum.
Ny her på forumet men ser her er veldig mykje nyttig info om nybygg av enebolig.
Har eit spørsmål eg håper dere kan hjelpe med:
noen med erfaring på dette området?
Huset blir bygget under tek10 standard.
Graving av tomt starter 4 januar 2014.
Huset har 2 etasje, kvar etasje er på 185kv.
Kjeller delen har ei leilighet på 95kv.
huset skal ikkje ha pipe som vi har git info til hus leverandør fra dag 1.
Kystklima i møre og romsdal.
Pr i dag er det planlagt varmekabel der vi skal flislegge, kjøkken, alle bad, boder, ganger, kjellerstue. inngangspartier. dette blir da eneste oppvarming.
Kontrakt signert.
Nå i ettertid får vi beskjed om at det blir utfordrende og følle "alternativ 40% opppvarming kravet", og nå vill bygg firmaet anbefalet pipe og dei sponser ei varmepumpe??
Vi har fra dag 1 sett på væske/vann vannbåren varme med borehull ca 200m dypt.
Ca 460000kr med hull.
er det da mest fornuftig og gå tilbake på dette og ta den kostnaden alikavell?
Takker for alle innspel på dette :-)
Ny her på forumet men ser her er veldig mykje nyttig info om nybygg av enebolig.
Har eit spørsmål eg håper dere kan hjelpe med:
noen med erfaring på dette området?
Huset blir bygget under tek10 standard.
Graving av tomt starter 4 januar 2014.
Huset har 2 etasje, kvar etasje er på 185kv.
Kjeller delen har ei leilighet på 95kv.
huset skal ikkje ha pipe som vi har git info til hus leverandør fra dag 1.
Kystklima i møre og romsdal.
Pr i dag er det planlagt varmekabel der vi skal flislegge, kjøkken, alle bad, boder, ganger, kjellerstue. inngangspartier. dette blir da eneste oppvarming.
Kontrakt signert.
Nå i ettertid får vi beskjed om at det blir utfordrende og følle "alternativ 40% opppvarming kravet", og nå vill bygg firmaet anbefalet pipe og dei sponser ei varmepumpe??
Vi har fra dag 1 sett på væske/vann vannbåren varme med borehull ca 200m dypt.
Ca 460000kr med hull.
er det da mest fornuftig og gå tilbake på dette og ta den kostnaden alikavell?
Takker for alle innspel på dette :-)
Signatur
Jeg tror kanskje oppvarming som er planlagt er noe tynn.... Men har ikke sett planløsning.
Hva med stue, hvordan er det tenkt oppvarming der?
Jeg er tilhenger av vedovn, også som sikring ved strømbrudd. Om du ser økonomi i det så vil det gå mange år å gå i null på 450000.
komfort er prioritet ja, har vannbåren men fra sjø her vi bor i dag.
Skal være enig i en "tynn" oppvarming på dette huset, men det skulla komt fram før vi signerte kontrakta.
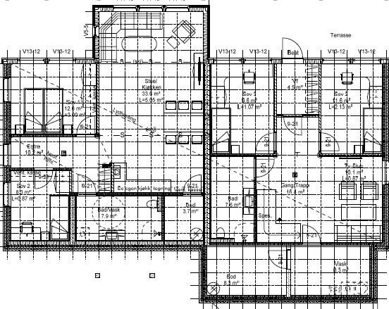
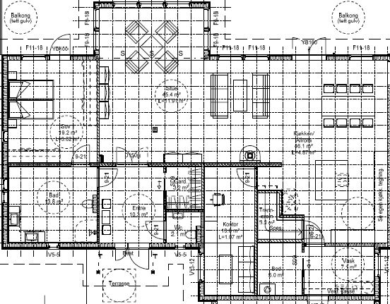
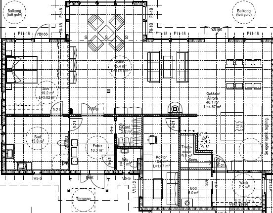
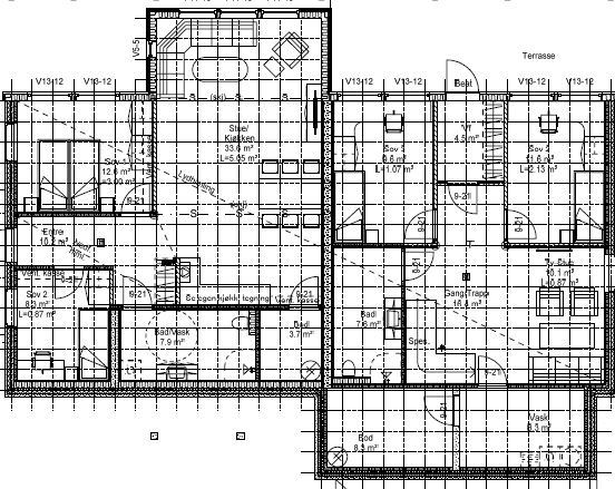
Stue/kjøkken i hoved etasje er i ett, ca 45kv kjøkken med betong/flis og 46kv med parkett/tregulv. Gulvkaldt?
Ved må vi evt kjøpe utenifra, har ikkje muligheit til og "hogge" sjøl.
Sjå bilder.
Vil tro du mer kan halvere kostnad på installasjonen av varmeløsning da. Mange på forumet montere vbv selv, usikker på om det er lov lengre... Men et helt annet prisbilde.
De dagene det er veldig kaldt må du ha en alternativ kilde som f.eks elektriske panelovner eller peis.
Varmepumpe væske/vann er Mercedesversjon av varmepumpene, og som dessverre har tilsvarende pris.
Incognito (Adm.dir i Premium Haus AS )
Selger lavenergihus fra Tyskland.