1,313
10
1
Bygger nytt hus: abchus Adele i Drammen
19
0
Da er vi igang med å bygge Adele fra abchus (tidligere iec-hus), og starter med en oppsummering:
Tomten:
Tomten ble kjøpt sent i 2017 og ligger mellom E134 og Drammenselva med utsikt mot skibakken på andre siden av dalen.


Situasjonskart:

3D-illustrasjon:

Plantegninger:
Vi har gjort veldig lite endringer på originale tegninger, men vi har flyttet inngangen til vaskerommet, flyttet veggen mellom bad og vaskerom og gjort om gangen inn til vaskerommet til dusjnisje. Vi får da større bad og plass til badekar, men må gå gjennom badet for å komme til vaskerommet.
Original plantegning:

Endret plantegning:

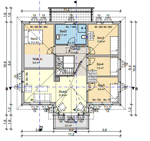
Plantegning 2. etg:

Vi har planlagt å gjøre det meste av innvendige flater og innredning selv, slik som kjøkkeninnreding (Ikea), baderomsinnredninger (Ikea), Laminatgulv i hele huset og fliser i gang og entré, sparkle og male tak og vegger, lister og utforinger, samt innerdører. Egeninnsatsen er verdsatt til ca 450 000.
Abchus står for alt annet som grunnmur, byggesett, våtrom, elektrisk, peis, trapp og gipsplater på vegger.
Status per 09.09.2018:


Budsjettet er på ca 6 000 000 inkludert en "sprekk" på 10% i forhold til kostnadsoverslag. Litt over 3 000 000 går til husleverandør, resten er tomtekjøp, gravearbeid, byggelånsrenter, byggesaksgebyr++
Tomten:
Tomten ble kjøpt sent i 2017 og ligger mellom E134 og Drammenselva med utsikt mot skibakken på andre siden av dalen.


Situasjonskart:

3D-illustrasjon:

Plantegninger:
Vi har gjort veldig lite endringer på originale tegninger, men vi har flyttet inngangen til vaskerommet, flyttet veggen mellom bad og vaskerom og gjort om gangen inn til vaskerommet til dusjnisje. Vi får da større bad og plass til badekar, men må gå gjennom badet for å komme til vaskerommet.
Original plantegning:

Endret plantegning:

Plantegning 2. etg:

Vi har planlagt å gjøre det meste av innvendige flater og innredning selv, slik som kjøkkeninnreding (Ikea), baderomsinnredninger (Ikea), Laminatgulv i hele huset og fliser i gang og entré, sparkle og male tak og vegger, lister og utforinger, samt innerdører. Egeninnsatsen er verdsatt til ca 450 000.
Abchus står for alt annet som grunnmur, byggesett, våtrom, elektrisk, peis, trapp og gipsplater på vegger.
Status per 09.09.2018:


Budsjettet er på ca 6 000 000 inkludert en "sprekk" på 10% i forhold til kostnadsoverslag. Litt over 3 000 000 går til husleverandør, resten er tomtekjøp, gravearbeid, byggelånsrenter, byggesaksgebyr++
Synes nesten verdi på egeninnsats var litt lav. Male og sparkle hos oss er noe slik som 250k, mens det blir vrient å sette pris på fliser etc, da dette er del av våtromsarbeider. Det sagt er våre 250k inkludert listfritt. Pris på uttrekk av gulv hos oss var 100-120k ca. Kjøkken er ikke så mye jobb, men selve kjøkkenet koster da.
Kjøkkenet vårt tror jeg kommer på ca 47 000 inkludert hvitevarer, om vi ikke skal oppgradere til dyrere benkeplate eller hvitevarer. Så syns ikke det er så ille.
Jeg så fra 9/9 til 25/10, så fikk du støpt grunnmur og satt opp første etasje. Har du en mer detaljert fremdriftsoversikt?;)