Da kom det brev fra kommunen i dag, og søknaden er så langt innvilget. Bare reg.plan endring som står igjen. Ett steg nærmere! Tomta betales på Mandag!
Hei sann! Ja, jeg har begynt prosessen med Mjøselement. Veldig hyggelige folk! Ordnet med arkitekt nå på Fredag, og snakket med han som tar seg av graving og grunnarbeid senere på kvelden. Mjøselement prosjekterer alt så fort de har tegninger. Har også snakket med Joramo & Tørset Bygg AS, for å få litt rådgiving underveis i prosessen. Et meget dyktig byggefirma! Byggesøknad sendes kommunen før jul. jeg kommer til å bruke Jackon i grunnmur og vil gjøre den jobben selv. P-elementene fra Mjøselement kommer jeg også til å gjøre som egeninnsats der det er mulig. Tror jeg skal skaffe meg en skruautomat.. 😂
Da er rammesøknad levert kommunen! Venter enda på endelig prosjektkostnad fra Mjøselement. Har dialog med Espen hos Mjøselement nå, så det er vel snart i boks håper jeg. Det blir Jackon i grunnmur.
Har da kommet noe videre i prosjektet. Situasjonsplanen er godkjent. Måtte gjøre noen endringer på innkjørsel til tomta da denne er over 6 meter bred på tegninga. Reduserte den til 6 meter på begge steder. Måtte også vise at det er "snuplass" på egen tomt. Ble litt overrasket over den, men whatever.. Tegnet det inn, og godkjent ble det!
Har jobbet litt med budsjett og ser at ting koster penger..mye penger.. Har fått et veldig bra tilbud på et xComfort anlegg fra anerkjent elektrikerfirma, med en drøss med spotter og releer på bortimot alt inkl. garasjeporten. Det blir varmekabler i sokkelen, og varmepumpe i 1.etg. Blir veldig lite oppvarmingsbehov da huset har så og si null kuldebroer, og veggene har en U-verdi på under 0.1!
Sjekket litt rundt ang. vinduer og fant ut at veiledende pris fra f.eks. Swedoor og NorDan er mer en villedende pris. Om noen har negative erfaringer med Windoornet.no rop ut! Her var det greie priser. Mulig byggefirma kan skaffe lignende priser - venter på tilbud fra dem nå.
Fant ut at jeg ikke får 400V anlegg, da det ikke er tilgjengelig her jeg bygger. Det vil si, det er tilgjengelig, men langt unna det en kan kalle for en hensiktsmessig investering. Det vil si jeg ikke får 11kW El-bil lader om jeg ikke kjøper en egen 230V/400V transformator..tror jeg venter med det.
Har bestemt meg for Hide-a-hose sentralstøvsuger. Ser ikke for meg at en sentralstøvsuger blir brukt noe særlig om jeg må drasse rundt på en 10-15 meter lang slange hver gang den skal brukes..nei, gjem slangen i veggen..det er løsningen! Veldig tøft konsept!
Fant ut at rammesøknad ikke nødvendigvis er tingen, da en to-trinns søknad koster den nette sum av Kr. 10.000,- mer enn en ett-trinns søknad. Så nå henter jeg inn ansvarserklæringer fra Ventilasjon, VVS og Arkitekt.
Har fått en kjempedeal på grunnarbeid med en veldig flott rabatt på Jackon elementer. På tross av dette...så langt ca. 200.000,- over budsjett.. og det er helt sikkert ting jeg har glemt.. kanskje jeg burde spare en kvart million til, og begynne med byggingen våren 2018? Har alltid likt partall bedre enn oddetall..så kanskje? Jeg får se.. de resterende tilbudene på VVS, ventilasjon, og etasjeskillet avgjør det hele.. Nei, forresten..banken avgjør det hele. Neste uke blir en avgjørende og spennende uke hva dette prosjektet angår!
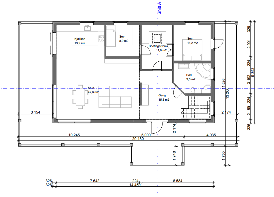
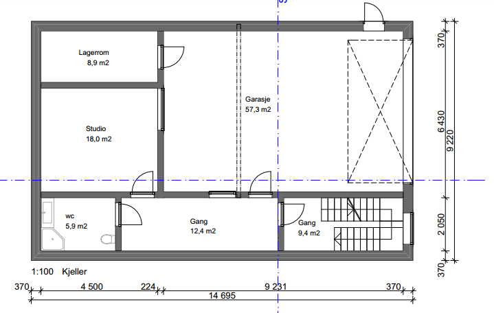
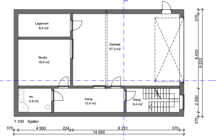
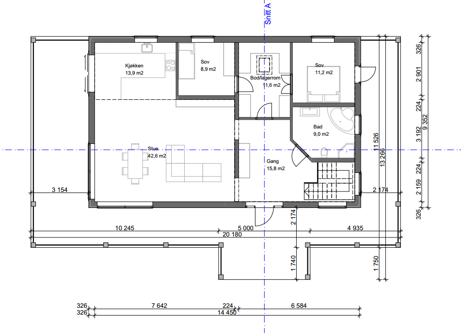
Syntes tegningene ble flott, og er veldig spent på hvordan det blir når det kommer opp, om det så er 2017, 2018..eller 2019..
Vlog - www.jarleif.eu
loggen.
www.jarleif.eu
Planlegger også et TimeLapse kamera når prosjektet tar fart.
Noen som har erfaring med dette?
http://www.spyshop.no/brinno-bcc100-timelapse-kamera-for-byggeplass.html#rating-link
Vlog - www.jarleif.eu
Ble et Brinno BCC200 / TLC200Pro
Vlog - www.jarleif.eu
Følg gjerne også med på Youtube kanalen - legges ut innhold daglig der.
www.jarleif.eu
Vlog - www.jarleif.eu
Blei det Mjøselement på deg?
Hei sann! Ja, jeg har begynt prosessen med Mjøselement. Veldig hyggelige folk! Ordnet med arkitekt nå på Fredag, og snakket med han som tar seg av graving og grunnarbeid senere på kvelden. Mjøselement prosjekterer alt så fort de har tegninger. Har også snakket med Joramo & Tørset Bygg AS, for å få litt rådgiving underveis i prosessen. Et meget dyktig byggefirma! Byggesøknad sendes kommunen før jul. jeg kommer til å bruke Jackon i grunnmur og vil gjøre den jobben selv. P-elementene fra Mjøselement kommer jeg også til å gjøre som egeninnsats der det er mulig. Tror jeg skal skaffe meg en skruautomat.. 😂
Vlog - www.jarleif.eu
Vlog - www.jarleif.eu
Vlog - www.jarleif.eu
Har jobbet litt med budsjett og ser at ting koster penger..mye penger.. Har fått et veldig bra tilbud på et xComfort anlegg fra anerkjent elektrikerfirma, med en drøss med spotter og releer på bortimot alt inkl. garasjeporten. Det blir varmekabler i sokkelen, og varmepumpe i 1.etg. Blir veldig lite oppvarmingsbehov da huset har så og si null kuldebroer, og veggene har en U-verdi på under 0.1!
Sjekket litt rundt ang. vinduer og fant ut at veiledende pris fra f.eks. Swedoor og NorDan er mer en villedende pris. Om noen har negative erfaringer med Windoornet.no rop ut! Her var det greie priser. Mulig byggefirma kan skaffe lignende priser - venter på tilbud fra dem nå.
Fant ut at jeg ikke får 400V anlegg, da det ikke er tilgjengelig her jeg bygger. Det vil si, det er tilgjengelig, men langt unna det en kan kalle for en hensiktsmessig investering. Det vil si jeg ikke får 11kW El-bil lader om jeg ikke kjøper en egen 230V/400V transformator..tror jeg venter med det.
Har bestemt meg for Hide-a-hose sentralstøvsuger. Ser ikke for meg at en sentralstøvsuger blir brukt noe særlig om jeg må drasse rundt på en 10-15 meter lang slange hver gang den skal brukes..nei, gjem slangen i veggen..det er løsningen! Veldig tøft konsept!
Fant ut at rammesøknad ikke nødvendigvis er tingen, da en to-trinns søknad koster den nette sum av Kr. 10.000,- mer enn en ett-trinns søknad. Så nå henter jeg inn ansvarserklæringer fra Ventilasjon, VVS og Arkitekt.
Har fått en kjempedeal på grunnarbeid med en veldig flott rabatt på Jackon elementer.
På tross av dette...så langt ca. 200.000,- over budsjett..
Syntes tegningene ble flott, og er veldig spent på hvordan det blir når det kommer opp, om det så er 2017, 2018..eller 2019..
Vlog - www.jarleif.eu