1,220
22
0
Moderne hus i Fredrikstad
23
0
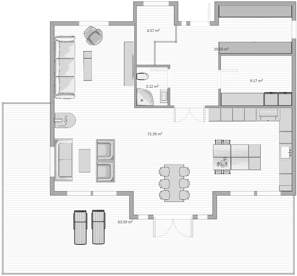
Etter mye om og men, er tomten vi kjøpte for litt siden endelig klar for å bygges på. Satser på å sende inn byggesøknad i løpet av sommeren.
Vi har ikke bygget tidligere, ei heller pusset opp. Vi har heller ikke barn, så fremtidige behov er vanskelig å forutse.
Om noen derfor har tips til planløsningen vi nå har kommet frem til, så er det fantastisk. Tar i mot all slags tips.
- Ønsker mye bodplass.
- Rom bak WIC er bod. Kan gjøres om til foreldrebad.
- Rom mellom soverom er bod.
- Sportsbod er i garasje.
- Vurderer å bytte plass på TV stuen og kjøkkenet.
- Trapperommet er den lille utstikkeren.
- Trenger kun ett barnerom. Andre rommet er kontor.
- Huset skal ha fulle etasjer, med flatt tak.
- Stående Royal kledning.
- Platting med direkte utgang til hage.
- Listefritt i alle rom.
Målet er å holde oppdatert fortløpende i denne tråden.
Takker igjen for alle tips.

Vi har ikke bygget tidligere, ei heller pusset opp. Vi har heller ikke barn, så fremtidige behov er vanskelig å forutse.
Om noen derfor har tips til planløsningen vi nå har kommet frem til, så er det fantastisk. Tar i mot all slags tips.
- Ønsker mye bodplass.
- Rom bak WIC er bod. Kan gjøres om til foreldrebad.
- Rom mellom soverom er bod.
- Sportsbod er i garasje.
- Vurderer å bytte plass på TV stuen og kjøkkenet.
- Trapperommet er den lille utstikkeren.
- Trenger kun ett barnerom. Andre rommet er kontor.
- Huset skal ha fulle etasjer, med flatt tak.
- Stående Royal kledning.
- Platting med direkte utgang til hage.
- Listefritt i alle rom.
Målet er å holde oppdatert fortløpende i denne tråden.
Takker igjen for alle tips.

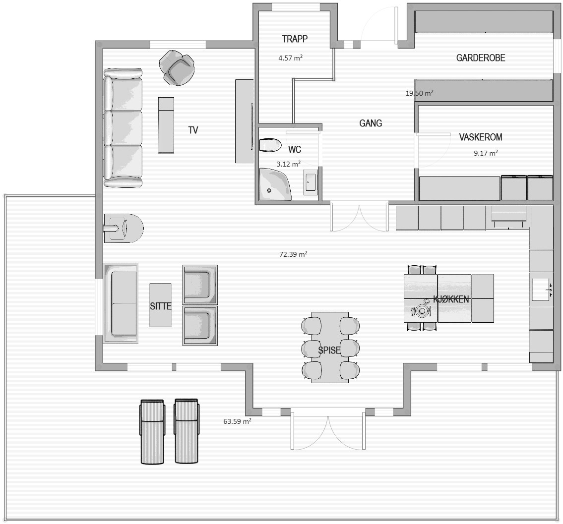
Noen som har en formening om det er nok?
Jeg savner dog et teknisk rom? Hvor skal evt. vv-bereder/varmepumpe, vanninntak, koblingsskap for nettverk, evt. solcelleinvertere ++ plasseres? I en av bodene? Etter min mening kan man aldri få for stort teknisk rom
Ellers ville jeg sørget for at det (relativt enkelt) går an å lage et ekstra soverom i 2 etasje av Ok størrelse av hensyn til verdien på huset. Kanskje til og med lage rommet i midten (garderoben) til soverom men bruke det til garderobe? Om du lager rett vegg foran barnerom og garderobe i stedet for innhakket og setter et vindu på endeveggen i garderoben og stjeler noen cm fra barnerommet får du et brukbart soverom, og garderobeskapene blir enklere å komme til enn det som er tegnet nå.
Ellers likte jeg veldig godt det aller meste her! Hvilke vinduer skal dere ha på kjøkkenet? Hvis det er vanlig 90 cm over gulv kan du overveie å ha vasken foran vinduet og lage en U-løsning. Veldig fint å se ut npr man vasker opp synes nå jeg 😊
Takk!
Det kan utvides med soverom både i stue, ved å flytte WiC til hovedsoverom+hovedsoverom oppover og ved å gjøre om ene boden. Så tanken er at ved krise, så kan det bli fire soverom.
Teknisk var tenkt sammen med vaskerom. I ny løsning, som kommer under, så har vi utvidet denne en del.
Hvor mange m2 bør man sette av til teknisk?
Gode ideer. Har ikke gjort det ennå. Men har utvidet vaskerommet. Det kan derimot være at din ide blir benyttet, om vi må kutte utstikkeren ved trappegangen. Takk!
Ja. Det er tenkt muligheten for å omgjøre til ekstra soverom. For vår del trenger vi bare ett barnerom og ett gjesterom. Men i ny planløsningen har vi rettet av og lagt inn vindu slik at bod også kan gjøres om til soverom.
Vi har nå tegnet om kjøkkenet. Se ny løsning under. Da blir det vindu over vasken 😊
Takk for tips!
Takk for tips, skal absolutt vurdere skyvedører. Flere steder i huset. Ser mange anbefaler det
Har derimot tegnet om første etasje noe. Utstikkeren er flyttet til høyre. Passer bedre med tomten og sol, men det er hovedsakelig tenkt for å få ett litt mer avskjermet kjøkken. Det åpner spesielt for muligheten med feks noen spilevegger i fremtiden.
Det gir også en takterrasse som er litt større i 2. etasje.
Eneste vi er noe usikre på er om det totalt blir noe trangt. Tenker spesielt på spisedelen, som nå ikke er i utstikkeren. Men til gjengjeld er kjøkkenet bedre, så veier litt opp.
Det er ca 110 - 120 cm mellom øy og skap, mellom garderobeskap med mer.
Er det nok?