1,783
11
2
Vi bygger Tønsberg Blink Hus :)
6
0
Hei,
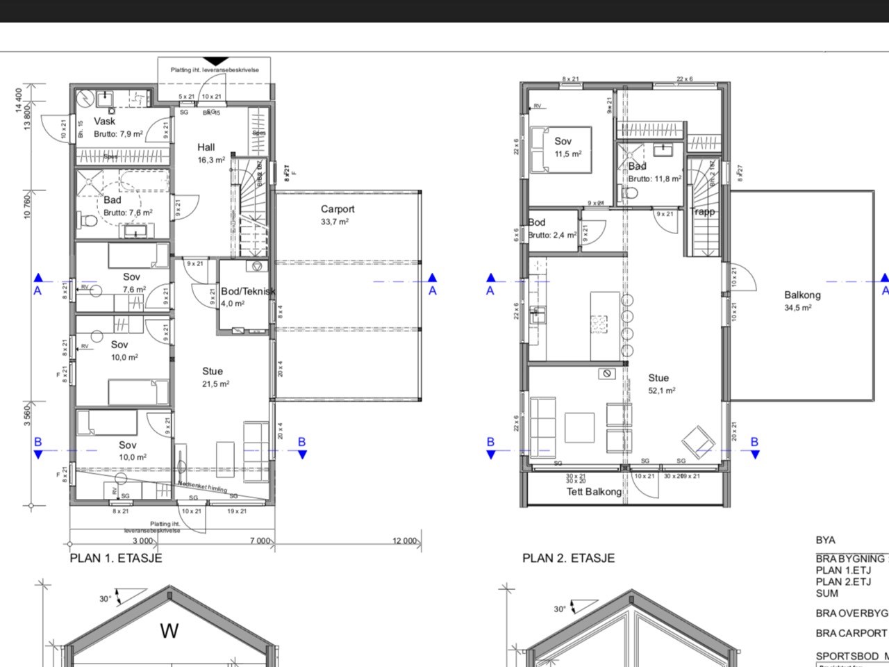
Vi har fått tegningene til huset i dag og vi ønsker innspill på planløsningen vår :) Vi har valgt å ha stue og kjøkken i 2. etg. på grunn av utsikt. Carport og terrasse oppå må være på den siden de er på grunn av solforhold. Huset er opprinnelig Tønsberg modellen av Blink Hus men vi har gjort noen endringen både utvendig og innvendig. Vedlegger planløsningen.
På forhånd takk
- viber image.jpg - nebrejen" style="">
Vi har fått tegningene til huset i dag og vi ønsker innspill på planløsningen vår :) Vi har valgt å ha stue og kjøkken i 2. etg. på grunn av utsikt. Carport og terrasse oppå må være på den siden de er på grunn av solforhold. Huset er opprinnelig Tønsberg modellen av Blink Hus men vi har gjort noen endringen både utvendig og innvendig. Vedlegger planløsningen.
På forhånd takk
- viber image.jpg - nebrejen" style="">

Er det en grunn for at dere ikke har vindu på badet nede? Det ville jeg i så fall virkelig ha revurdert. Veldig greit med dagslys på bad.
Så ville jeg ha droppet vindu i begge bodene. De tar bare opp veggplass.
Jeg hadde videre flyttet varmtvannsberederen til teknisk bod så blir vaskerommet litt ryddigere.
Ta også en nærmere titt på dørene. Døren på soverommet i midten nede ville jeg ha flyttet til midt på veggen så får du plass til mer skap bak døren. Sikker på at dere vil ha skyvedør til soverommet oppe? Husk at skyvedører ikke er like lydtette.
Til slutt hadde jeg endret til en større balkongdør til takterrassen. Vi har valgt foldedører
Kanskje blir det en litt lang «tunnel du må igjennom når du skal inn i huset nede - du må forbi både trapp og bod (får litt engelsk town house følelse). Ville overveid å slå sammen vaskerom og teknisk, tror teknisk rom kan bli lite med 4 kvm. Da får du også gratis varme på vaskerommet og du slipper å skulle igjebnom gang forbi teknisk rom når du skal til stua 😊 Stjel Evt noen ekstra kvm fra de store soverommene og bad, eller flytt det lille soverommet til enden av stua (siden nåværende bod forsvinner blir stua stor likevel).
Oppe ville jeg overveid å flytte peisen til ytterveggen mot balkongen. Da kan du se den fra alle rom og du kan lettere møblere TV-stua. Ville også overveid å lage en dør mellom bad og soverom så dere ikke må ut i stua for å gå på do på natta når ungene har fest i stua. Og så kanskje endre boden til matbod med inngang fra kjøkkenet? Da kan du ha vanlig dør til soverommet også, skyvedør er ikke akkurat lydtett 😊
1. Vi hadde ikke lagt merke til at det mangler vindu på badet
2. Enig at bodene skal ikke ha vindu.
3. Varmtvannsbereder i teknisk rommet.. da må man i så fall ha sluk der også.
4. Det går ei søyle akkurat på midten av veggen så det blir vanskelig å flytte døra ditt.
5. Vi har ikke tegnet noe skyvedør oppe på soverommet. Jeg vet ikke hvorfor de har tegnet det slik. Samme gjelder terrassedøra. Der blir det stor skyvedør.
1. Ja enig at man får sikkert tunnel følelse men samtidig jeg syns at soverommene forblir private
2. I utgangspunktet var soverommene veldig små. Vi ville ikke ha soverom mindre enn 10 kvm. Den lille soverom blir gjesterom/kontor.
3. Det blir høyskap på den veggen mot boden så det går ikke an og ha dør der..
4. Vi kan se på den løsning med peis til ytterveggen. Mener du balkongen altså framsiden av huset eller terrassen på siden`?
Det må bygges etter Våtromsnormene så blir litt dyrere men det er grei løsning det. Kanskje litt dum å ha teknisk rom ved siden av soverommene siden det kan være lyd fra utstyrene men vi så ikke noe annen løsning på det..
Mener balkongen oppå carporten. Du kan da også få inn peis i kjellerstua om du ønsker det. Det går fint an å koble to peiser på samme pipe, men kan hende du må ha en motor øverst for å være sikker på at det er nok trekk. Husk å legge opp en strømkurs til det 😊
Npr det gjelder teknisk rom er jeg fortsatt ganske sikker på at 4 kvm ikke er nok. Du trenger ikke bare en varmtvannsbereder - det må være veggplass til alle vannrør, Evt veggplass til varmepumpe + alle rør til vannbåren varme, du må ha trykktank, ventilasjon (vårt ventilasjonsskap er vel 1 meter bredt) sentralstøvsuger, sikringsskap osv. Du får ikke det inn på 4 kvm. Hos oss har vi et rom på 16 kvm, men det er bod også. Tekniske installasjoner tar halvparten av rommet (veggplass).
Vårt teknisk rom er mindre enn 4 kvm, men vi har ikke VBV eller sentralstøvsuger.