12,214
16
0
Krav til rullestolplass på bad/wc
99
Norway
0
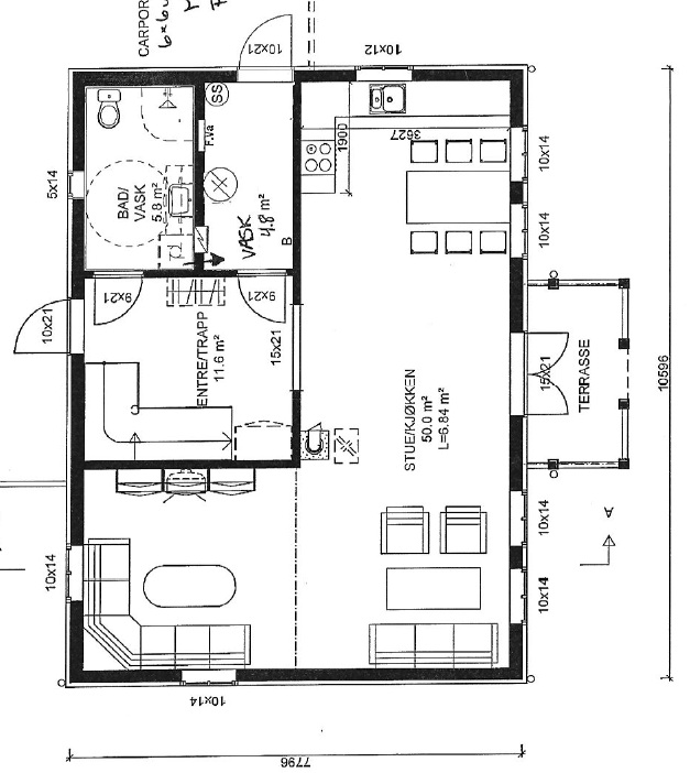
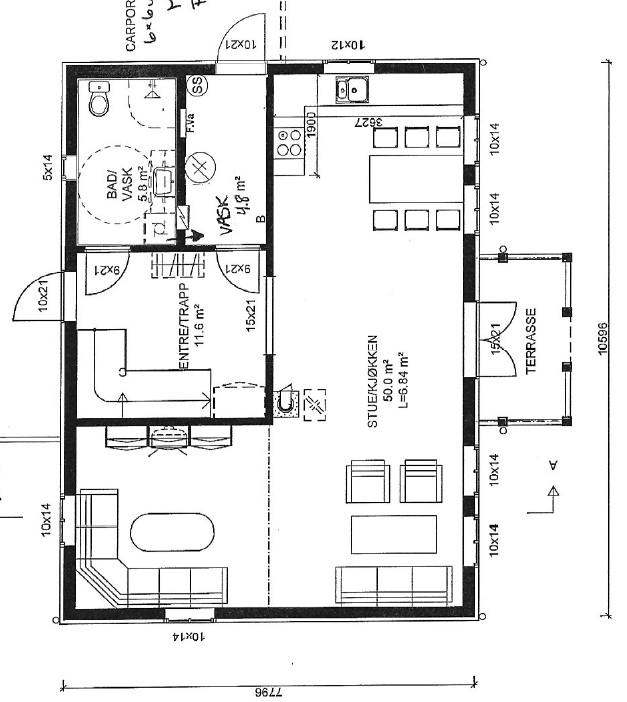
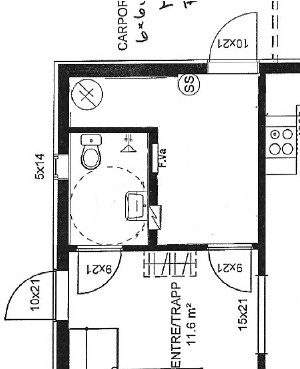
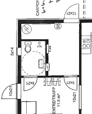
Hei, skal bygge Alvheim fra Boligpartner, og jeg ønsker å gjøre wc i første minst mulig, mot å gjøre boden ved siden av om til vaskerom og gjøre den størst mulig med egen inngang osv.
Har fått endret det litt av Boligpartner, men de er strenge på at wc skal ha plass til at en rullestol skal kunne rotere rundt inne på wc... er dette en regel som er umulig å omgå?
Skulle gjerne hatt enda mindre wc i første etg..
Se gjerne vedlagt bilde.
Har fått endret det litt av Boligpartner, men de er strenge på at wc skal ha plass til at en rullestol skal kunne rotere rundt inne på wc... er dette en regel som er umulig å omgå?
Skulle gjerne hatt enda mindre wc i første etg..
Se gjerne vedlagt bilde.

Men: Rullestolsirkelen skal være foran doen, men trenger ikke være rett foran. Sirkelen kan overlappe med dusjssone, hvis det ikke er kabinett eller faste vegger/terskler til dusjen. Og arealet under vegghengt vask uten skap under kan også regnes med, dersom jeg forstår rett Sintef-rapporten "Ikke så dyrt allikevel - konsekvenser av TEK10 for arealbruk i småboliger".
Da er dorommet med dusj slik jeg har gimpet i vedlegget innenfor kravene, og bod/vaskerom blir litt romsligere, rett nok med en litt upraktisk form med vinkel.
www.sintef.no_upload_ikke_sa_dyrt_likevel%5B1%5D.pdf
Denne løsningen virker vel fint hvis man bytter om dusj og vask og setter vasken atmed dassen og dusjen med utfellbare dusjdører eller lignende i hjørnet mot døra? Ikke ideelt, men minimalistisk i alle fall?
Samt er dette eneste badet eller har du flere? Og må du ha dusj på dette badet, eller kan dusjen settes f.eks. på vaskerommet i stedet? Veldig praktisk å ha dusj på vaskerommet for avspyling av klær ting, oppheng av dryppvåte ting osv.
EDIT:
Jeg kunne leita, men står det noen plass spesifisert størrelse på dass som må være tilgjengelig for rullestolbruker? Kunne man ikke installert en minimal liten barnehagedass i et hjørne på vaskerommet bare for å ha "hull i gulvet" tilgjengelig for rullestolbrukere og innredet dass-rommet "på normal måte" etter gammel standard for størrelse? Evt montert en ordinær gulvstående dass atmed vaskemaskina for syns skyld, og kaste den på dør når man flytter inn? Avløpsstussen i gulvet må vel stå (plombert) men vannuttaket kan brukes til vaskemaskina.
Skal ha ett stort bad til, i 2 etg, men dette skal jeg ikke bygge før vi har flyttet inn.
(Gjør ferdig 1 etg først, for å kunne flytte inn)
Jeg vil ha dusj på dette badet, fordi det blir eneste badet i en periode..
Takk for gode inspill.
Skal titte litt på mulighet for å lage badet som i innlegget fra KjellTS.
Vurder da også å plassere vasken nærmere hjørnet ved døra, det gir mindre overlapp med sirkelen og litt mer åpen plass foran dusjen.
Men dersom dette kan bli eneste bad i noen år, kanskje det er en ide å beholde størrelsen, med plass til vaskemaskin, og la det andre rommet være et minst mulig teknisk rom og bod med tilgang fra både inne og ute? Eller, drastisk forslag, fjerne veggen og lag et stort kombinert bad/vaskerom?
Vi har selv nettopp vært igjennom samme greien, hadde tenkt å ha soverom/kontor i 1.etg, men pga at badet da måtte utvides, gikk vi bort i fra dette da vi, som dere, kun ønsket et lite bad i denne etasjen.
Niklasrene: Hva med å etablere dusjmulighet i vaskerommet - om dette ellers skal ha våtromsfunksjonalitet. Ser at du har planlagt direkte utgang fra vaskerommet. Ingenting er bedre enn en dusj å sende sølete unger rett inn i - eller etter at du har vært en runde på 40 års krise - birkenoppkjøring på offroad i regnvær.
Dersom de planlegger å flytte inn før annen etasje er innredet, tipper jeg det kommer en vegg ved den stipla streken mellom de to sofagruppene, og TV-stua blir soverom. Det ligger godt tilrette for å dele av stua og ha alle funksjoner i første etasje, og dermed er et bad i første etasje som bidrar til "tilgjengelig boenhet" kjekt å ha. Både for egen bruk, og som et salgsargument når/hvis man skal flytte.
Boligpartner mente at det kan bli vanskelig med kommunen hvis vi påstår at vi kun skal ha ett soverom i første omgang, iom at vi er 4 pers. :)
Takk for alle gode tips!