129
0
0
Tolkning av reguleringsplanen fra 1995 og datidens grad av utnytting.
200
0
Hei alle sammen,
Vi har en reguleringsplan fra 1995 som vi sliter litt med å forstå. Håper dere kan hjelpe oss med det.

Vi forstår det slik at man må gå tilbake til datidens byggeforskrift da reguleringsplanen var laget.
Her har vi utdrag fra "Grad av utnytting" gitt av kommunal og moderningseringsdep. Side 56.

Hva betyr:
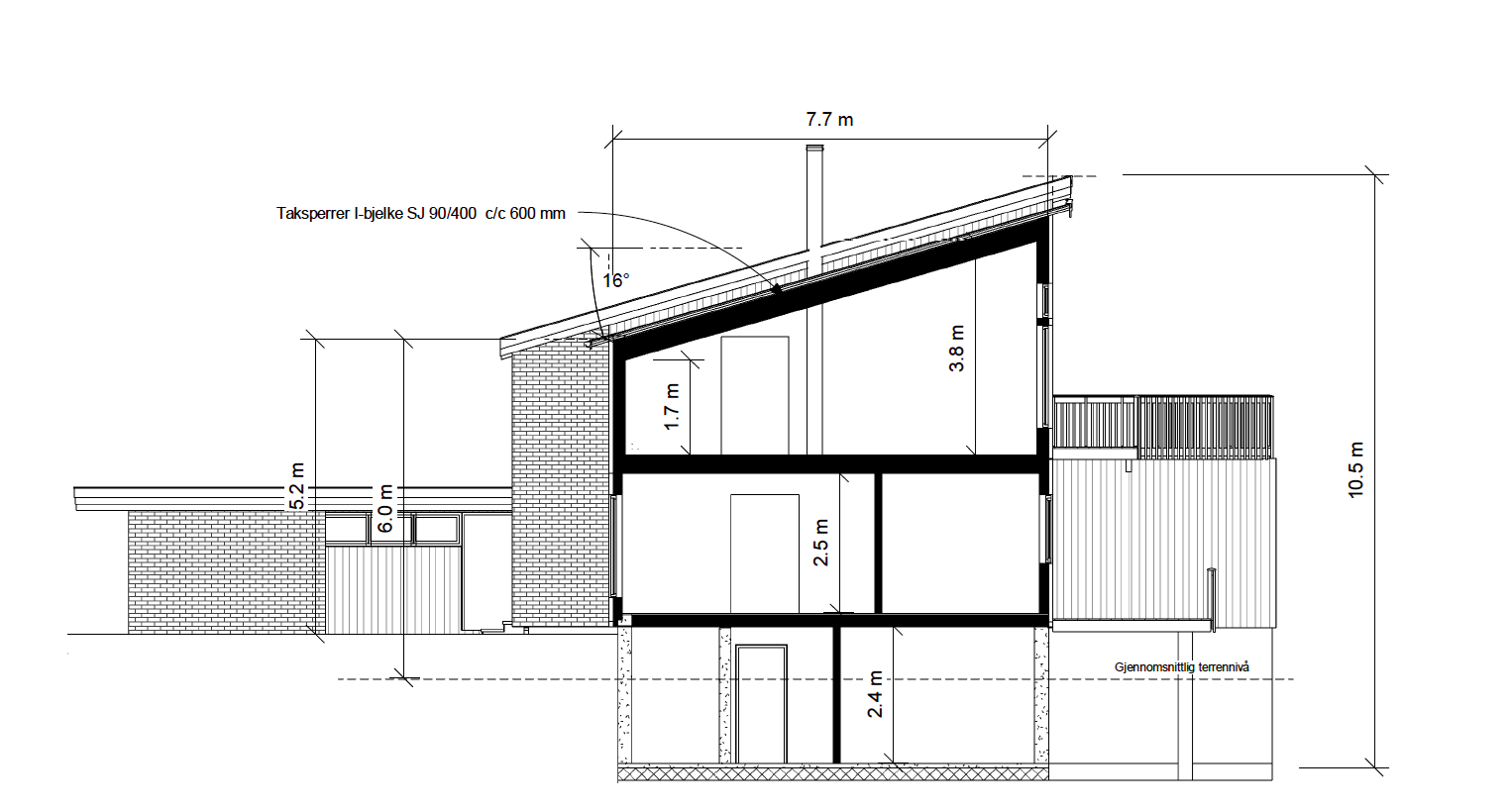
"Kjeller regnes som etasje når underkant dekke eller himling er høyere enn 1,5 m over planert terrengs gjennomsnittsnivå rundt bygningen."
Er følgende lov:

Himlingen til kjeller er klart mindre enn 1,5meter over gjennomsnittlig terrengnivå = Regner ikke som etasje. Stemmer det?
Blir ikke det her et to-etasjehus med gesims på 6 meter og toppgesims/møne på 10,5(Som er innenfor kote 43)
Er vi helt på bærtur eller er vi inne på noe?
Håper på konstruktiv svar.
Vi har en reguleringsplan fra 1995 som vi sliter litt med å forstå. Håper dere kan hjelpe oss med det.

Vi forstår det slik at man må gå tilbake til datidens byggeforskrift da reguleringsplanen var laget.
Her har vi utdrag fra "Grad av utnytting" gitt av kommunal og moderningseringsdep. Side 56.

Hva betyr:
"Kjeller regnes som etasje når underkant dekke eller himling er høyere enn 1,5 m over planert terrengs gjennomsnittsnivå rundt bygningen."
Er følgende lov:

Himlingen til kjeller er klart mindre enn 1,5meter over gjennomsnittlig terrengnivå = Regner ikke som etasje. Stemmer det?
Blir ikke det her et to-etasjehus med gesims på 6 meter og toppgesims/møne på 10,5(Som er innenfor kote 43)
Er vi helt på bærtur eller er vi inne på noe?
Håper på konstruktiv svar.