1,744
19
0
Beregne tykkelse på stålplate for å dekke hull i garasjegulv
391
Sunnmøre
0
Ser for meg at dette er en meget enkel beregning for noen som kan det.
Det handler om en løftebukk for personbil som er nedfellt i gulv (sakseløfter). Ønsker å kunne kjøre en lastebil over denne når den er nedsenket. Sakseløfteren er ikke dimensjonert for aksellasten fra en (tom) lastebil.
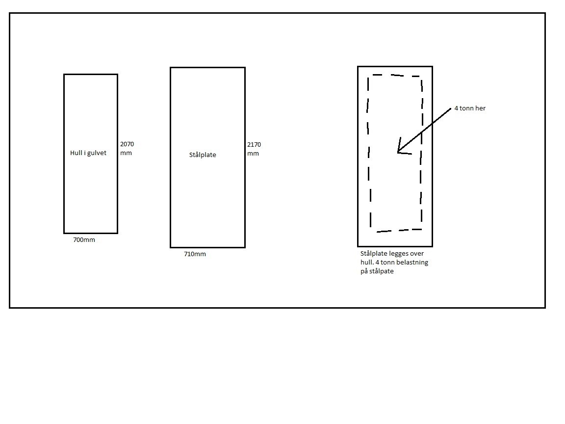
Tanken var å ha en stålplate som man legger over hullet når man skal kjøre lastebil over. Brønnen til sakseløfteren lages så dyp at toppen på sakseløfteren ligger ca 2cm under gulvnivå når den er nede.
Hvor tykk må denne stålplaten være for å få mindre enn 2cm nedbøyning når det plasseres 4t (vekten av det ene hjulet til en lastebil+slingringsmonn) midt på platen?
Hullet i gulvet er 700mm bredt og 2070mm langt.
Noen som her som kan beregne dette? Evnt. vet hvor man skal henvende seg for å få det beregnet?
Evnt. også for alluminium.
På forhånd takk
Det handler om en løftebukk for personbil som er nedfellt i gulv (sakseløfter). Ønsker å kunne kjøre en lastebil over denne når den er nedsenket. Sakseløfteren er ikke dimensjonert for aksellasten fra en (tom) lastebil.
Tanken var å ha en stålplate som man legger over hullet når man skal kjøre lastebil over. Brønnen til sakseløfteren lages så dyp at toppen på sakseløfteren ligger ca 2cm under gulvnivå når den er nede.
Hvor tykk må denne stålplaten være for å få mindre enn 2cm nedbøyning når det plasseres 4t (vekten av det ene hjulet til en lastebil+slingringsmonn) midt på platen?
Hullet i gulvet er 700mm bredt og 2070mm langt.
Noen som her som kan beregne dette? Evnt. vet hvor man skal henvende seg for å få det beregnet?
Evnt. også for alluminium.
På forhånd takk

Om du skal bruke aluminium så tror jeg du må du opp en del i tykkelse. 12-14 mm anslagsvis.
Vegar i Isoteks Miljø as
Teknisk fagskole bygg 1983, byggeleder 85-92, daglig leder i byggbransjen fra 1992, Etterutdanning og mye praksis på: Spesialavfall i bygg, Isolering, og sugebiler som sugere ut flis, leire, stein, jord osv
Å forsterke platen tror jeg blir vanskelig, siden man ikke har noen klaring til løfteren under.
Vekt blir fort et problem med stålplater ja. Dette er ikke noe som må gjøres ofte, så det kan være ok å måtte bruke hjelpemidler for å løfte. Et alternativ er å dele det opp i flere mindre plater, f.eks 4stk 710x500, men man mister da den styrken/stivheten platen gir i lengderetningen (2070mm). Men mulig denne styrken utgjør så lite i forhold til bredden at det ikke spiller noen rolle.
Trenger du dekke hele? ikke nok med en plate der hjulene skal passere?
Vegar i Isoteks Miljø as
Teknisk fagskole bygg 1983, byggeleder 85-92, daglig leder i byggbransjen fra 1992, Etterutdanning og mye praksis på: Spesialavfall i bygg, Isolering, og sugebiler som sugere ut flis, leire, stein, jord osv
Hvis denne kalkulatoren stemmer: https://astrup.no/materialkalkulator , så vil en slik 10mm plate veie 123kg. Dvs svintungt for hånd, men relativt lett med en eller annen form for kjelpemiddel.- Feks kjøre en jekketralle over på tvers, og feste platen til undersiden av jekketrallen med en form for beslag som man skrur ned i platen.
Hvordan brukes disse aluplatene? Har du et inntrykk av hvor mye de tåler? å kjøre opp 40mm med lastebil er ingen problem så lenge man skrår kanten en del..
Tanken er at platene skal lagres et ellerannet annet sted i garasjen til vanlig, f.eks oppetter en vegg.
Usikker på om det er mulig å mofidisere sakseløfteren. Lokal leverandør sier at sakeløfteren ikke tåler mer vekt når den er helt nede enn den klarer å løfte (dvs. 3 tonn totalt). Dette synes jeg høres mildt sagt veldig rart ut. Har sendt spørsmål til produsent for å få dette bekreftet. Men at de tåler så mye som 3/4tonn på hver saks er vel tvilsomt. Usikker på om det er mulig å lage til et støttearrangement under, tenker at det kanskje er lettere å bare legge plater over.