4,027
4
0
Isolere innvendig eller utvendig mot utebod i kjeller?
135
Oslo
0
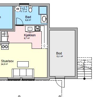
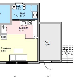
Hei, vi skal lage rom i kjeller/1etg. Deler av veggen støter mot en utvendig bod som ligger under terreng. Denne er p.t. kald, men vi skal lage en dør slik at man kan gå rett fra kjeller og inn i utvendig bod så det kan hende at temperaturen vil øke noe i boden når den får en innvendig forbindelse.
Spørsmålet er om vi bør fore ut og isolere rommet i kjelleren fra innsiden eller om vi skal sette på noen isolasjonsplater på utsiden (som da blir inne i boden).
Og hva med dampsperre?
Noen som har noe erfaring med slike konstruksjoner?
Spørsmålet er om vi bør fore ut og isolere rommet i kjelleren fra innsiden eller om vi skal sette på noen isolasjonsplater på utsiden (som da blir inne i boden).
Og hva med dampsperre?
Noen som har noe erfaring med slike konstruksjoner?


I så fall ville jeg isolert på ytterveggen av huset, altså inne i boden, med dampsperre på innsiden av veggen.
Boden må ikke nødvendigvis være kald, men det er sannsynligvis ikke gjort noe godt grunnarbeide rundt med tanke på drenering etc da boden er et gammelt rom hvor det har stått en oljetank. Veggene her tror jeg er litt mer utsatt for fukt enn de som er i kjelleren. Her er veggene helt tørre og det ligger et godt lag med grus inntil grunnmuren - mens veggene til boden ligger helt inntil jord og sannsynligvis er litt mere utsatt for kapilært oppsug.
Takhøyden i boden er litt lavere enn innvendig takhøyde. Dvs at vi ikke får isolert veggen helt opp til taket fra utsiden. Er dette noe å ta hensyn til i tilfelle vi isolerer utvendig?
Ja. Dampsperre må alltid være på den VARME siden. Ellers får du kondens.
Fysikken er som følger: Luft kan holde på en viss mengde fuktighet. Jo varmere luft er, jo mer fuktighet kan den holde på. La oss tenke oss at du har en vegg og du <fy> setter på dampsperre på den kalde siden </fy>. Lufta på den varme siden kan ha ganske mye fuktighet, for eksempel hvis du og/eller kona har gjort noe dampende hett. Siden vi antok at det <fy> ikke var noen dampsperre på den varme siden </fy> vil varm fuktig luft kunne sive inn i veggen. Jo lengre inn i veggen denne varme fuktige luften kommer, jo kaldere blir det, og fra der den relative luftfuktigheten eventuelt overstiger 100 % vil det bli avsatt kondens. Det var dumt? La oss nå se på det motsatte tilfellet, med dampsperre på den varme siden: Da vil kald luft kunne sive inn i veggen. Jo lengre den siver inn, jo varmere er veggen der lufta er, jo varmere blir lufta også, jo bedre vil den være i stand til å holde på fuktighet, og hvis det finnes fuktighet i veggen vil den bli sugd opp! Jippi!
> Boden må ikke nødvendigvis være kald,
Hvis du isolerer mellom boden og resten av huset vil vel boden bli kaldere :-) Hvis du har et dreneringsproblem, vil den nok da også bli fuktigere.
> Takhøyden i boden er litt lavere enn innvendig takhøyde. Dvs at vi ikke får isolert veggen helt opp til taket fra utsiden. Er dette noe å ta hensyn til i tilfelle vi isolerer utvendig?
Vel, her får du i prinsippet en kuldebro. Men jeg synes du skal sove godt om natten likevel, jeg. Se for deg at du IKKE isolerer. La oss kalle dette 0 %. Og se så for deg at du isolerer i hele høyden, inkludert å gjøre noen voldsomme krumspring for å få isolert veggen mellom boden og kjelleren også over boden. La oss kalle dette 100 %. Hvor høyt opp på veggen kommer du hvis du isolerer på utsiden? Kanskje 90 %? Å gjøre noe 90 % bra er ganske bra, spesielt hvis det er enkelt og greit å gjøre noe 90 % mens det er veldig slitsomt å gjøre det 100 %. Spesielt i en verden der du er vant til å overleve med 0 % :-)
Den generelle anbefalingen er å isolere på kald side av betongmurer, for å få 0-punktet ut i isolasjonen i stedet for i veggen.
Hvis du virkelig vil isolere helt opp så kan du jo isolere på innsiden. Da unngår du også at betongveggene på sidene av boden blir kuldebroer - med isolering på den kalde siden kan du tenke deg at ytterveggene virke som "veker" som "suger opp kulde" og "leder kulden" inn, forbi isolasjonen din.
En annen ting er om plassen på innsiden av veggen kanskje er mer verdifull for deg enn plassen på utsiden?
Forslaget fra eirikBerntsen er ikke dumt: Isoler hele boden. Da får du mer oppvarmet plass, i tilfelle det er et mål her i verden :-)
Dersom vi isolerer hele boden på innsiden så antar jeg at vi ikke skal bruke dampsperre siden den ligger under terreng? Klart det kan være en fordel å isolere boden og sette inn en liten frostvakt slik at vi kan ha + grader der hele året.
Vi må uansett lekte ut veggen mellom rom og bod for å få plass til trekkerør til kabel. Vi kan vel da like gjerne isolere veggen mellom rom og bod fra innsiden - men skal vi da ha noe dampsperre her dersom boden blir varm?